




Vente Bureau 659 m²
34000 Montpellier
659 m²
Divisible dès 29 m²
à partir de 69 120 €
HT/HD
Disponibilité : 15 mois après accord

Rodolphe CHEVALLIER
Description
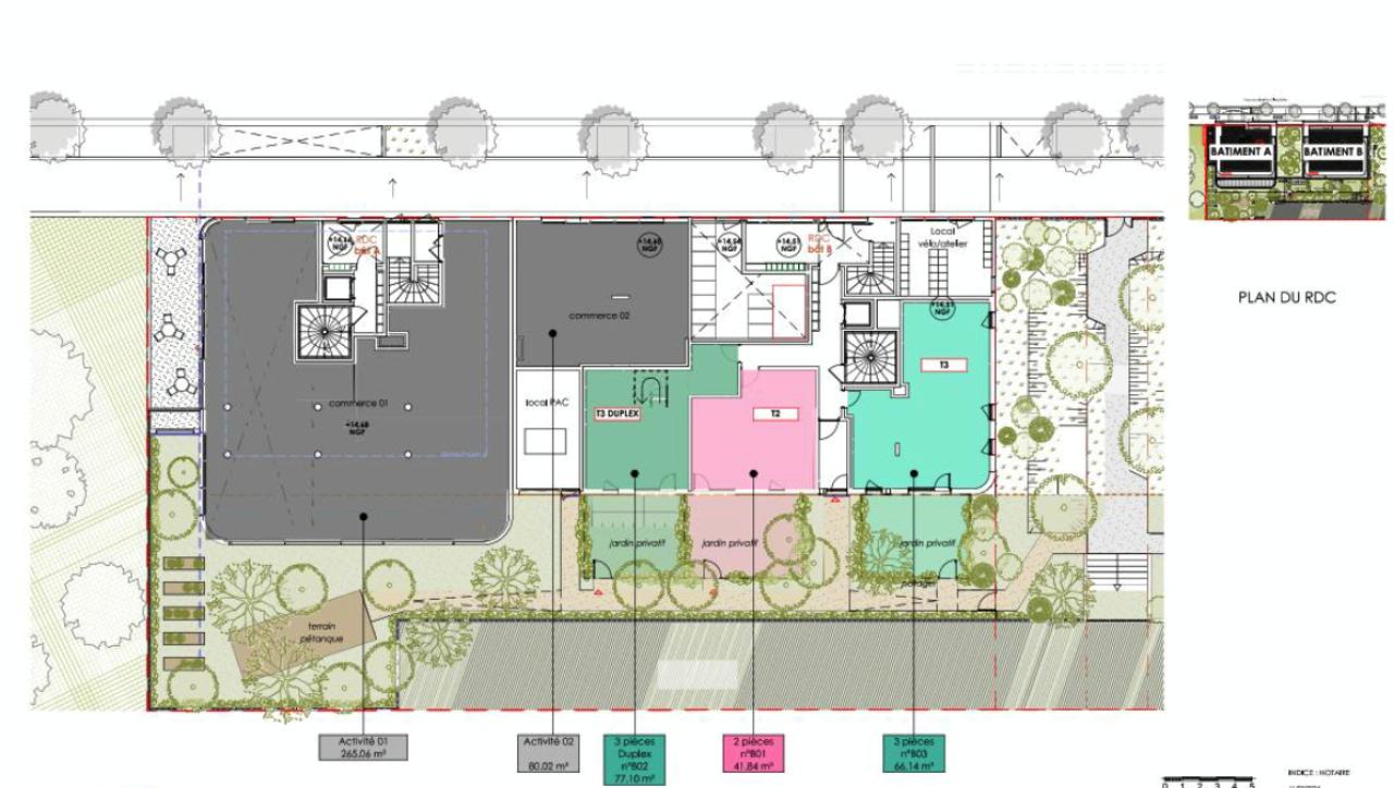
MONTPELLIER SUD - ZAC DE LA RESTANQUE - PRES D'ARENE - COMMERCES ET BUREAUX A VENDRE - TRENDY
A vendre lots de commerces et bureaux au sein du Programme neuf Trendy, Montpellier Sud, secteur Près d'Arènes - ZAC de la Restanque.
Découvrez Trendy, un programme neuf d'une surface 660 m² divisibles à partir de 29 m² situé à Près d'Arènes sur la Zac de la Restanque.
Les locaux sont composés de 425 m² de commerces divisibles dès 80 m² et 265 m² de bureaux divisibles dès 29 m².
ACCESSIBILITÉ
Tramway L4 - Arrêt "Restanque" à 3 min à pied
Bus N°11 - Arrêt "Industrie" à 1 min à pied
A709 à 2 minutes
Gare Montpellier Saint Roch à 8 minutes
Gare Sud de France à 10 minutes
Aéroport de Montpellier à 10 km
Disponibilité : T1 2027
Pour plus d'informations, contactez nous dès maintenant !
La ZAC (Zone d'Aménagement Concertée) de la Restanque, à l'origine Zone Industrielle de Près d'Arènes, est basée au Sud-Ouest de la métropole de Montpellier.
Depuis quelques années, cette zone est en plein essor immobilier, mêlant habitations et activités professionnelles dans le but d'en faire un quartier mixte harmonieux.
Les salariés qui y sont installés bénéficient de nombreux commerces et services à proximité immédiate ainsi que d'une offre de restauration.
Le quartier séduit par son accessibilité, en bordure de l'autoroute A9 et à quelques minutes du centre-ville de Montpellier. Il est également desservi par la ligne 4 du tramway.
Services & prestations
Aménagements
-
Accès Pers. Mobilité Réduite : Ascenseur
Equipements
-
Puissance électrique : Tarif Bleu
Normes, Certifications et Labels
-
Catégorie ERP : 5 Pour commerces et activités
Informations complémentaires
-
Livré brut
-
Fluides en attente










