




Vente Bureau 878 m²
34070 Montpellier
878 m²
2 151 198 €
HT/HD
Disponibilité : 30/03/2026

Marie Laure ROLANDO
Description
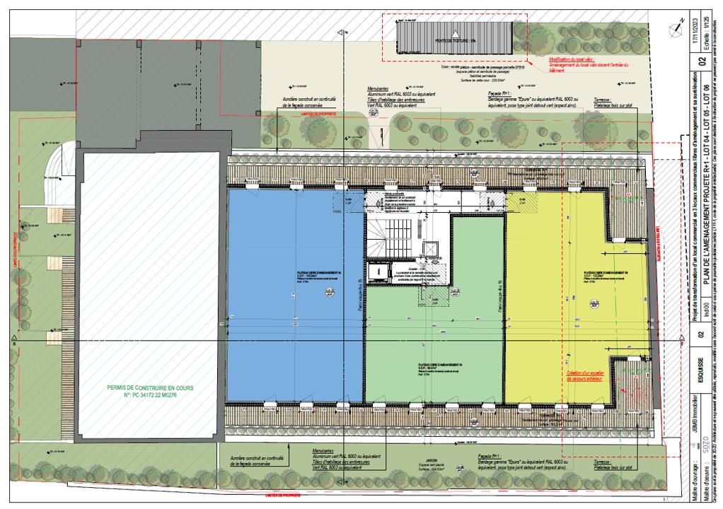
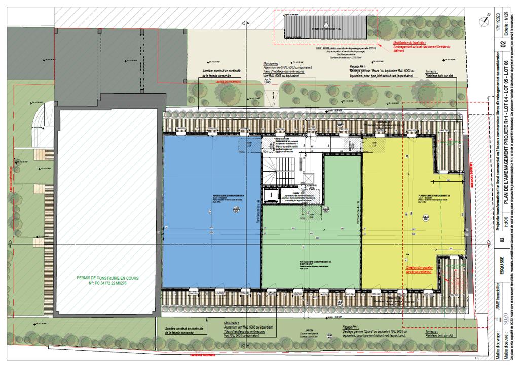
MONTPELLIER SUD - LA RESTANQUE - SUNSET OFFICE - A VENDRE
Au Sud de Montpellier au sein de la ZAC de la Restanque, découvrez ce bâtiment totalement réhabilité en surfaces de bureaux en RDC et R+1 d’environ 878 m² divisibles à partir de 100 m².
Ces bureaux seront livrés bruts, prêts à aménager, accessibles ERP et PMR. Les futurs collaborateurs pourront bénéficier de terrasses, 12 place de parking en extérieur et d'un local vélo.
Possibilité d’extension avec permis en cours pour une surface d’environ 150 m².
Livraison hors d’eau-hors d’air. Réseaux en attente. Clos couvert neuf.
Vente en VEFA avec frais de notaire réduit.
Livraison en bureaux aménagés possible au prix de 2 900 €/m²/an HT
Situé au Sud de Montpellier, en plein essor immobilier, la ZAC de la Restanque vise à devenir à terme un quartier mixe et séduit de par son accessibilité. Elle jouie de sa proximité avec le centre-ville, de sa façade autoroutière et de nombreuses commodités à proximité.
N'hésitez pas à nous contacter pour plus de renseignements.
Disponibilité : T1 2026
Accessibilité :
- Tramway L4- Arrêt "Garcia Lorca" à 4 min à pied
- Bus n°11 arrêt « Frédéric Fabrège » à 500 mètres
- Gare Montpellier Saint Roch à 16 minutes
- A9 Sortie Ouest à 8 min
- A709 à 4 min
- Aéroport de Montpellier Mediterannée à 19 min
Services & prestations
Aménagements
-
Accès Pers. Mobilité Réduite
Extérieurs
-
Terrasses - jardins : 200 m²
Type / Etat du bâtiment
-
Etat des locaux : Brut de béton
Informations complémentaires
-
Livraison hors d’eau-hors d’air, Local vélo
-
Norme RE 2020, Réseaux en attente
-
Clos couvert neuf, ERP










