




Rue du Jardin d'Ecosse
57530 Ars-Laquenexy
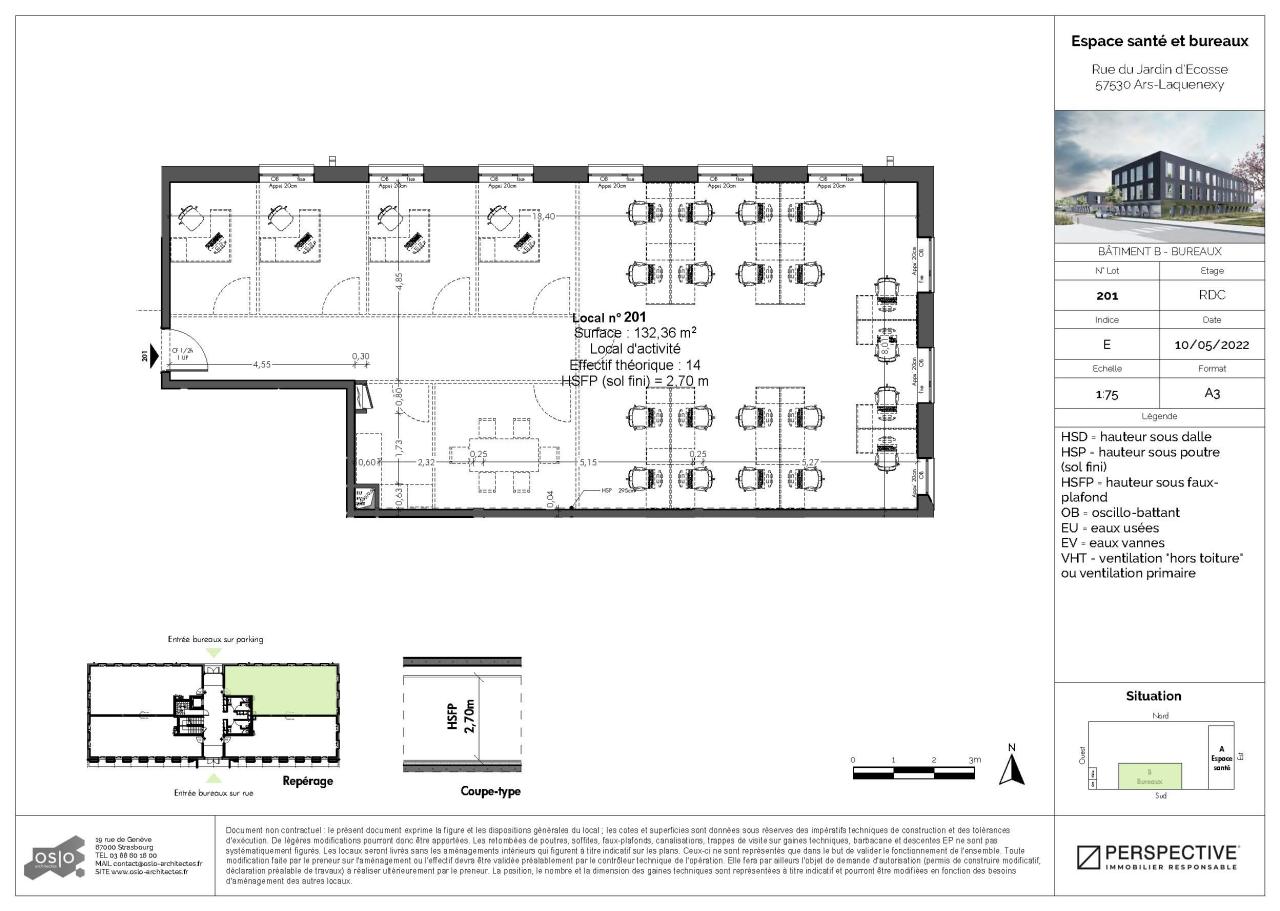
552 m²
Divisible dès 108 m²
Prix sur demande
Disponibilité : Immédiate

Claudia LEFEVRE
Description
BUREAUX NEUFS - ZAC DE MERCY
REF OVBUR 22 02 709
BNPPRE ADVISORY vous propose à la vente plusieurs plateaus de bureaux neufs au Pôle Santé-Innovation de Mercy avec parking sécurisé. Proche METTIS B.
ZONE DE MERCY - BUREAUX NEUFS 552 M² DIVISIBLES - A VENDRE
Vous cherchez à acquérir vos bureaux au coeur de la Métropole de Metz.
Achetez des bureaux neufs vous permettant d'aménager vos espaces au plus près de vos besoins.
Nous vous proposons plusieurs surfaces de bureaux de 100 à 400 m² avec parkings privatifs, livrés aménagés non cloisonnés.
L'immeuble en R+1, de belle qualité architecturale est classé code du Travail et PMR. Chaque lot est accompagné de places de parking privatives et visiteurs.
Caractéristiques
Immeuble neuf
Lots livrés aménagés non cloisonnés
Parking privatifs en pied d'immeuble
Cet ensemble se trouve au coeur de la zone tertiaire de Mercy, situé face au CHR.
Environnement
Le Pôle Santé Innovation de Mercy articulé autour de l'hôpital de Mercy et de l'hôpital femme-mère-enfant, rassemblent des entreprises innovantes du secteur médical et des laboratoires de recherche. Cette zone accueille également des sociétés tertiaires et de service, en hôtellerie, secteur bancaire et restauration permettant à vos collaborateurs de se restaurer sur place.
Situé à proximité du Technopôle de Metz, vos futurs bureaux seront idéalement accessibles grâce aux transports en commun via la ligne du METTIS MB et en voiture de part sa proximité immédiate de la rocade Sud reliant les autoroutes A4 et A31.
Accessibilité
A4/31 rocade Sud A43
BUS : LEMET MB - arrêt Hôpital Mercy
Gare SNCF de Metz : 20 minutes ~ (1h20 de Paris Gare de l'Est)
Gare TGV Lorraine : 15 minutes ~ (1h20 de l'Aéroport Roissy Charles de Gaulle)
Aéroport régional de Metz Nancy Lorraine : 20 minutes ~
Aéroport international de Luxembourg Findel : 50 minutes ~
Conseiller en Immobilier professionnel, BNP PARIBAS REAL ESTATE TRANSACTION accompagne les entreprises dans la recherche de bureaux, locaux d'activité, dépôts et entrepôts logistiques, à la location et à la vente, à METZ et en MOSELLE depuis plus de 40 ans.
Services & prestations
Aménagements
-
Aménagement des bureaux : Espaces Ouverts
-
Sanitaires : Parties communes
Equipements
-
Distribution chauffage : Réversible
-
Eclairage Bureaux : Luminaires encastrés Paves LED
-
Faux plafond : Dal. fibres minéral.
-
Plinthes techniques périphériques
-
Sol bureaux : Moquette Au choix
-
Source chauffage : Géothermie Réseau urbain
Prestations de service
-
Parking : Privatif et public à proximité
-
Sécurité : Contrôle d'accès
Normes, Certifications et Labels
-
Catégorie ERP : 5
Type / Etat du bâtiment
-
Etat de l'immeuble : Neuf
-
Etat des locaux : Neuf










