




Vente Bureau 2 228 m²
69002 Lyon
2 228 m²
Divisible dès 348 m²
à partir de 11 500 €
HT/HD
Disponibilité : 18 mois après accord

Ludovic NE
Description
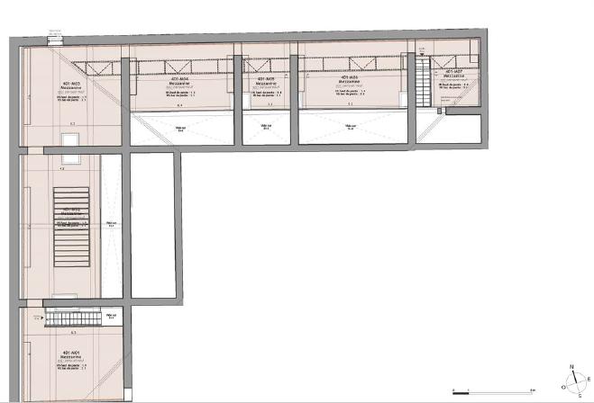
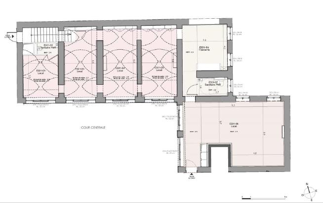
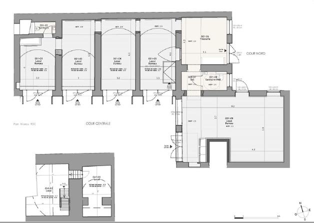
BELLACORTE
LYON 02
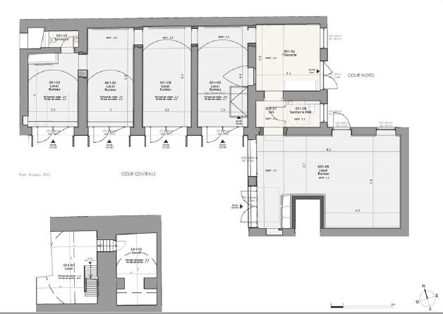
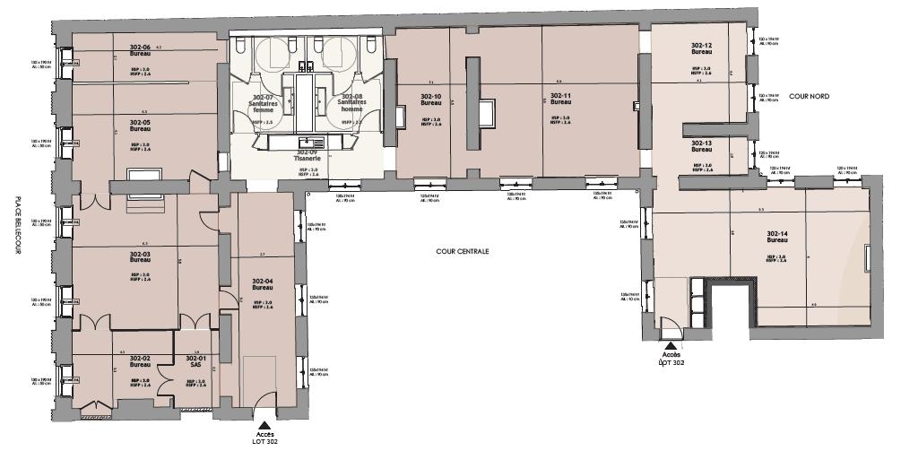
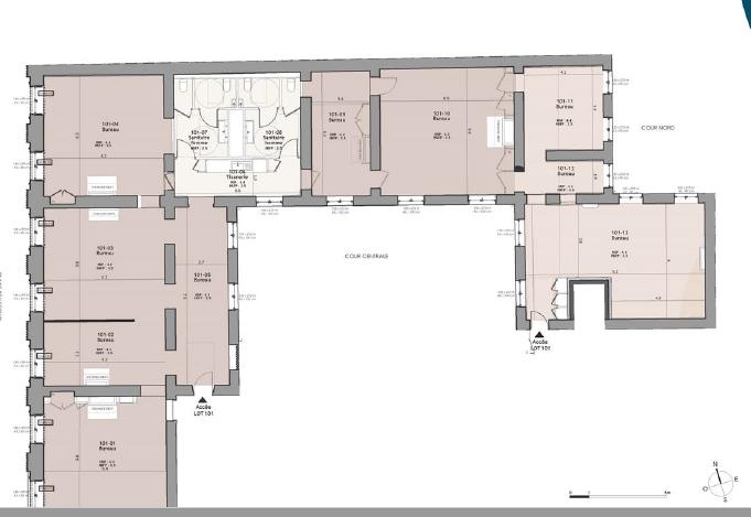
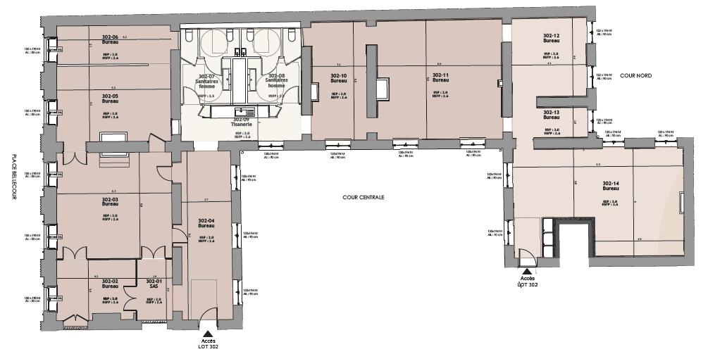
Nous vous proposons une adresse exclusive dans l’hypercentre lyonnais. Des bureaux d’environ 2 000 m² disposant d’une belle hauteur sous plafond ainsi que du charme de l’ancien (menuiseries, cheminées). Transport à proximité et accès rapide aux dessertes routières.
La Place Bellecour se trouve aujourd'hui dans le deuxième arrondissement de la ville, entre la Saône et le Rhône. On y trouve notamment l'Office du tourisme de Lyon. La place Bellecour portent trois artères majeures de la Presqu'île de Lyon, côté nord pour le quartier des Terreaux et côté sud pour le quartier de Perrache, dont deux piétonnières : la rue de la République, menant à la place de la Comédie, entre l'Hôtel de Ville et l'Opéra puis à la place Louis Pradel par la rue du Puits-Gaillot côté nord, la rue Victor-Hugo, qui mène à Perrache côté sud, la rue du Président Édouard Herriot côté nord, ouverte à la circulation automobile, où se concentrent les enseignes de luxe, et qui mène à la place des Terreaux. Le quartier du Vieux Lyon et de la cathédrale Saint-Jean se situent à l'ouest, de l'autre côté du Pont Bonaparte et de la Saône, que l'on rejoint par la rue du Colonel Chambonnet.
La place Bellecour constitue le point kilométrique 0 de Lyon : toutes les distances sont comptées à partir de ce point.
Elle est desservie par deux lignes de métro : les lignes A et D et de nombreuses lignes de bus. La station Bellecour est de ce fait la plus fréquentée du métro lyonnais.
Services & prestations
Aménagements
-
Accueil : Espaces de convivialité possible au RDC et entresol
-
Sanitaires : Vestiaire et douches au RDC
Equipements
-
Distribution chauffage : Chauffage-clim sur système VRV 3 tuves
-
Eclairage intérieur : Eclairage profilé LED
-
Faux plafond : Certains plafonds à fortes valeurs
-
Fenêtres : Doubles vitrages
-
Production climatisation : Ventilation double flux
-
Puissance électrique : Panneaux solaires prenant en charge l'ensemble des besoins électriques des espaces communs
-
Revêtement mural : Cloisons de distribution de 100mm d'épaisseur
-
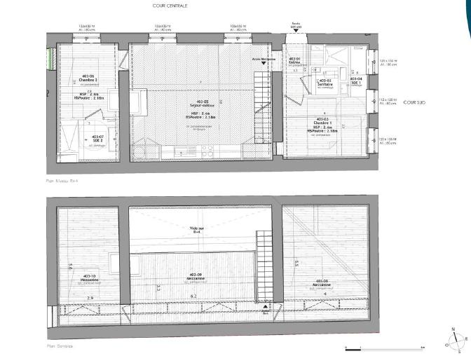
Sol bureaux : Boiseries existantes au sol du R+1 au R+4
Extérieurs
-
Aire de stockage extérieure : Abris à vélos
-
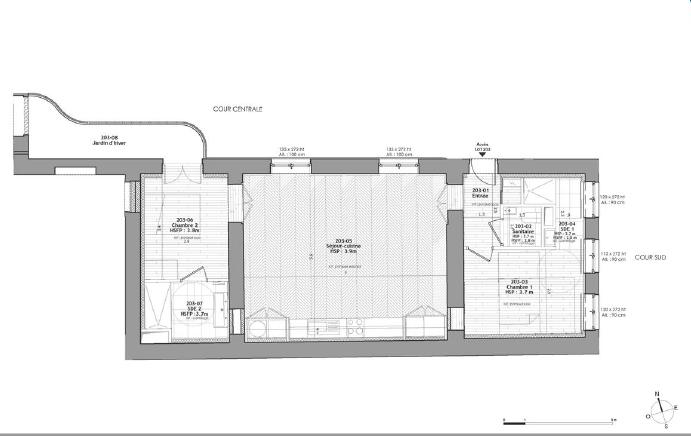
Terrasses - jardins : Jardins d'hiver Entièrement aménagée selon les plans de l’architecte
Normes, Certifications et Labels
-
Certification : BREEAM
Structure du bâtiment
-
Murs : Enduits à la chaux pour le RDC et entresol Peinture satiné
Type / Etat du bâtiment
-
Etat de l'immeuble : Restructuré avec PC
Informations complémentaires
-
1 bloc sanitaire PMR par niveau, Frais de notaire réduit
-
Volets intérieurs bois, jalousies ou BSO alu
-
Parquet, moulures, cheminée










