




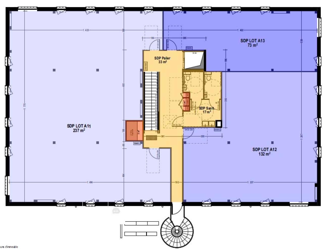
Vente Bureau 432 m²
69800 Saint-Priest
432 m²
Divisible dès 199 m²
Prix sur demande
Disponibilité : Immédiate

Odine KLEIN
Description
Bureaux neufs à vendre louer – Saint-Priest (Rue Alice)
À saisir : bureaux neufs idéalement situés rue Alice Guy Blaché à Saint-Priest, au cœur d’un environnement dynamique et en plein développement.
Description du bien :
Ces locaux professionnels, fraîchement livrés, offrent une excellente qualité de construction ainsi qu'une modularité permettant d'adapter l'espace à différents types d'activités tertiaires. Lumineux, fonctionnels et conçus pour le confort de travail, ils constituent une opportunité rare sur le secteur.
Environnement :
Le bien bénéficie d'un emplacement stratégique au sein d'un quartier mêlant zones d'activités, petites entreprises locales et nouvelles constructions. La rue Alice profite d'un cadre calme tout en étant parfaitement connectée :
- Proximité immédiate des axes routiers majeurs (rocade, A43).
- Accès rapide aux transports en commun desservant Lyon et son agglomération.
- Présence de commerces, services, espaces verts et restaurants à quelques minutes à pied, offrant un confort idéal pour salariés et visiteurs.
Saint-Priest est une commune en expansion, reconnue pour son attractivité économique et la qualité de son tissu entrepreneurial.
- Locaux neufs, prêts à aménager.
- Emplacement recherché à la fois calme et accessible.
- Quartier en pleine évolution offrant une excellente visibilité à long terme.
Ces bureaux représentent une opportunité parfaite pour une entreprise souhaitant investir dans un environnement professionnel moderne et porteur.
Services & prestations
Aménagements
-
Accès Pers. Mobilité Réduite : Ascenseurs
-
Effectif théorique
Equipements
-
Climatisation : Réversible
Normes, Certifications et Labels
-
Catégorie ERP : 5
Type / Etat du bâtiment
-
Etat de l'immeuble : Neuf
Informations complémentaires
-
Aménagements des bureaux : Cloisonnés/ouverts, Ascenseurs, Câblage informatique, Eclairage bureaux : Luminaires encastrés – Luminaires suspendus, Faux plafond, Immeuble Copropriété, Plinthes techniques périphériques, Sanitaires : Parties communes, Source chauffage : Electrique, Sécurité : Contrôle d’accès, Type chauffage : Individuel










