




Vente Local d'activité 2 503 m²
35580 Guichen
2 503 m²
Prix sur demande
Disponibilité : 30/10/2026

Kevin LEVAIRE
Description
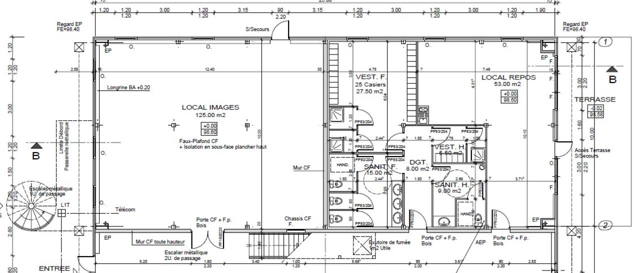
GUICHEN - Parc d'Activités Les Grandes Landes
BNP PARIBAS REAL ESTATE vous propose ce bâtiment de 2500m² disponible à la location, en très bon état.
Le site est facilement accessible, en sortie immédiate de l'axe Rennes-Redon, et bénéficie d'une belle visibilité.
500m² de bureaux sont disponibles, composés d'open-spaces, bureaux individuels, salles de réunion, locaux sociaux avec une grande salle de pause, donnant sur une terrasse, vestiaires, et douches
1000m² d'atelier, avec toiture isolée et bardage double peau, ainsi qu'un espace de stockage de 1000m² (non isolé)
L'ensemble est accessible par une porte à quai et une porte de plain-pied, et dispose de 25 places de parking.
Disponibilité 30/10/2026
Services & prestations
Hauteurs
-
Hauteur libre : 7,60 mètre(s) au faitage
-
Hauteur sous poutre : 6.10 sous sablière
Accès véhicules
-
Accessibilité type véhicules : Tous porteurs
Equipements
-
Câblage informatique
-
Eclairage Bureaux : Luminaires encastrés
-
Eclairage intérieur : Néon
-
Eclairage naturel : Skydomes
-
Faux plafond : Dal. fibres minéral.
-
Plinthes techniques périphériques
-
Porte d'accès plain-pied : 1
-
Porte d'accès à quai : 1
-
Sol bureaux : Dls.thermoplastiques
-
Sols du bâtiment : Béton
-
Source chauffage : Electrique
-
Type de chauffage : Individuel
Type / Etat du bâtiment
-
Etat de l'immeuble : Seconde main
-
Immeuble indépendant
Structure du bâtiment
-
Charpente : Métallique
-
Couverture : Bac acier isolé sur la partie production et bas acier simple sur le stockage
-
Murs : Bardage double peau sur la partie production et simple sur le stockage
Prestations de service
-
Parking : 25 Places
Aménagements
-
Accueil
-
Aménagement des bureaux : Cloisonnés/Ouverts
-
Bureaux cloisonnés
-
Hall d'accueil
-
Locaux sociaux : Douches/Vestiaires
-
Mezzanine
Extérieurs
-
Aire de livraison
-
Aire de manoeuvre
-
Aire de stockage extérieure
Informations complémentaires
-
Aérothermes Gaz, Salle de réunion










