




Vente Local d'activité 834 m²
35380 Plélan-le-Grand
834 m²
Divisible dès 277 m²
à partir de 240 000 €
HT/HD
Disponibilité : Immédiate

Delphine BARON
Description
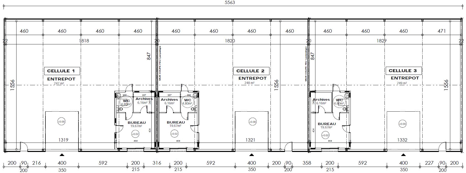
PLELAN-LE-GRAND - PA Les Noës
Bâtiment d'activités neuf à vendre , composé de trois cellules d'activités aménagées, composée d'une partie bureau avec accueil, sanitaires et local d'archives, ainsi qu'une partie stockage accessible par une porte sectionnelle de plain-pied.
Chaque cellule bénéficie de places de parking privatives et d'un foncier entièrement clos.
Le Parc d'Activités les Noës est situé sur la commune de PLELAN-LE-GRAND, au sud-ouest de Rennes, accessible par l'axe Rennes / Lorient. Cette zone bénéficie d'une proximité directe avec cet axe.
Services & prestations
Hauteurs
-
Hauteur libre : 5,22 mètre(s)
-
Hauteur sous porte plain-pied : 4,00 mètre(s) x 3.50 mètre(s) de Largeur
-
Hauteur sous poutre : 7,36 mètre(s)
Accès véhicules
-
Accessibilité type véhicules : Moyens porteurs
Equipements
-
Porte d'accès plain-pied : 1 /Cellule
-
Sols du bâtiment : Béton
Type / Etat du bâtiment
-
Etat de l'immeuble : Neuf
-
Etat du terrain : Compacté
Structure du bâtiment
-
Couverture : Bac acier isolé
-
Murs : Bardage double peau
Aménagements
-
Bureaux cloisonnés : 1
-
Sanitaires : 1 Privatif(s)










