




Location Bureau 2 676 m²
67380 Lingolsheim
2 676 m²
Divisible dès 106 m²
à partir de 150 €
HT/HC/m²/an
Disponibilité : 24 mois après accord

Nalan KOLAT
Description
A LA LOCATION BUREAUX NEUFS - BATIMENT VERSO
PARC DES TANNERIES - REF. OLBUR2310507
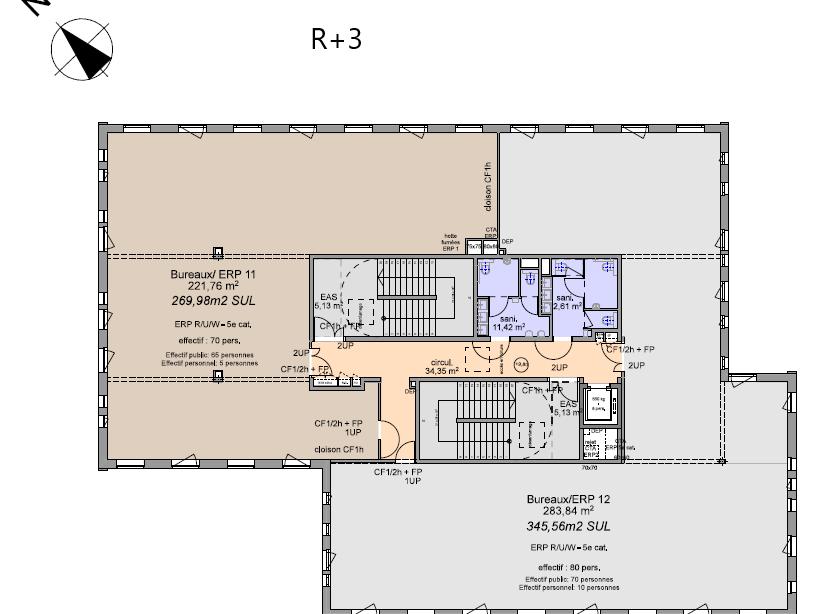
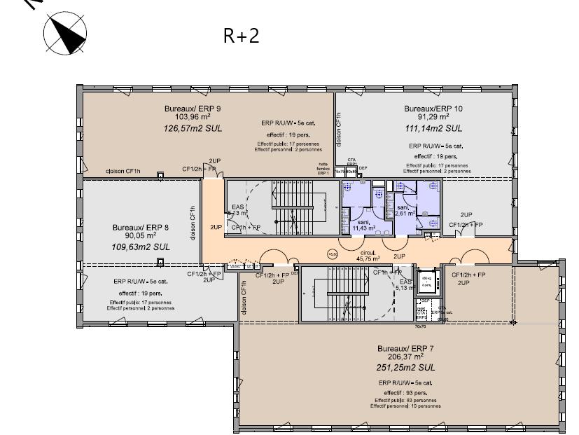
A LOUER, Bâtiment en R+3 neuf, à construire, de 2 700 m² SUL environ, à usage de locaux commerciaux en rez-de-chaussée d'une surface de 610 m² SUL environ, divisibles dès 210 m² SUL environ, et de bureaux en étages totalisant une surface d'environ 2 060 m² SUL. Soit environ 680m² SUL par étage et divisibles dès 120 m² SUL environ. Plusieurs lots et niveaux peuvent être loués ensembles. Rdc aux normes ERP catégorie N,U,R et W. Construction RT2012. Places de parking à l'extérieur. Toiture bio-solaire avec végétalisation. A l'entrée du Parc de Tanneries, avec visibilité.
Le PARC DES TANNERIES est implanté sur les communes de STRASBOURG-LINGOLSHEIM. Sa situation est idéale avec la proximité du CENTRE-VILLE DE STRASBOURG et de sa GARE TGV (10-15 mn), ainsi que de l'accès rapide à l'AEROPORT international de STRASBOURG-ENTZHEIM à moins de 10 kilomètres par l'autoroute A35. Il bénéficie en outre du Grand Contournement Ouest A355 inauguré en décembre 2021.
Le parc comprend 20 bâtiments, comportant des locaux d'activité et des BUREAUX, et il propose à l'entrée de STRASBOURG, un nouveau cadre apaisé pour accueillir votre société : au coeur d'un parc RENOVE, avec des ESPACES PAYSAGES AMENAGES, pour un cadre de travail privilégié, sur plus de 30.000 m² de BUREAUX, d'activité et de services.
Ce bâtiment en R+3 neuf sera construit à l'entrée du Parc, dans un cadre verdoyant. Visibilité par l'avenue Schuman et la route de Schirmeck sera un plus aussi pour les bureaux en étage accessibles par ascenseurs aux normes PMR, comme pour les locaux commerciaux à usage des services, commerces ou des restaurants situés au rez-de-chaussée, aux normes ERP de catégorie W, type U ( pour les établissements des soins), type R (pour d'enseignement), M ou N pour toute activité en restaurations et commerce.
Construction RT2012. Toiture biosolaire avec végétalisation et panneaux photovoltaiques. Les parkings sont mutualisés.
10 bornes de recharges pour les 2 bâtiments neufs vous permettront le récharge de votre flotte automobile.
De plus, le mode de transport doux est largement représenté :
- Une piste cyclable longe le parc du nord au sud : le long de la route de Schirmeck et de l'avenue Schumann.
- Le Tram B Arrêt des Alouettes au sud du Parc
- 2 lignes de bus : L1 et 45
- La gare de Roethig est à moins de 5 minutes
Ainsi la GARE DE STRASBOURG est accessible en 16 minutes en voiture, en 25 minutes en bus et en 17 minutes à vélo.
Contactez-nous pour plus d'information et une visite.
Services & prestations
Aménagements
-
Accès Pers. Mobilité Réduite
-
Aménagement des bureaux : En open-space prêt à cloisonner
-
Sanitaires : A chaque niveau
Equipements
-
Ascenseurs : Aux normes PMR
-
Climatisation
-
Plinthes techniques périphériques : Prises électriques
-
Revêtement mural : Fibre de verre peinte blanche
-
Sol bureaux : Moquette en dalles
Prestations de service
-
Parking : 53 Places
Normes, Certifications et Labels
-
Catégorie ERP : Pour les locaux commerciaux du RDC, type W,U,R,N et M
Structure du bâtiment
-
Travaux à réaliser : Fluide en attente brut de béton
Type / Etat du bâtiment
-
Etat de l'immeuble : Neuf
Informations complémentaires
-
Diverses commodités (services, commerces, restaurations) à proximité immédiate, ERP de plusieurs catégories pour les lots du RDC
-
Faux-plafond avec luminaires, RT2012; Toiture biosolaire ( végétalisation, photovoltaïque)
-
10 bornes de recharges pour véhicules électriques, ERP type W, U, N, M ou R










