




5 Rue de Copenhague
67300 Schiltigheim
435 m²
Divisible dès 214 m²
à partir de 110 €
HT/HC/m²/an
Disponibilité : immédiate

Nalan KOLAT
Description
BUREAUX A LOUER - EUROPOLIS
ESPACE EUROPEEN DE L'ENTREPRISE - REF. OLBUR2531360
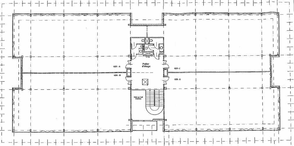
BUREAUX A LA LOCATION : Situés à l'Espace Européen de l'Entreprise à SCHILTIGHEIM, à 10 mn de STRASBOURG, lumineux plateaux de bureaux d'une surface de 435 m² environ PCI. Les bureaux sont divisibles en 2 lots d'environ 214 et 221 m² PCI. Situés au 1er étage avec la climatisation & chauffage réversibles. Ils seront disponibles à partir du 01/08/2025 et seront en open-space entièrement rénovés. Les parties communes sont rénovés. L'Immeuble est fibré. Situation idéale avec accès grâce à l'arrêt de la ligne G (BHNS) qui se situé à 3mn (arrêt Copenhague). 10 places de parking extérieures.
BNP PARIBAS REAL ESTATE vous propose A LA LOCATION, un ensemble de BUREAUX lumineux, d'une surface totale d'environ 435 m² environ, divisibles à partir d'environ 200 m² .
Situés en R+1 dans immeuble de bon standing, avec des parties communes RENOVES en 2024.
Les BUREAUX se composent des deux lots aménagés en open-space rénové et lumineux .
Ce bien est équipé d'une climatisation réversible, de faux plafonds en dalles fibres minérales, de luminaires encastrés et de moquette en dalles au sol. Possibilité d'installation d'une kitchenette. Les grands baies vitrés vous permettront de profieter d'un cadre de travail calme.
Le grand parking dispose 10 emplacements de PARKING pour ces bureaux.
La situation idéale de l'immeuble, à l'entrée du Parc tertiaire d'ESPACE EUROPEEN DE L'ENTREPRISE, situé au Nord d'Eurométropole de STRASBOURG, vous permettra de profiter des différents services de la zone. RESTAURATIONS, CRECHES, SALLES DE SPORT. Un plan d'eau, idéal pour les joggeurs, se situe au coeur du Parc.
Enfin, le BUS BHNS ( Bus A Haut Niveau de SERVICE), joignable à 3 minutes à pied, relie l'ESPACE EUROPEEN DE L'ENTREPRISE en seulement 10 minutes à la GARE TGV de STRASBOURG.
L'Espace Européen de l'Entreprise est le premier pôle TERTIAIRE de l'EUROMETROPOLE DE STRASBOURG. Des pistes cyclables desservent également le parc et permettent de rejoindre le CENTRE-VILLE de STRASBOURG facilement Enfin, le pôle est accessible depuis les axes AUTOROUTIERS (A4 / A35) que l'on vienne du nord de Strasbourg ou du Sud d'Eurométropole.
Aujourd'hui, 500 entreprises et institutionnels, 9 000 salariés et plus de 1 000 étudiants sont installés sur le secteur.
Les informations sur les risques auxquels ce bien est exposé sont disponibles sur le site Géorisques : www. georisques.gouv.fr
Consultez BNP Paribas Real Estate pour organiser une visite dès à présent !
Services & prestations
Aménagements
-
Accueil : Espace d'attente
-
Aménagement des bureaux : Espaces Ouverts
-
Hall d'accueil : Collectif rénové
-
Sanitaires : 2 Parties communes rénovés
Equipements
-
Climatisation : Réversible individuelle
-
Eclairage Bureaux : Luminaires encastrés encastré
-
Faux plafond : Dal. fibres minéral. 60x60
-
Fenêtres : Double vitrage
-
Plinthes techniques périphériques : 2 compartiments
-
Sol bureaux : Moquette en dalles neuves
Prestations de service
-
Fitness : Salle de sport au sein du parc
-
Parking
Extérieurs
-
Terrasses - jardins : Promenade autour du lac
Type / Etat du bâtiment
-
Etat de l'immeuble : Etat d'usage
-
Etat des locaux : Etat d'usage
-
Immeuble copropriété
Informations complémentaires
-
Hôtels et Restaurant au sein du parc
-
Cabinets médicaux










