




3 Rue Denis Papin
67300 Schiltigheim
7 707 m²
Divisible dès 218 m²
à partir de 170 €
HT/HC/m²/an
Disponibilité : 18 mois après accord

Nalan KOLAT
Description
Le LIGNUM - BUREAUX NEUFS - LOCATION Befa
E3 - STRASBOURG- Réf. OLBUR2316173
BUREAUX à LOUER: au Parc tertiaire l'Espace Européen de l'Entreprise, Le LIGNUM, en cours de construction. se compos de deux immeubles en R+4, totalisant une surface d'environ 7 700 m², divisibles dès 200 m² environ. L'attique d'environ 330 m² avec sa majestueuse terrasse de 150 m² seront également accessibles PMR. La façade en bois traité, confortables 144 pl de parking, deux parcs à vélo, bornes de recharge pour véhicules électriques. Disponibles à la vente et à la location. Construction aux normes RE2020, bureaux bioclimatiques, labélisée BREEAM VERY GOOD! Livraison sous 18 mois!
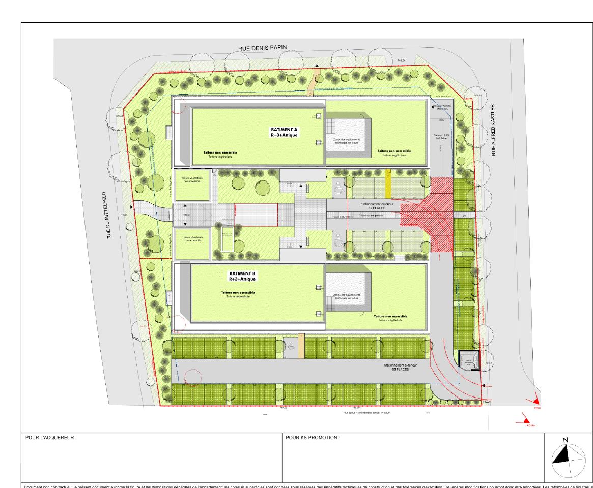
A l'entrée du parc tertiaire de l'Espace Européen de l'Entreprise, dans l'Eurométropole de Strasbourg, découvrez l'opération LE LIGNIUM, immeuble de BUREAUX NEUFS totalisant une surface de 7 700 m² environ, se composant de 2 bâtiments, soit une surface de prés de 4 000 m² environ chacun.
Ces bâtiments se veulent résolument modernes en R+4, dont les attiques vous proposent des terrasses privatives.
Labellisé BREEAM VERY GOOD, Construction RE2020 vous permettant d'avoir des bureaux bioclimatiques.
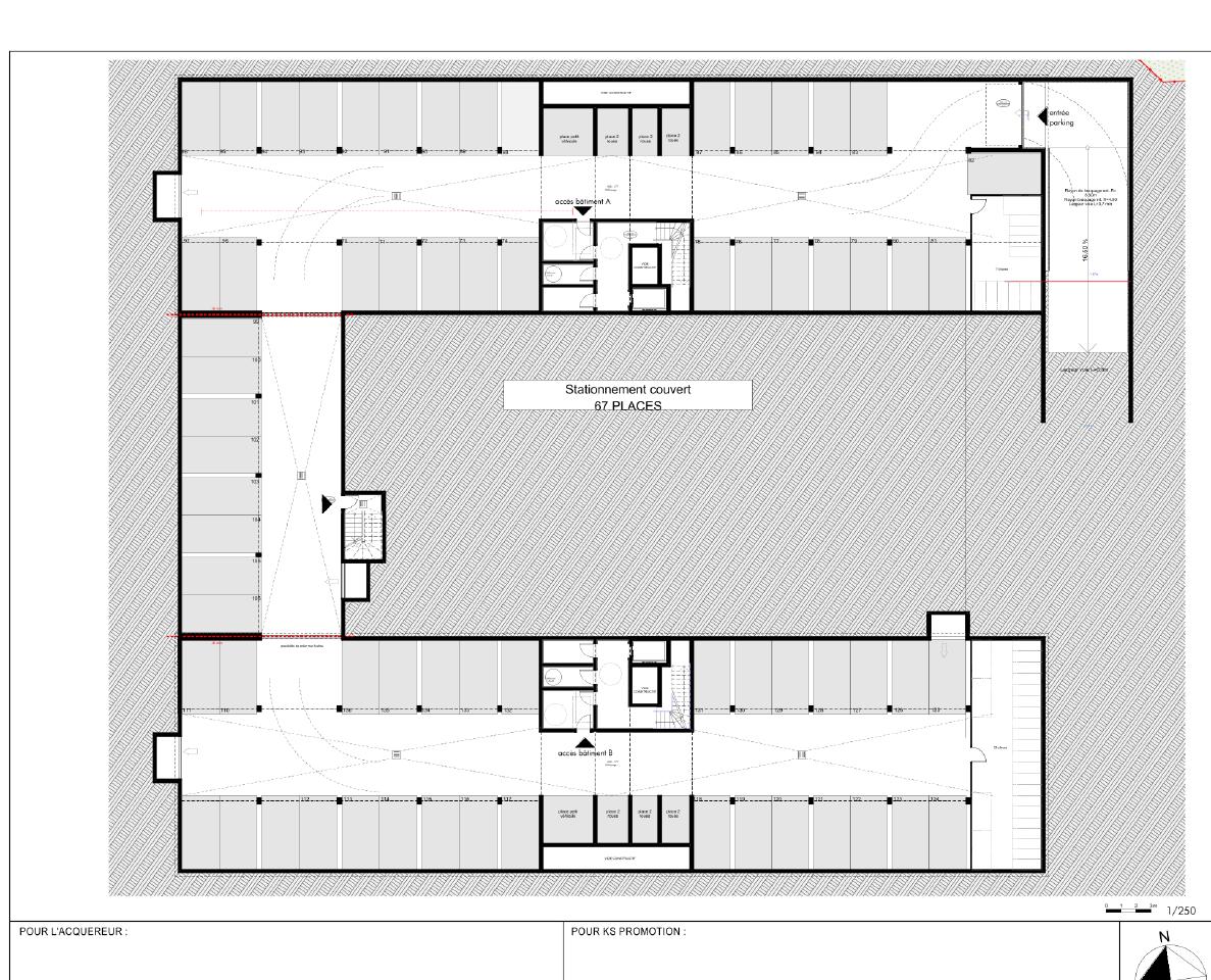
Le Lignum disposera de parkings extérieurs et en souterrain, des bornes de recharges pour véhicules électriques , 2 parcs à vélos en sous-sol. Possibilité d'un RIE.
Les lots du rez-de-chaussée autorisent une activité de restauration !
Détails des bâtiments:
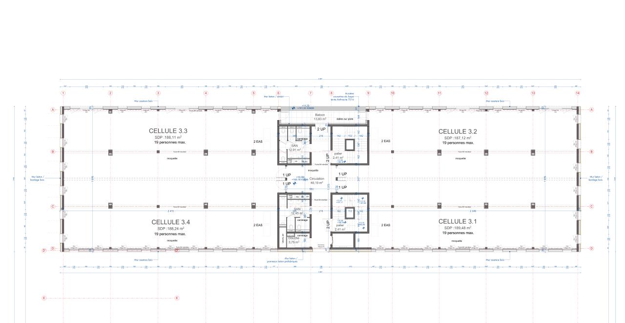
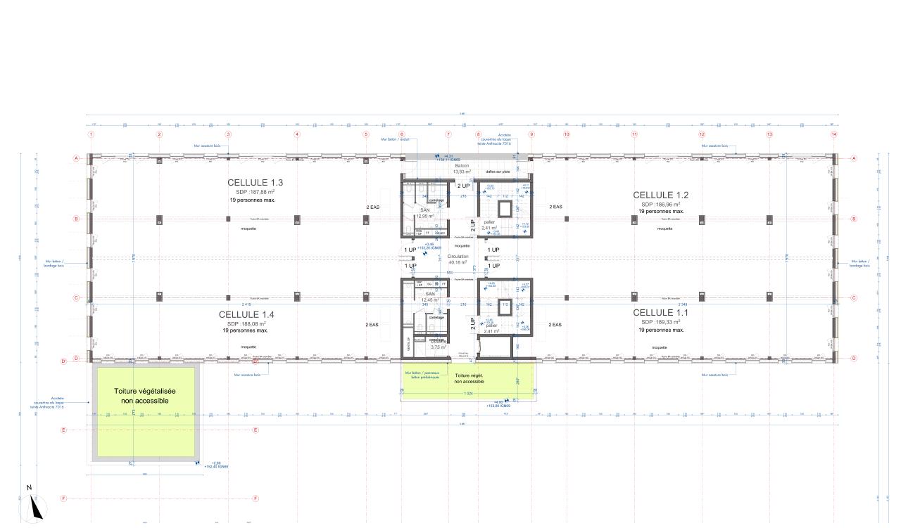
"Bâtiment A" en R+4 à construire, d' une surface d'environ 3 850 m² PCI divisibles dès 217 m²; dont l'attique d'une surface de 330 m² environ et sa terrasse privative de 158,40 m² environ
"Bâtiment B" en R+4 à construire, d'une surface d'environ 3 850 m² PCI divisibles dès 217 m² , dont l'attique d'une surface de 330 m² environ et sa terrasse privative de 158 m² environ.
144 places de parking dont 69 places à l'ext. et 69 places en sous-sol, dont 6 places pour les 2 roues.
Le parc tertiaire de l'Espace Européen de l'Entreprise (EEE), 1er Parc d'affaire de Strasbourg, accueille aujourd'hui environ 550 entreprises représentant plus de 10 000 salariés et abrite actuellement un parc de bureaux d'environ 300 000 m² de surface de plancher.
Ce parc accueille aussi d'environ 1 500 étudiants, il accueille aussi bien des activités privées ou publiques, et a su développer des activités de services aux utilisateurs tels que des hôtels, RESTAURANTS, CRECHES, centre de fitness ou activités médicales. La zone est labélisée "THD-Très Haut Débit".
L'Espace Européen de l'Entreprise bénéficie d'une accessibilité optimale, avec une déserte directe depuis la Gare TGV de Strasbourg avec le Bus à Haut Niveau de Service (BHNS) en 10 minutes environ, et d'un accès direct depuis l'AUTOROUTE A4-A35.
Les informations sur les risques auxquels ce bien est exposé sont disponibles sur le site Géorisques : www. georisques.gouv.fr
Contactez BNP Paribas Real Estate pour en savoir plus!
Services & prestations
Aménagements
-
Accès Pers. Mobilité Réduite : Ascenseur
-
Sanitaires : Parties communes
Equipements
-
Ascenseurs
-
Distribution chauffage : Réversible chaud froid (rafraichissement)
-
Eclairage Bureaux : Luminaires encastrés LEDS 300 Llux
-
Faux plafond : Dal. fibres minéral. 60,00 cm 60*60
-
Fenêtres : Alu Double vitrage
-
Plinthes techniques périphériques : 2 compartiments
-
Sol bureaux : Moquette en dalles
Prestations de service
-
Parking : Intérieur Prix : 1 000 € HT/UN/AN - Extérieur Prix : 200 € HT/UN/AN
Extérieurs
-
Terrasses - jardins : Rooftop
Normes, Certifications et Labels
-
Certification : BREEAM
Type / Etat du bâtiment
-
Etat de l'immeuble : Neuf
-
Etat des locaux : Neuf, Neuf










