




Location Bureau 2 208 m²
13013 Marseille
2 208 m²
Divisible dès 250 m²
135 €
HT/HC/m²/an
Disponibilité : Immédiate

Veronique REBUFAT
Description
MARSEILLE 13ème - LE SOLIS - TECHNOPOLE DE CHATEAU GOMBERT - BUREAUX A LOUER
Au sein de la ZAC du Pôle Technologique de Château Gombert, deux plateaux de bureaux pour une surface totale de 2 208 m² environ, divisibles en 4 lots, situés au rez-de-chaussée et au 2ème et dernier étage d'un immeuble à usage de bureaux .
Site clos et arboré.
92 places de parking extérieures privatives.
Nous vous proposons à la location des bureaux situés dans la ZAC du pôle technologique de Château Gombert.
L'immeuble LE SOLIS bénéficie d'un environnement de qualité : site clos et sécurisé, espaces verts, nombreux parkings extérieurs (80 places) certains ombragés.
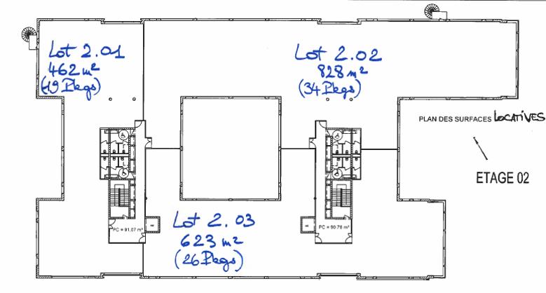
La surface proposée représente la totalité du 2ème étage soit 1 478 m² environ, ainsi que le rez-de-chaussée de 730 m².
Le plateau du deuxième étage est livré rénové non cloisonné et offrira une grande flexibilité d'aménagement.
LE SOLIS bénéficie d'une bonne accessibilité routière avec l'A507 à proximité immédiate et d'une desserte métro (station "LA ROSE » à 900 m)
Accessibilité :
Métro lignes 1 : LA ROSE à 10 minutes à pied
Accès routier : A50 et A7 via A507
Services :
Site clos, sécurisé et arboré
Bon ratio parkings (1/24 m²)
Grand plateau divisibles en 4 lots
Très lumineux
Rénovation des espaces bureaux
Locaux ERPableS
Services & prestations
Equipements
-
Ascenseurs : 1
-
Climatisation : Réversible
-
Distribution climatisation : Ventilo convecteur en plafonnier
-
Eclairage Bureaux : Luminaires encastrés
-
Faux plafond
-
Sol bureaux : Moquette
Prestations de service
-
Sécurité : Vidéo-surveillance
Normes, Certifications et Labels
-
Certification : BREEAM In Use
Type / Etat du bâtiment
-
Etat des locaux : Rénové
Informations complémentaires
-
Contrôle d'accès digicode et badges
-
2 pompes à chaleur à eau réversible
-
Plateau nu










