




Location Bureau 3 070 m²
33700 Mérignac
3 070 m²
125 €
HT/HC/m²/an
Disponibilité : 31/07/2026

Ludovic MICHELON
Description
Bureaux à louer Mérignac – Immeuble indépendant dans parc tertiaire
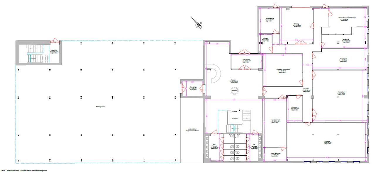
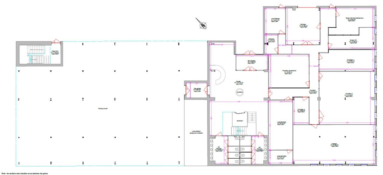
Immeuble indépendant de bureaux idéalement situé au sein du parc tertiaire de Mérignac à proximité du tramway et de l’aéroport. Site entièrement clôturé avec portail automatique. Vaste plateaux de bureaux propices à tous type d’activité offrant flexibilité et souplesse d’aménagement. Local de stockage avec porte sectionnelle. Nombreux parkings disponibles (207 emplacements). La parcelle bénéficie également d'une constructibilité résiduelle estimée entre 2 000 et 3 000 m² selon le projet envisagé.
À la recherche de bureaux à louer à Mérignac dans un cadre tertiaire stratégique, fonctionnel et opérationnel ?
Découvrez cet immeuble de bureaux indépendant situé au coeur d'un parc tertiaire dynamique. Idéalement positionné à proximité de l'aéroport de BordeauxMérignac et des transports, cet actif offre une accessibilité optimale pour vos collaborateurs et vos visiteurs.
Entièrement clos et sécurisé par portail automatique, l'ensemble immobilier se distingue par ses vastes plateaux, une grande souplesse d'aménagement et un local de stockage avec porte sectionnelle, conçu pour répondre aux besoins logistiques spécifiques des entreprises. Le site comprend par ailleurs un parking de 207 places, assurant un confort d'accès majeur pour les équipes et les visiteurs.
Caractéristiques & prestations
Immeuble indépendant en bon état, livré et prêt à usage
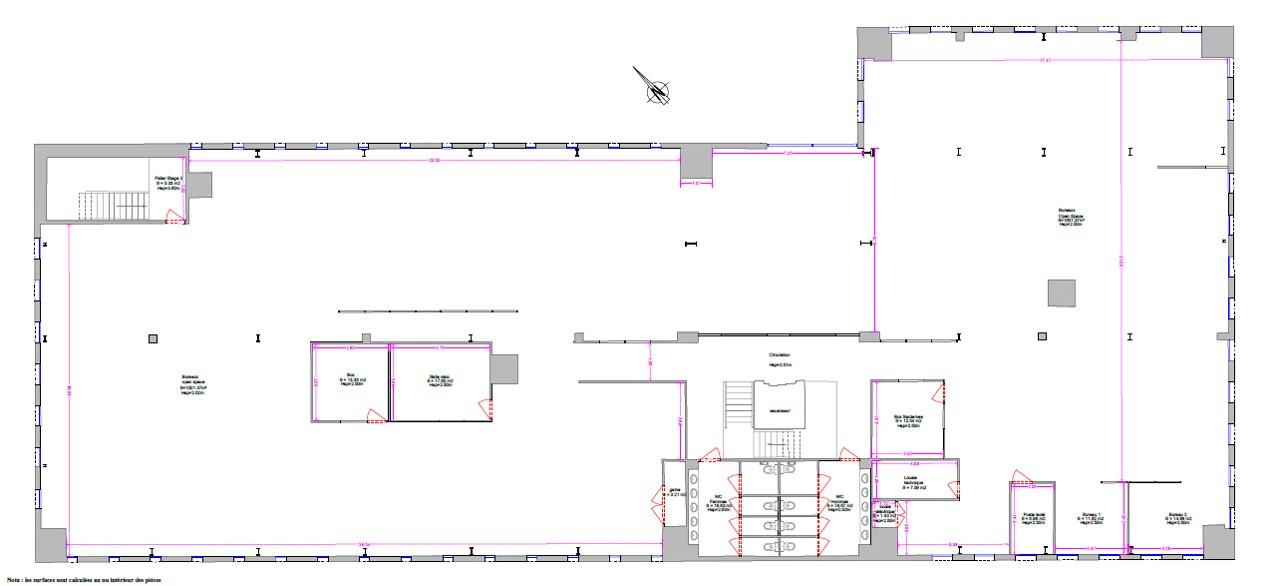
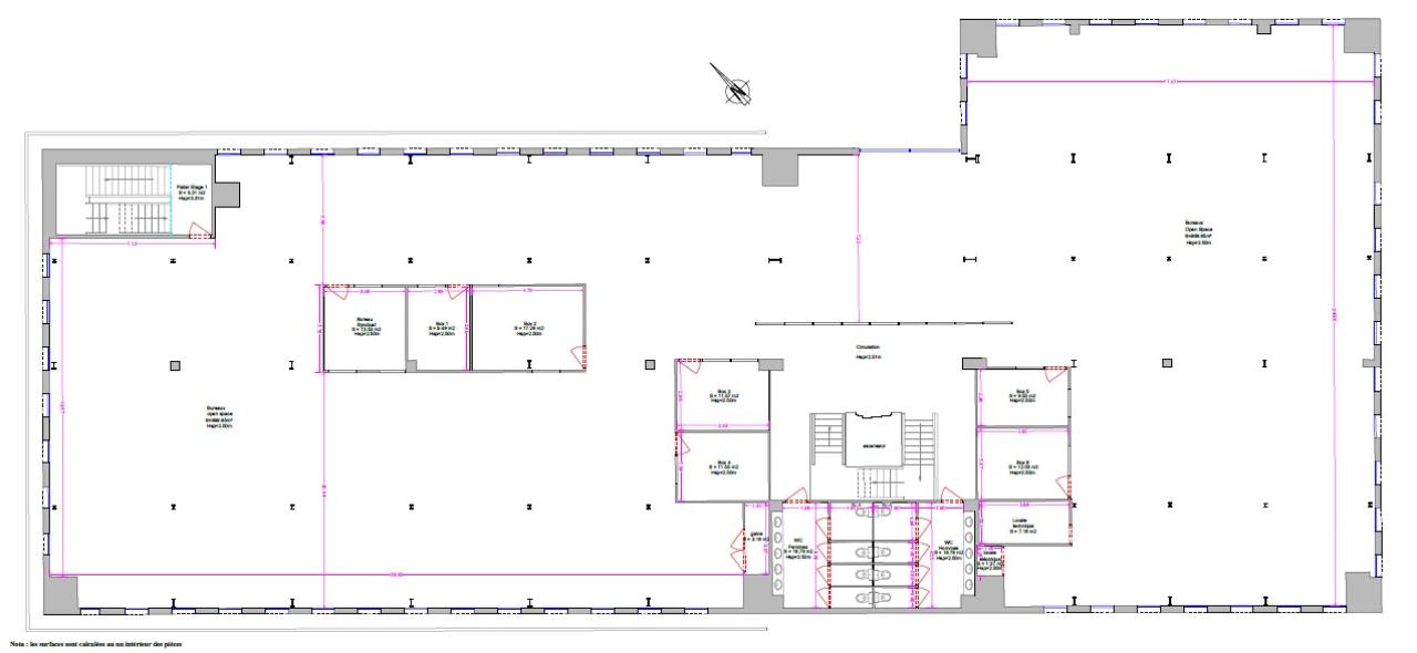
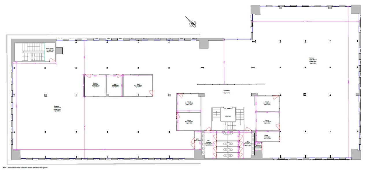
Plateaux de bureaux spacieux, modulables selon l'organisation interne
Local de stockage avec accès porte sectionnelle, adapté aux usages logistiques ou archives
Site entièrement clos, sécurisé par portail automatique
Parking de 207 emplacements dédiés employés et visiteurs
Emplacement tertiaire stratégique, dans un parc d'activités reconnu
Constructibilité résiduelle estimée entre 2 000 et 3 000 m², offrant un potentiel de développement ou de valorisation
Localisation & accessibilité
Parc tertiaire reconnu, à proximité directe de l'aéroport international de BordeauxMérignac
Accès rocade et axes routiers facilités
Dessertes transport en commun efficaces (tramway, bus) assurant une liaison métropolitaine fluide
Zone dynamique, prisée par les entreprises du tertiaire, de l'aéronautique et des services
Pourquoi ce bien est une opportunité
Une adresse tertiaire forte dans l'agglomération bordelaise, propice à l'implantation ou au développement d'une structure
Des prestations de qualité combinant surface, flexibilité et parking important
Un environnement professionnel sécurisé, identifiable et valorisant
Un potentiel de constructibilité supplémentaire, offrant une réserve d'évolution ou de rendement
Un emplacement stratégique garantissant visibilité, accessibilité et attractivité pour collaborateurs et clients
Découvrir aussi :
Bureaux à louer Mérignac parc tertiaire proche aéroport
Offre bureaux à louer Bordeaux métropole
Locaux tertiaires à louer Mérignac programmes neufs et services associés
Services & prestations
Aménagements
-
Aménagement des bureaux : Cloisonnés/Ouverts Cloison mobile
-
Complexe Salle de réunion
-
Hall d'accueil
Equipements
-
Ascenseurs
-
Climatisation : Réversible
-
Câblage informatique
-
Eclairage Bureaux : LED
-
Faux plafond : Dal. fibres minéral.
-
Faux plancher : Faux plancher technique
-
Sol bureaux : Moquette/Carrelage et PVC
Prestations de service
-
Cafétéria
Extérieurs
-
Terrasses - jardins : Terrasse aménagée
Informations complémentaires
-
Nombreux parkings
-
Open space










