




Vente Bureau 3 070 m²
33700 Mérignac
3 070 m²
5 200 000 €
HT/HD
Disponibilité : Immédiate

Ludovic MICHELON
Description
Bureaux à vendre à Mérignac – immeuble indépendant au cœur du parc tertiaire
BNP Paribas Real Estate vous propose des bureaux à vendre à Mérignac, au sein d'un immeuble indépendant idéalement situé dans le parc tertiaire de Mérignac, à proximité immédiate du tramway et de l'aéroport de Bordeaux-Mérignac.
Cette adresse stratégique conviendra parfaitement aux entreprises recherchant des bureaux professionnels à vendre à Mérignac, dans un environnement économique dynamique, facilement accessible et reconnu par les acteurs tertiaires de la métropole bordelaise.
Les atouts du bien :
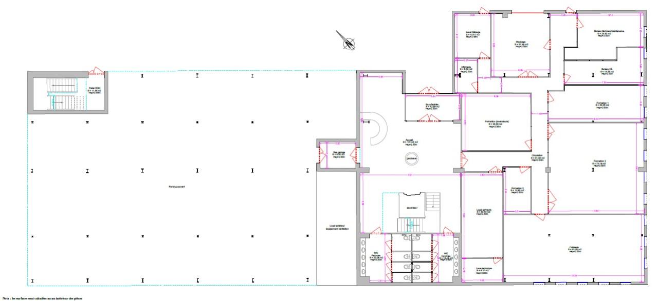
- immeuble indépendant de bureaux
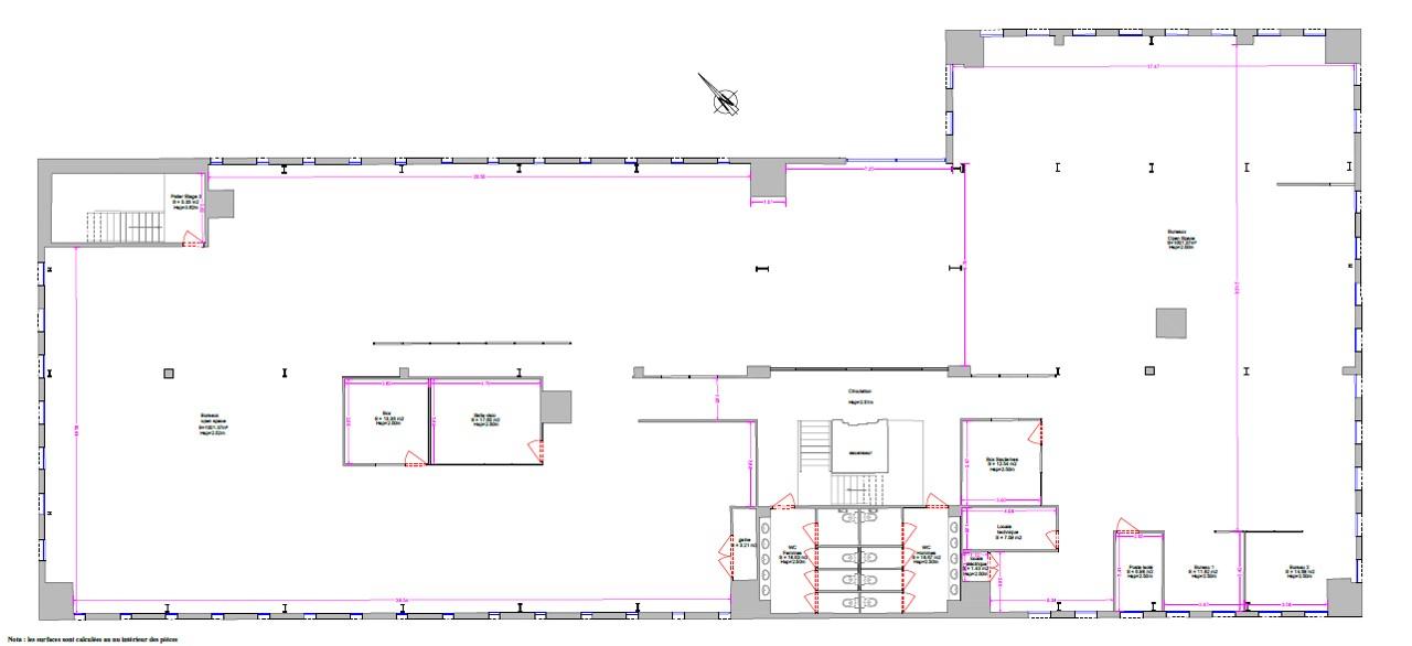
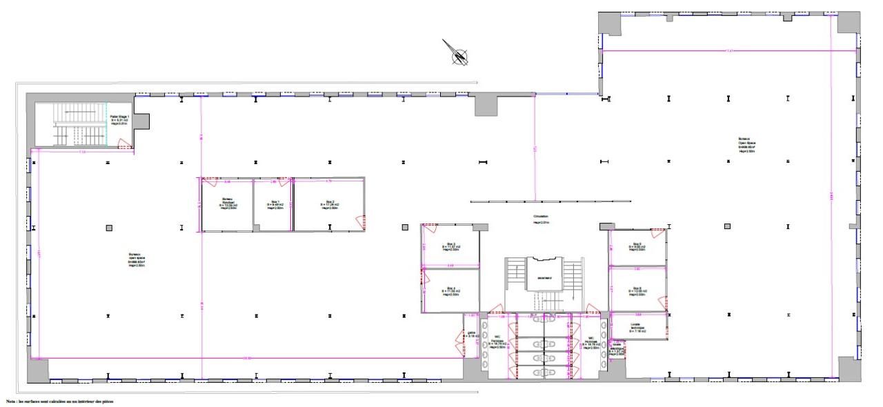
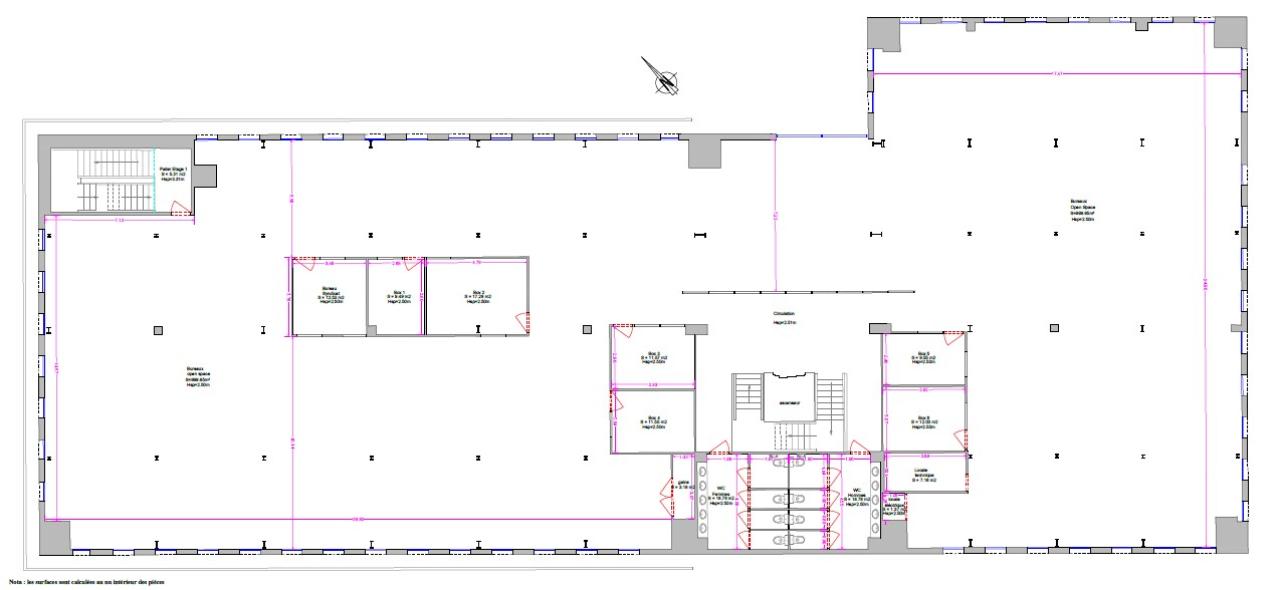
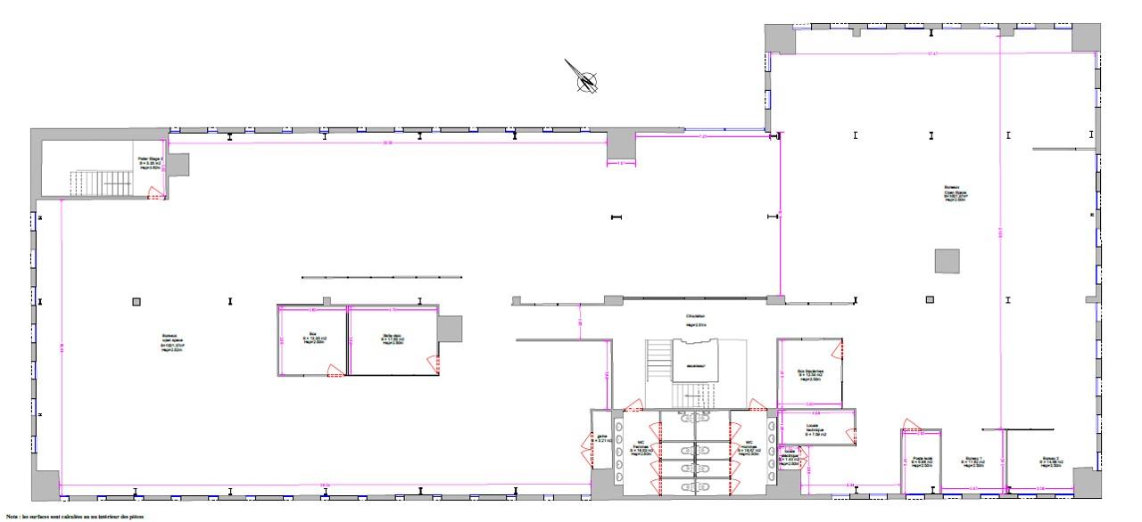
- vastes plateaux offrant une grande flexibilité d'aménagement
- ensemble immobilier entièrement clôturé
- site sécurisé par portail automatique
- local de stockage avec porte sectionnelle
- bâtiment adapté à différents usages tertiaires
- cadre de travail fonctionnel et évolutif
Ce bien se distingue par sa capacité à répondre à des besoins variés, qu'il s'agisse d'une implantation de siège social, d'une activité administrative, technique ou mixte. Les surfaces permettent une organisation souple des espaces de travail, dans un environnement pensé pour la performance et le confort d'usage.
Les points forts de la localisation :
- emplacement recherché au sein du parc tertiaire de Mérignac
- proximité immédiate du tramway
- accès rapide à l'aéroport de Bordeaux-Mérignac
- environnement économique dynamique
- secteur prisé par les entreprises
- situation stratégique à l'ouest de Bordeaux
Implanté dans l'un des principaux pôles tertiaires de la métropole, cet actif bénéficie d'un positionnement particulièrement attractif pour les entreprises souhaitant allier accessibilité, visibilité et efficacité opérationnelle. Le secteur de Mérignac séduit par sa concentration d'entreprises, sa proximité avec les grands axes et sa connexion rapide avec Bordeaux.
Accessibilité / stationnement :
- accès direct aux grands axes de circulation
- proximité des transports en commun
- desserte facilitée pour les collaborateurs et visiteurs
- vaste parking sur site
- 207 emplacements de stationnement
- confort d'accès exceptionnel pour les équipes et les clients
Autre atout majeur, la parcelle bénéficie d'une constructibilité résiduelle estimée entre 2 000 et 3 000 m², selon le projet envisagé. Un potentiel supplémentaire rare, permettant d'accompagner le développement futur de l'activité ou d'envisager une valorisation complémentaire du site.
Ces bureaux à vendre à Mérignac représentent une opportunité de qualité pour une entreprise ou un investisseur à la recherche d'un actif indépendant, sécurisé, accessible et évolutif, au sein d'un secteur tertiaire majeur de la métropole bordelaise.
Ces bureaux pourraient correspondre à vos attentes :
Pour organiser une visite et découvrir tout le potentiel de ce bien, contactez BNP Paribas Real Estate au 05 56 44 09 12.
Services & prestations
Aménagements
-
Aménagement des bureaux : Cloisonnés/Ouverts
-
Complexe Salle de réunion
-
Hall d'accueil
Equipements
-
Ascenseurs
-
Climatisation : Réversible
-
Câblage informatique
-
Eclairage Bureaux : LED
-
Faux plafond : Dal. fibres minéral.
-
Faux plancher : Faux plancher technique
-
Sol bureaux : Moquette/Carrelage et PVC
Prestations de service
-
Cafétéria
Extérieurs
-
Terrasses - jardins : Terrasse aménagée
Informations complémentaires
-
Local technique
-
Local de stockage de 30 m² avec porte sectionnelle










