




72 Rue Saint-Jean
31130 Balma
5 593 m²
Divisible dès 642 m²
205 €
HT/HC/m²/an
Disponibilité : 24 mois après accord

Olivier CALVET
Description
SECTEUR BALMA GRAMONT,
A proximité immédiate du métro ligne A et de la rocade, BNP Paribas Real Estate vous propose un ensemble immobilier à construire à usage de bureaux, disponible à la location ou à la vente.
L'intégralité de nos offres sur : https://www.bnppre.fr/toulouse
*** BUREAUX A LOUER/ A VENDRE - TOULOUSE EST BALMA-GRAMONT ***
L’ensemble immobilier profite d'un emplacement stratégique à proximité du métro ligne A Balma-Gramont, du Centre Commercial OCCITANIA et d'un accès direct via la rocade Est de Toulouse sortie n°15 "Balma-Gramont/Jolimont".
Balma est située aux portes de la métropole toulousaine, à l’Est de l’agglomération à seulement 15 minutes en voiture du centre-ville de Toulouse et à seulement 10 min en métro du centre-ville de Toulouse.
Balma est en plein essor avec notamment le développement par OPPIDEA de la ZAC Balma-Gramont qui accueille l’Ecoquartier Vidailhan. Cette zone de 106 hectares est dédiée pour 2/3 à l’activité économique et pour 1/3 à l’habitat.
Elle offre 14 hectares de parcs, des équipements publics dont un groupe scolaire, une crèche, une maison de quartier et propose du transport à la demande (TAD).
Situé aux portes de Toulouse, le projet est bordé par l’autoroute A61. Le centre-ville est relié quant à lui par 4 autoroutes.
L’aéroport de Toulouse se trouve à Blagnac et est joignable en 16 minutes par la rocade Est (A620) en voiture.
La gare de Toulouse-Matabiau est accessible en 13 minutes.
La zone d’activités dispose d’un accès direct à la rocade sortie n°15 et relie le Capitole en 15 minutes.
AUX ENVIRONS :
Proximité immédiate avec plusieurs commerces et services, y compris restauration et complexes sportifs (publics et privés).
PÔLE D’ACTIVITÉ MAJEUR :
Site de nombreuses délégations régionales en banques, assurances, mutuelles, …
Prestation techniques :
•Locaux livrés, plateaux nus, prêts à être cloisonnés
•Climatisation réversible
•Distribution climatisation : Ventilo Convecteur en plafonnier
•Distribution chauffage : réversible
•Production chauffage : autonome
•Sécurité : contrôle d’accès
•Aménagement des bureaux : espaces ouverts
•Faux plafond : dalles de fibre minérale
•Ascenseur(s)
•Bornes de recharges électrique
•Eclairage : luminaires encastrés
•Moquette au sol
•Sanitaires communs
•Label visée BREEAM Very Good
Services :
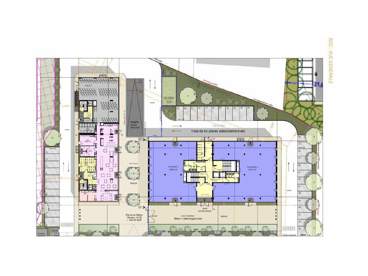
•Terrasses en R+6
•Parking aériens et sous-sol + parking deux roues
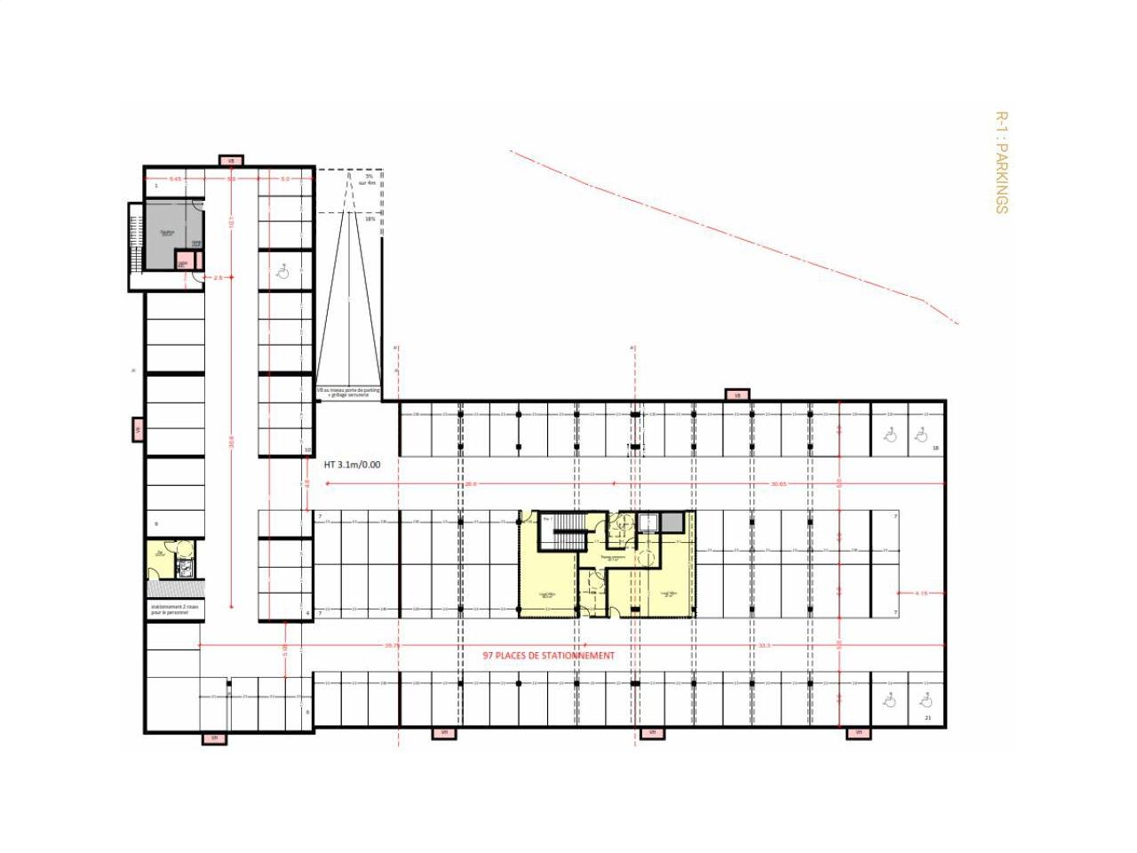
•Parking sous-sol : 97 places
•Parking aérien : 25 places
Desserte :
•Métro ligne A à 8 minutes
•Bus à 3 minutes
•Gare SNCF de Toulouse-Matabiau à 13 minutes
•Accès rocade à 2 minutes
•Aéroport de Toulouse Blagnac à 16 minutes
Services & prestations
Aménagements
-
Accès Pers. Mobilité Réduite : Ascenseur
-
Aménagement des bureaux : Espaces Ouverts
-
Sanitaires : Parties communes
Equipements
-
Ascenseurs
-
Climatisation : Réversible
-
Distribution chauffage : Réversible
-
Distribution climatisation : Ventilo convecteur en plafonnier
-
Eclairage Bureaux : Luminaires encastrés
-
Faux plafond : Dal. fibres minéral.
-
Plinthes techniques périphériques
-
Production climatisation : Autonome
-
Sol bureaux : Moquette
Prestations de service
-
Sécurité : Contrôle d'accès
Extérieurs
-
Terrasses - jardins
Normes, Certifications et Labels
-
Catégorie ERP : 5 type W au RDC
-
Certification : BREEAM
Type / Etat du bâtiment
-
Etat de l'immeuble : Neuf
-
Etat des locaux : Neuf
-
IGH / Code du travail : Code du travail
Informations complémentaires
-
Bornes de recharge électrique, Parkings ext : 25 (350 €/u/an HT)
-
Parkings int : 97 (1 000€/u/an HT)
-
Local deux roues couvert










