




4 Impasse Alice Guy
31300 Toulouse
330 m²
125 €
HT/HC/m²/an
Disponibilité : Immédiate

Aymeric DE SAINT AULAIRE
Description
SECTEUR RAMASSIERS,
Au sein d'un immeuble neuf, BNP Paribas Real Estate vous propose une surface à usage de bureaux, disponible à la location.
L'intégralité de nos offres sur : https://www.bnppre.fr/toulouse
TOULOUSE OUEST / BUREAUX A LOUER / ST MARTIN - RAMASSIERS
***DERNIERE SURFACE DISPONIBLE ***
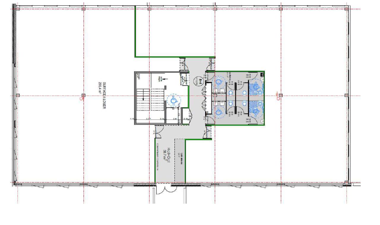
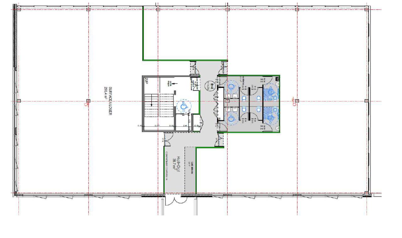
Venez découvrir ce bel immeuble neuf aux prestations de qualité situé au coeur de la zone aéronautique toulousaine. Les bureaux disponibles à la location sont au 4 étage.
Disponibilité immédiate
Prestations :
- Climatisation : Réversible
- Distribution climatisation : Ventilo convecteur en plafonnier
- Sécurité : Contrôle d'accès
- Aménagement des bureaux : Cloisonnés/Ouverts
- Faux plafond : Dalles en fibre minérale
- Plinthes techniq.périphériques
- Ascenseur(s)
- Eclairage Bureaux : Luminaires encastrés
- Sol bureaux : Moquette
- Sanitaire(s) : Parties communes
- Distribution chauffage : Réversible
L'immeuble dispose d'une aire de livraison & de terrasses.
10 places de parkings extérieurs sont incluses dans le loyer bureaux.
3 places de parkings intérieurs sont disponibles pour un loyer de 750/u /an.
Desserte & transports :
- Bus ligne n° à 100 mètres
- TER gare de Colomiers Ramassiers : 1000 m
- Desserte routière : accès immédiat Rocade Arc-en-Ciel
- Aéroport Toulouse-Blagnac : 7 km
ZOOM SUR LA ZAC DES RAMASSIERS :
La ZAC des Ramassiers, qui se situe sur la commune de Colomiers, bénéficie d'un positionnement idéal, entre Toulouse et Tournefeuille, à l'ouest de la métropole. Elle est très bien connectée à Toulouse via la ligne C du TER et la rocade Arc en Ciel.
A noter également que la ZAC des Ramassiers se trouve à 10 min à peine de l'aéroport international de Toulouse Blagnac. L'accès à la zone est aisée via la sortie n°29 « Purpan » de la rocade toulousaine direction AUCH via la N124/A624.
Basé à proximité des pôles économiques métropolitains majeurs, le quartier des Ramassiers est dynamisé par l'activité aéronautique de la zone et de celle limitrophe de la ZAC de Saint-Martin du Touch.
ZOOM SUR LA ZAC DE SAINT-MARTIN DU TOUCH A TOULOUSE :
La ZAC de Saint-Martin du Touch, située sur la commune de Toulouse, représente 160 ha. Il s'agit d'un vaste parc d'activités mixtes comprenant de nombreux immeubles tertiaires hébergeant de grands groupes industriels et de services, des locaux d'activité et des résidences hôtelières.
De nombreux secteurs d'activités y sont présents : informatique, électronique, bureaux d'études, ingénierie industrielle, sous-traitance aéronautique.
La zone représente un emplacement stratégique pour l'ensemble de l'agglomération toulousaine : une proximité immédiate avec les sièges sociaux d'AIRBUS et d'AIRBUS GROUP et l'ensemble des grands donneurs d'ordre liés à l'aéronautique, un accès direct à l'aéroport via le Fil d'Ariane, une situation attractive à 10 min du centre-ville et du Capitole et de la rocade Ouest.
Services & prestations
Aménagements
-
Aménagement des bureaux : Cloisonnés/Ouverts
-
Sanitaires : Parties communes
Equipements
-
Ascenseurs
-
Climatisation : Réversible
-
Distribution chauffage : Réversible
-
Distribution climatisation : Ventilo convecteur en plafonnier
-
Eclairage Bureaux : Luminaires encastrés
-
Faux plafond : Dal. fibres minéral.
-
Plinthes techniques périphériques
-
Sol bureaux : Moquette
Prestations de service
-
Sécurité : Contrôle d'accès
Extérieurs
-
Aire de livraison
-
Terrasses - jardins
Type / Etat du bâtiment
-
Etat des locaux : Neuf
-
IGH / Code du travail : Code du travail










