




20 Rue Saint-Jacques
31000 Toulouse
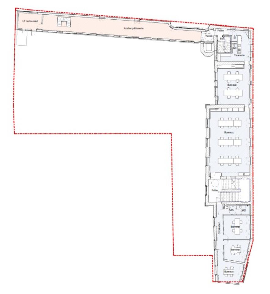
460 m²
223 €
HT/HC/m²/an
Disponibilité : 15 mois après accord

Louise BOURRIERES
Description
*** SECTEUR SAINT-ETIENNE : BUREAUX NEUFS D'EXCEPTION A LOUER ***
OPPORTUNITE RARE
Au coeur du magnifique quartier Saint-Etienne dans le centre-ville de Toulouse et à proximité du Grand Rond, BNP PARIBAS REAL ESTATE vous propose des bureaux neufs de 460 m² au sein d'un hôtel particulier bâtiment emblématique dont la façade est classée monument historique.
L'immeuble accueillera également un restaurant gastronomique dans la cour.
Les prestations bureaux seront d'excellente qualité.
Prestations :
Bureaux en RDC et R+1
Climatisation : Réversible
Distribution climatisation : Ventilo convecteur en plafonnier
Sécurité : Contrôle d'accès
Distribution chauffage : Réversible
Production climatisation : Autonome
Parquet au sol
Desserte & transports :
Métro ligne "François Verdier" à 350 mètres
Bus arrêt "François Verdier" à 350 mètres
Vélos partagés à 300 mètres au Grand Rond
Gare Toulouse Matabiau à 1,8 km
Desserte routière : accès rocade à 4 kilomètres sortie n°31 "Ponts Jumeaux"
Aéroport de Toulouse-Blagnac à 9,6 kilomètres.
Bail commercial 3/6/9 années
ZOOM SUR TOULOUSE CENTRE :
Le centre-ville de Toulouse est un pôle économique majeur, offrant un large choix d'opportunités en immobilier d'entreprise. Il séduit autant les grandes entreprises que les startups. Son accessibilité, son dynamisme et la diversité de son offre en font un emplacement privilégié pour y implanter son entreprise.
Le quartier Matabiau, en pleine transformation avec le projet Grand Matabiau Quais d'Oc, est destiné à devenir le nouveau quartier d'Affaires de la Métropole. Grâce à la modernisation de la Gare Toulouse-Matabiau, l'arrivée de la 3ème ligne de métro et des aménagements urbains ambitieux, ce nouveau quartier offrira une offre tertiaire moderne et connectée aux entreprises en quête de centralité et d'accessibilité.
Le quartier Guillaumet, situé à l'est du centre-ville, actuellement en pleine reconversion propose une offre diversifiée de logements, commerces et bureaux. Il est conçu pour favoriser l'innovation et le bien-être au travail et attire déjà de nombreuses entreprises.
Situé à deux pas du centre-ville et du Capitole, la ZAC de Compans Caffarelli est le 1er quartier d'affaire de TOULOUSE regroupant un parc immobilier vieillissant qui nécessitera une remise à niveau et une production d'offres neuves.
Services & prestations
Aménagements
-
Aménagement des bureaux : Espaces Ouverts
-
Sanitaires : Parties communes
Equipements
-
Ascenseurs
-
Climatisation : Réversible
-
Câblage informatique
-
Distribution chauffage : Réversible
-
Distribution climatisation : Ventilo convecteur en plafonnier
-
Eclairage Bureaux : Luminaires encastrés
-
Faux plancher
-
Production climatisation : Autonome
-
Sol bureaux : Parquet
Prestations de service
-
Sécurité : Contrôle d'accès
Type / Etat du bâtiment
-
Etat des locaux : Restructuré avec PC
-
IGH / Code du travail : Code du travail
Informations complémentaires
-
Les honoraires de gestion technique de l’immeuble sont exprimés TTC










