




Location Bureau 250 m²
31000 Toulouse
250 m²
340 €
HT/HC/m²/an
Disponibilité : Immédiate

Louise BOURRIERES
Description
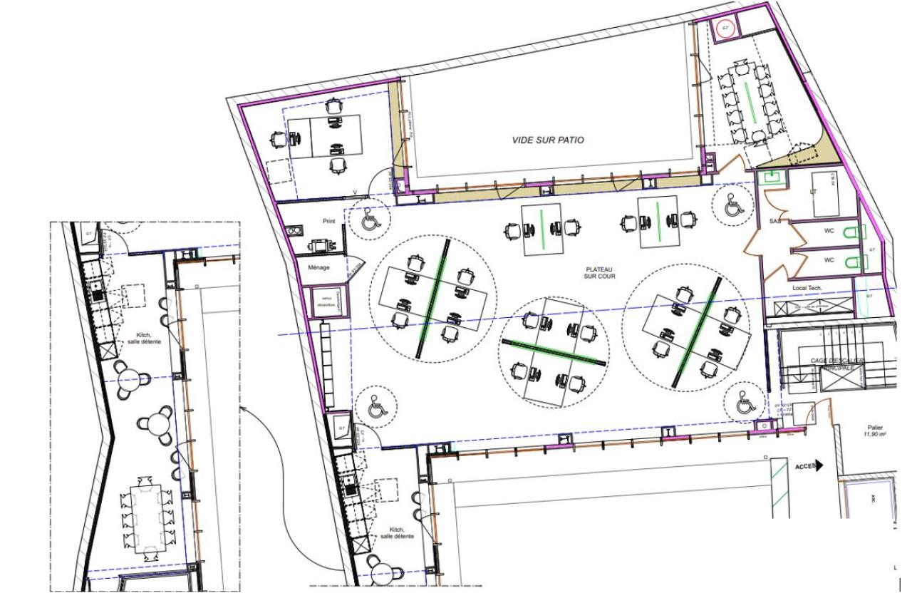
*** BUREAUX RENOVES A LOUER - HYPER CENTRE ***
Au cœur du centre-ville et à proximité de toutes commodités, BNP Paribas Real Estate vous propose ces locaux d’exception, dans un immeuble emblématique Toulousain.
En R+4 d'un immeuble PMR, l'immeuble offre un parcours client qualitatif du rez-de-chaussée jusqu'aux étages.
- Parking public à proximité
- Métro à 400m
- Cuisine partagée
- 3 sanitaires privatifs
- Câblage RJ45
- Grand open space pouvant être cloisonné si besoin
- 2 grands bureaux
Bail commercial 3/6/9 ans
Contactez-nous pour visiter
L'intégralité de nos offres sur : https://www.bnppre.fr/toulouse
ZOOM SUR LE CENTRE-VILLE DE TOULOUSE :
Le centre-ville de Toulouse est un pôle économique majeur, offrant un large choix d'opportunités en immobilier d'entreprise. Il séduit autant les grandes entreprises que les startups. Son accessibilité, son dynamisme et la diversité de son offre en font un emplacement privilégié pour y implanter son entreprise.
Le quartier Matabiau, en pleine transformation avec le projet Grand Matabiau Quais d'Oc, est destiné à devenir le nouveau quartier d'Affaires de la Métropole. Grâce à la modernisation de la Gare Toulouse-Matabiau, l'arrivée de la 3ème ligne de métro et des aménagements urbains ambitieux, ce nouveau quartier offrira une offre tertiaire moderne et connectée aux entreprises en quête de centralité et d'accessibilité.
Le quartier Guillaumet, situé à l'est du centre-ville, actuellement en pleine reconversion propose une offre diversifiée de logements, commerces et bureaux. Il est conçu pour favoriser l'innovation et le bien-être au travail et attire déjà de nombreuses entreprises.
Situé à deux pas du centre-ville et du Capitole, la ZAC de Compans Caffarelli est le 1er quartier d'affaire de TOULOUSE regroupant un parc immobilier vieillissant qui nécessitera une remise à niveau et une production d'offres neuves.
Services & prestations
Aménagements
-
Accès Pers. Mobilité Réduite
-
Sanitaires : 3 Privatif(s)
Equipements
-
Ascenseurs
-
Climatisation : Réversible
-
Câblage informatique : RJ45
-
Distribution chauffage : Réversible
-
Distribution climatisation : Ventilo convecteur en plafonnier
-
Eclairage Bureaux : Luminaires suspendus
-
Fenêtres : Double vitrage et stores electriques
-
Plinthes techniques périphériques
-
Sol bureaux : Moquette
Prestations de service
-
Sécurité : Contrôle d'accès
Normes, Certifications et Labels
-
Catégorie ERP : 3
Type / Etat du bâtiment
-
Etat de l'immeuble : Rénové
Informations complémentaires
-
Coursive privative, Espaces de travail / mobilier sur mesure
-
Cuisine partagée










