




Location Bureau 6 894 m²
34000 Montpellier
6 894 m²
Divisible dès 450 m²
à partir de 200 €
HT/HC/m²/an
Disponibilité : 30 mois après accord

Caroline DE BOISGELIN-ABECASSIS
Description
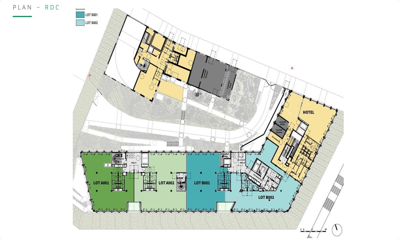
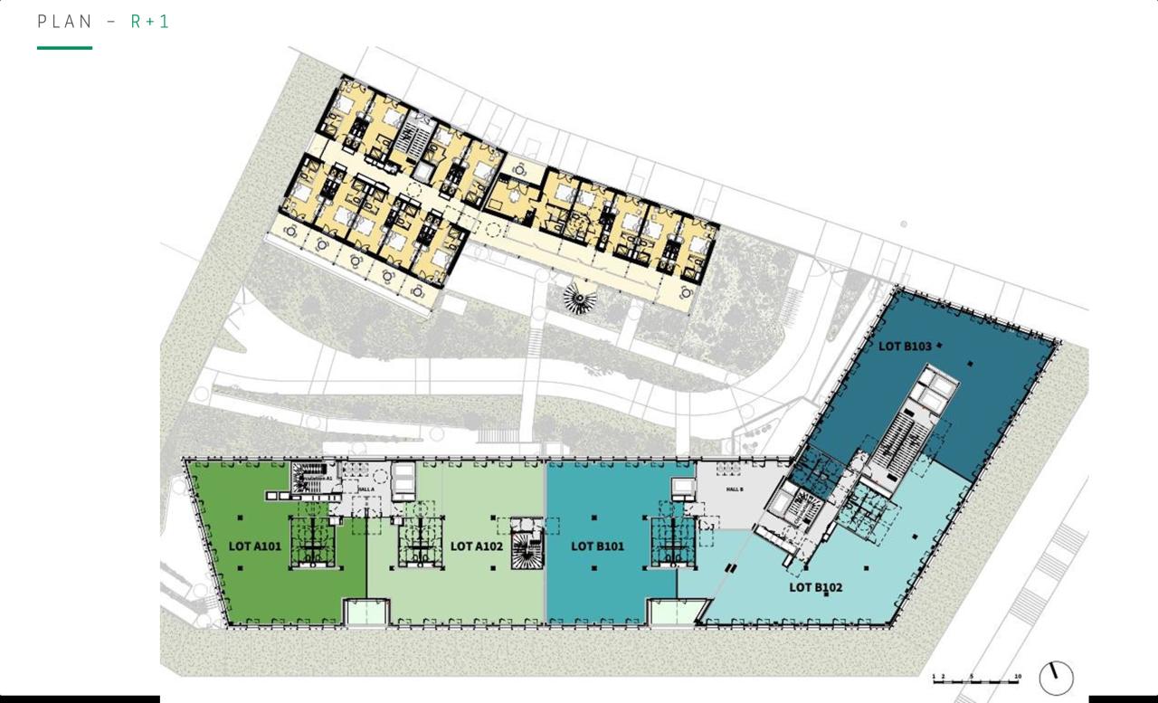
MONTPELLIER CENTRE - REPUBLIQUE - ESPRIT LIBRE - A LOUER
Nous vous proposons à la location, au cœur du nouveau quartier République, un ensemble immobilier composé de bureaux, au sein du Programme ESPRIT LIBRE
A la location, découvrez cet ensemble immobilier de bureaux ESPRIT LIBRE au sein du programme QUARTIER LIBRE, à l'empreinte carbone réduite situé dans le quartier de République, nouveau centre urbain de Montpellier.
Les surfaces proposées bénéficient de vastes plateaux de bureaux en open-space, livrés hors cloisonnement permettant une modularité totale selon les besoins spécifiques de chaque entreprise. Ces volumes libres favorisent l'aménagement de zones collaboratives , bureaux individuels ou espace hybrides dans une logique de flexibilité et d'évolution des usages.
A la livraison, les bureaux offriront une finition comprenant :
Ce niveau de prestation permet une prise en main rapide des locaux, tout en laissant la liberté d'adapter l'environnement de travail à l'identité et aux exigences de l'utilisateur final.
EN SAVOIR PLUS SUR LE SECTEUR DE RÉPUBLIQUE
Le quartier république, prolongement du secteur Port Marianne accompagne la composition urbaine qui se constitue le long des avenues Nina Simone et Raymond Dugrand. Il fait ainsi face aux îlots de la partie sud du quartier Port Marianne, aux îlots de la façade et de l'écoquartier Rive gauche.
Ce quartier bénéficie du label ECO QUARTIER avec des bâtiments à haute performance environnementale.
Il incarne une nouvelle vision de l'urbanisme : durable, inclusif, connecté à la nature et pensé comme une centralité Montpelliéraine nouvelle en offrant des perspectives intéressantes pour les entreprises en quête de bureaux écoresponsables, bien desservis et stratégiquement situés.
Les mobilités douces y sont encouragées avec de nombreuses pistes cyclables, des cheminements piétons et des stationnements mutualisés.
Ce secteur devient un nouveau pôle tertiaire métropolitain attractif pour les entreprises du numérique, du conseil, de la santé et de l'économie locale.
Il s'inscrit dans une logique de continuité urbaine en venant raccorder naturellement le secteur Cambacérès aux secteurs Hippocrate et Port Marianne.
Services & prestations
Aménagements
-
Accès Pers. Mobilité Réduite
-
Aménagement des bureaux : Espaces Ouverts Bureaux livrés en open space, hors cloisonnemennt
-
Complexe Salle de réunion
-
Effectif théorique : 1pers/ 8 m² Surface Utile Nette
-
Sanitaires : Privatif(s)
Equipements
-
Ascenseurs : 4 2 ascenseurs par bâtiment
-
Climatisation : Réversible
-
Douche : 4
-
Faux plafond
-
Sol bureaux : Dls.thermoplastiques
Prestations de service
-
Fitness
Extérieurs
-
Terrasses - jardins : Rooftop et terrasses
Normes, Certifications et Labels
-
Catégorie ERP : Batiment A : Code du Travail - Bâtiment B : ERP
-
Certification :
Type / Etat du bâtiment
-
Etat de l'immeuble : Neuf
Informations complémentaires
-
Tisanerie en cours de validation
-
Local vélo
-
Hotel au sein du programme Q'ARTIER LIBRE










