




Location Bureau 1 288 m²
44470 Carquefou
1 288 m²
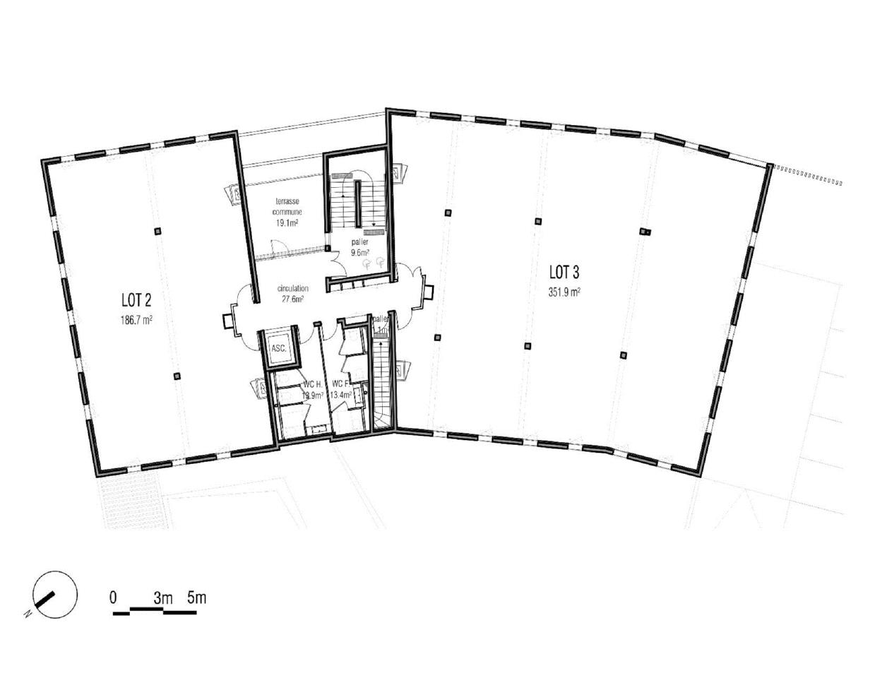
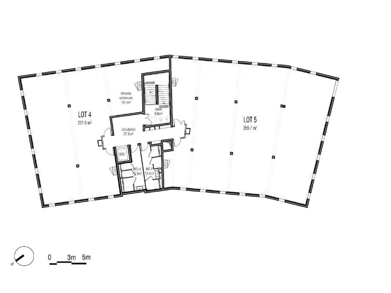
Divisible dès 206 m²
à partir de 130 €
HT/HC/m²/an
Disponibilité : Immédiate

Anne-Charlotte ZABEL
Description
BUREAUX NEUFS - BELLE VISIBILITÉ -
ZAC DU VERGER - CARQUEFOU
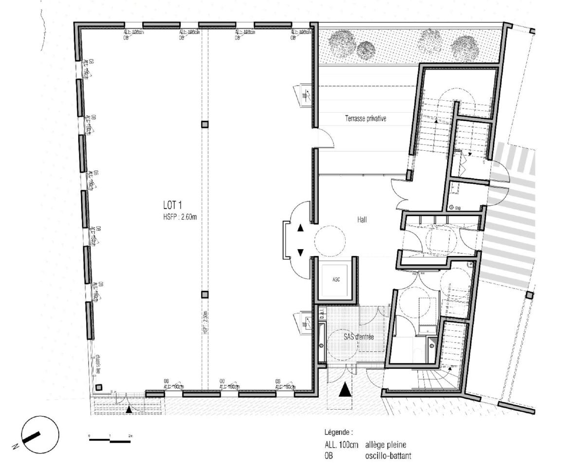
BNP Paribas Real Estate vous propose des bureaux neufs à louer dans un immeuble indépendant à partir de 206 m². Ce bien classé Code du Travail est proposé non cloisonné, vous permettant ainsi d'aménager sur mesure votre espace.
Le RDC classé ERP est livré brut de béton rendant lui aussi modulable l'aménagement. Il dispose aussi d'une terrasse privative.
Ces surfaces bénéficient d'une climatisation avec air rafraîchi et offrent à leurs usagers des places de stationnement privatives et un local vélo/trottinette sécurisé.
Bénéficiez d'une excellente localisation sur la commune de Carquefou pour allier proximité urbaine, verdure et connexion aux grands axes routiers afin de faciliter vos déplacements. A deux pas du centre-ville de Carquefou, de ses commerces et services, ce bâtiment bénéficie d'un accès rapide à l'A11 et au périphérique nantais.
Plusieurs lignes de bus desservent ce bien et/ou permettent d'accéder aux principales lignes de tramway de Nantes Métropole :
- Ligne 95 : arrêt Verger
- Ligne 75 et E5 : arrêt Erdreau
- Ligne 85 : arrêt Schweitzer
Au coeur de l'écosystème d'entreprises, cet emplacement bénéficie d'une visibilité directe sur l'axe principale menant au centre de Carquefou, idéal pour viser un public varié.
Services & prestations
Aménagements
-
Sanitaires : Parties communes
Equipements
-
Climatisation : Air rafraîchi
-
Eclairage Bureaux : Luminaires encastrés pavés LED
-
Faux plafond : Dal. fibres minéral.
-
Sol bureaux : Moquette en étages
Prestations de service
-
Sécurité
Normes, Certifications et Labels
-
Catégorie ERP : Sur RDC
Type / Etat du bâtiment
-
Etat de l'immeuble : Neuf
-
Etat des locaux : Neuf
-
Immeuble indépendant
Informations complémentaires
-
Local sécurisé vélos-trottinettes, RDC : brut de béton
-
Etages : livrés aménagés non cloisonnés non câblés










