




Vente Bureau 1 288 m²
44470 Carquefou
1 288 m²
Divisible dès 206 m²
à partir de 412 140 €
HT/HD
Disponibilité : Immédiate

Anne-Charlotte ZABEL
Description
BUREAUX NEUFS a louer - BELLE VISIBILITÉ -
ZAC DU VERGER - CARQUEFOU
BNP Paribas Real Estate vous propose des bureaux neufs à vendre dans un immeuble indépendant.
Accessibilité et confort:
A deux pas du centre-ville de Carquefou, de ses commerces et services, ce bâtiment bénéficie d'un accès rapide à l'A11 et au périphérique.
Plusieurs lignes de bus permettent de desservir ce bien et/ou d'accéder aux principales lignes de tramway de l'agglomération nantaise.
- Ligne 95 : arrêt Verger
- Ligne 75 et E5 : arrêt Erdreau
- Ligne 85 : arrêt Schweitzer
Cet immeuble indépendant à l'architecture élégante et à la conception fonctionnelle propose un cadre de travail au coeur de la verdure, à proximité du golf de Carquefou.
C'est une excellente localisation pour allier proximité urbaine, verdure et connexion aux grands axes routiers afin de faciliter vos déplacements.
Des espaces flexibles adaptés à vos besoins :
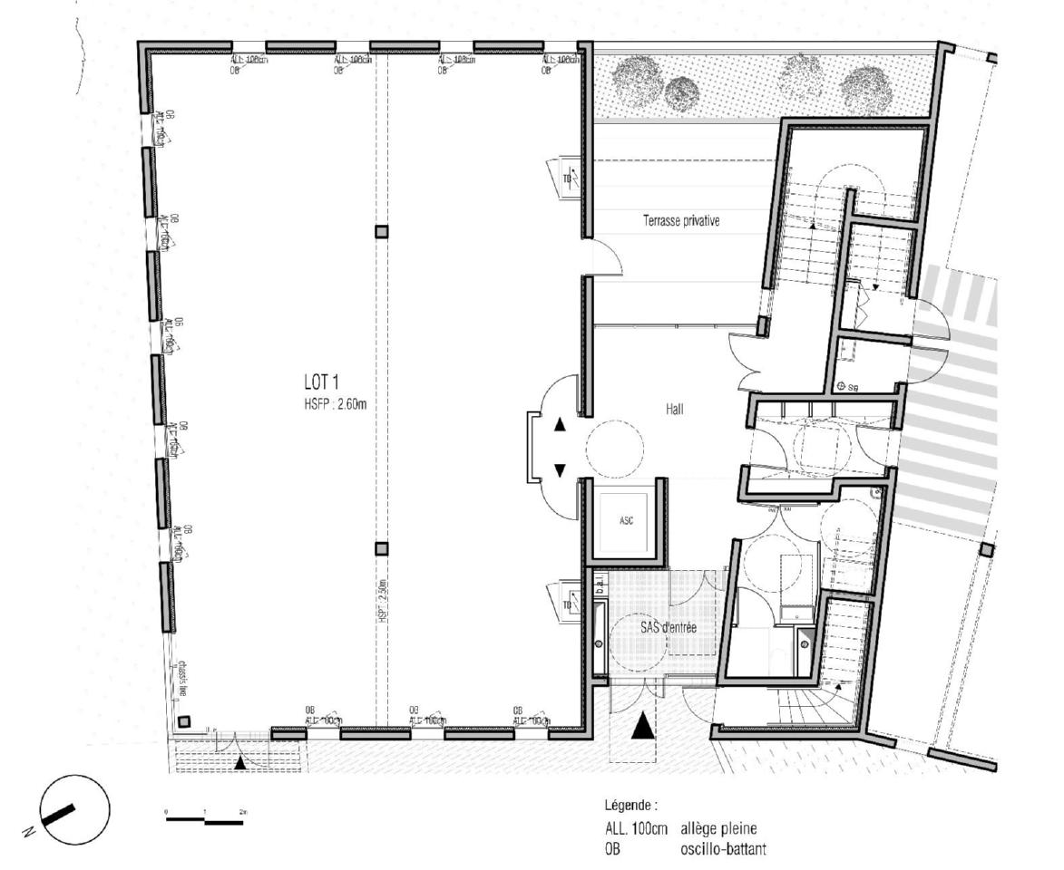
Nous vous proposons à l'acquisition des surfaces neuves aménagées à partir de 206 m². Ce bien classé Code du Travail est proposé non cloisonnés, vous permettant ainsi d'aménager sur mesure votre espace.
Le RDC classé ERP est livré brut de béton rendant lui aussi modulable l'aménagement. Il dispose aussi d'une terrasse privative.
Ces surfaces bénéficient d'une climatisation avec air rafraîchi et offrent à leurs usagers des places de stationnement privatives et un local sécurisé pour vélos et trottinettes.
Up'la dispose de terrasses communes à chaque étage !
Visibilité accrue et dynamisme :
Au coeur de l'écosystème d'entreprises, cet emplacement bénéficie d'une visibilité directe sur l'axe principale menant au centre de Carquefou, idéal pour viser un public varié.
C'est une localisation en plein essor, idéal pour y developper son entreprise.
Services & prestations
Aménagements
-
Sanitaires : Parties communes
Equipements
-
Climatisation : Air rafraîchi
-
Eclairage Bureaux : Luminaires encastrés pavés LED
-
Faux plafond : Dal. fibres minéral.
-
Sol bureaux : Moquette en étages
Prestations de service
-
Sécurité : Contrôle d'accès Digicode
Normes, Certifications et Labels
-
Catégorie ERP : Sur RDC
Type / Etat du bâtiment
-
Etat de l'immeuble : Neuf
-
Etat des locaux : Neuf
-
Immeuble indépendant
Informations complémentaires
-
Local sécurisé vélos-trottinettes, RDC : brut de béton
-
Etages : livrés aménagés non cloisonnés non câblés










