




Location Bureau 4 135 m²
54520 Laxou
4 135 m²
Divisible dès 129 m²
166 €
HT/HC/m²/an
Disponibilité : 01/09/2027

Florine DEVEAUX
Description
PROCHAINEMENT à LAXOU - BUREAUX NEUFS A LOUER
réf OLBUR2318727
BNP PARIBAS REAL ESTATE vous présente ce futur bâtiment de bureaux à construire de + de 4000 m², à NANCY-LAXOU sur un axe passant, à l'entrée ouest de la ville. D'une architecture singulière, vous serez séduits par ses grandes baies vitrées, ses loggias et sa grande terrasse végétalisée au dernier niveau. Idéal pour le bien-être de vos collaborateurs, le projet prévoit également de nombreux emplacements de stationnement (110 au total). Le bien sera disponible à la location.
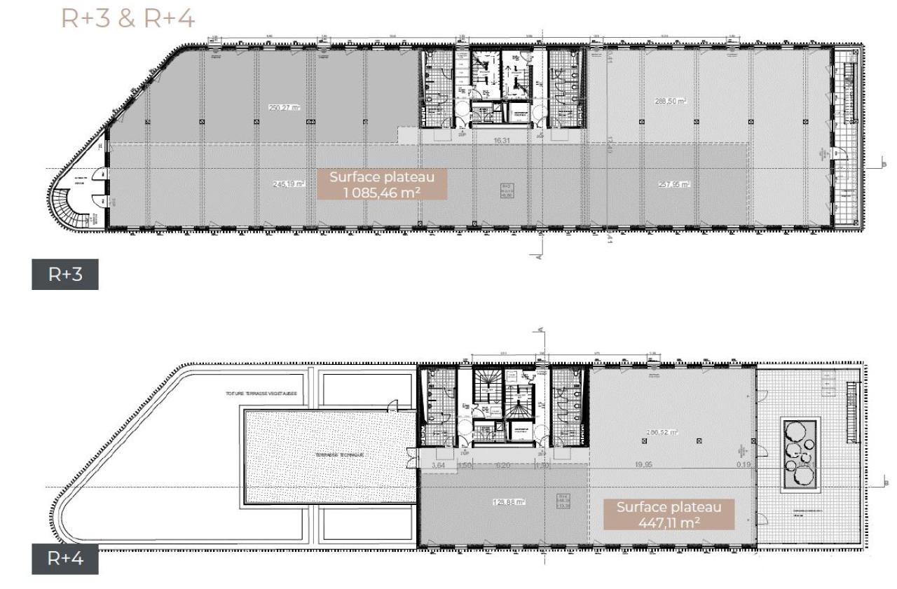
Rare ; grands plateaux de + de 1100 m² d'un seul tenant.
BUREAUX NEUFS - A LOUER - 4000 m² - 54520 LAXOU
Bnp Paribas Real Estate vous propose à la location, des bureaux dans cet immeuble dont le chantier vient de commencer : Livraison prévue : Septembre 2027
Caractéristiques
Immeuble neuf
Site clos et sécurisé
Parking privatif avec des bornes de recharges pour véhicules éléctriques
Parking vélos
Toiture végétalisée
Bureaux prêts à être cloisonnés
Terrasse en R+4 et loggia à chaque niveau
Accès PMR
Possible ERP
RE 2020
Autre particularité de ce projet : ses plateaux de quasiment 1200 m² chacun sur 3 niveaux !
Accessibilité
Autoroutes A31 & A33
Gare SNCF de Nancy : 11 min
Gare Lorraine TGV : 27 min
Transports en commun :
Lignes T2, T4
Bus Corol
Prenez rendez-vous pour une présentation complète du projet.
Conseiller en Immobilier d'Entreprise, BNP PARIBAS REAL ESTATE ADVISORY vous accompagne dans votre recherche de bureaux, locaux d'activité et entrepôts logistiques en Meurthe-et-Moselle, à la location et à la vente.
Services & prestations
Aménagements
-
Accès Pers. Mobilité Réduite
-
Aménagement des bureaux : Espaces Ouverts prêt àêtrecloisonné
-
Sanitaires
Equipements
-
Ascenseurs : 1
-
Eclairage Bureaux : Dalles LED
-
Faux plafond
-
Revêtement mural : Peinture
-
Sol bureaux : Moquette
-
Source chauffage : Electrique
Hauteurs
-
Hauteur sous-plafond : 2,70 mètre(s)
Prestations de service
-
Parking : Clos et sécurisé
Extérieurs
-
Terrasses - jardins : En R+4 et loggia à chaque niveau
Type / Etat du bâtiment
-
Etat de l'immeuble : Neuf
-
Immeuble indépendant : De bureaux en R+4
-
Type d'immeuble : Classification code du travail / possible ERP
Informations complémentaires
-
Bornes de recharges pour véhicules électriques
-
Toiture végétalisée










