




16-18 Boulevard de la Mothe
54000 Nancy
1 871 m²
Divisible dès 140 m²
à partir de 140 €
HT/HC/m²/an
Disponibilité : Immédiate

Florine DEVEAUX
Description
BUREAUX A LOUER - RIVES DE MEURTHE
Réf OLBUR25304344
Nouveau sur les Rives de Meurthe :
Bnppre vous propose à la location un lot disponible au rez-de-chaussée avec une belle visibilité et un niveau complet en étage de plus de 1500 m² et un lot au 3e étage de 240 m² environ. Immeuble avec 2 ascenseurs, climatisation réversible, stationnement privatif sous l'immeuble et parking public en face. Le bâtiment est également situé à moins de 5 min à pied d'un arrêt de trolley et à 10 min de la gare.
LOCATION - BUREAUX - 1 871 m² - RIVES DE MEURTHE - NAN(54)
Nous vous proposons à la location plus de 1 870 m² environ de bureaux :
- Au rez-de-chaussée, une surface de 140 m² environ
- Au 2 étage, 6 lots pour une surface totale de 1 500 m² environ, (surfaces disponibles allant de 173 m² à 330 m²)
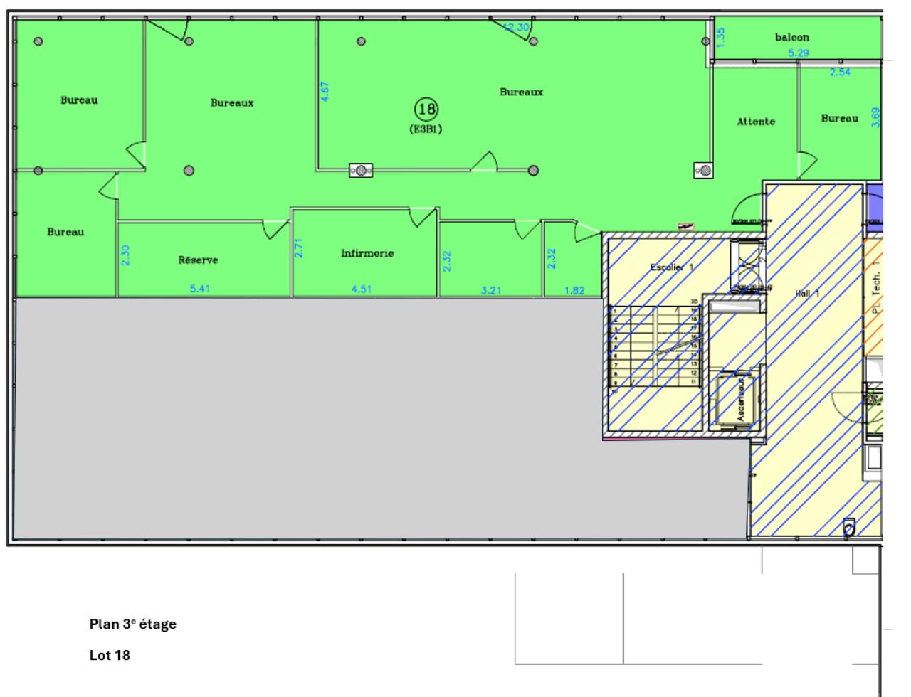
- Au 3e étage, une surface de 238 m² environ
Loyer : 140 HT/HC/m²/an
Charges : 39.30 HT/m²/an
Caractéristiques
- Accès PMR
- Ascenseur : 2
- Climatisation réversible
- Fenêtre double vitrage
- Faux plafond
- Câblage informatique
- Stationnement privatif
Localisation
Le quartier des Rives de Meurthe est un secteur dynamique, en constante évolution qui s'étire sur 5 km le long des rives, du Nord au Sud de Nancy, en plein coeur de la ville de Nancy. Il est a proximité des principaux axes de communication et des services de la ville : arrêt du Trolley bus à quelques pas, gare SNCF à quelques minutes à pied ! Il offre un cadre paysagé unique autour de l'eau, d'espaces publics et infrastructures de qualité : pistes cyclables, base nautique et jardin d'eau.
Le secteur possède également une diversité de services tels que :
- Restaurants : Il Restaurante, La Nonna, Dubble, T'CHIZ, FoodLab, Les Fourmis Rouges,
- Salle de Sport : Basic Fit, CrossFit 2 Rives
- Cinéma : KINEPOLIS
- Commerces : Leclerc, Carrefour
- Écoles supérieures : Groupe Pigier, Groupe Alternance, CCI, École Nationale Supérieure d'Architecture, École Supérieur d'Art et de Design
Accessibilité
- Axes autoroutiers : A31, A33 & A330
- Gare SNCF à 10 min
- Gare Lorraine TGV à 30 min
- Bus :
- Trolley : arrêt Saint-Georges
- Ligne 13, 11, 15, T3
Conseiller en Immobilier d'Entreprise, BNP PARIBAS REAL ESTATE ADVISORY vous accompagne dans votre recherche de bureaux, locaux d'activité et entrepôts logistiques en Meurthe-et-Moselle, à la location et à la vente.
Services & prestations
Aménagements
-
Accès Pers. Mobilité Réduite
-
Hall d'accueil : Collectif 2
-
Sanitaires : Parties communes
Equipements
-
Ascenseurs : 2
-
Climatisation : Réversible
-
Câblage informatique
-
Eclairage Bureaux : Luminaires encastrés Tubes néons
-
Faux plafond : Dal. fibres minéral.
-
Fenêtres : Double vitrage
-
Plinthes techniques périphériques
-
Revêtement mural : Toile de verre peinte
-
Sol bureaux : Moquette
Prestations de service
-
Parking
Type / Etat du bâtiment
-
Etat des locaux : Etat d'usage










