




LE PREMIUM
10-12 Avenue François Mitterrand
57000 Metz
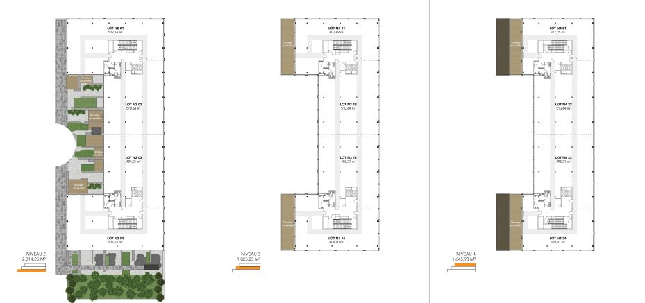
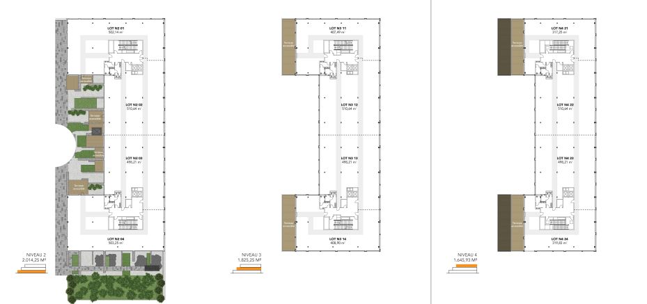
1 418 m²
Divisible dès 409 m²
Loyer sur demande
Disponibilité : Immédiate

Claudia LEFEVRE
Description
LOCATION BUREAUX NEUFS - METZ GARE AMPHITHEATRE (OLBUR 23 14 433)
BNP PARIBAS REAL ESTATE TRANSACTION vous propose de magnifiques bureaux neufs disponibles immédiatement au dessus du Centre commercial MUSE avec vue sur le Centre Pompidou-Metz. Parkings en sous sol.
METZ GARE AMPHITHEATRE - 1 400 M² DE BUREAUX A LOUER
Nous vous proposons un emplacement prime pour des locaux aménagés et cloisonnés avec parkings en sous-sol, au sein du Quartier de l'Amphithéâtre.
Les locaux se situent directement au dessus du Centre Commercial Muse, dans un immeuble très récent. Ils offrent des prestations de grand standing, permettant à vos collaborateurs et à votre clientèle d'évoluer dans un environnement agréable et propice au travail, profitant d'une vue imprenable sur le quartier.
Caractéristiques
- Grandes terrasses
- Salles de réunion
- Agrément ERP autorisant la réception du public
- Climatisation
- Signalétique possible en façade
- Cablage informatique
- Sol Moquette
- Luminaires encastrés
Environnement
Vos futurs locaux seront situés à quelques pas de la gare, au sein du quartier Metz Amphithéâtre, extension moderne du centre-ville de Metz, ce quartier de l'Amphithéâtre accueille des bureaux, commerces, restaurants, loisirs et logements, ce qui en fait un quartier moderne et dynamique où les services sont multiples :
- Le centre commercial Muse avec ses 115 boutiques et restaurants
- Le Centre Pompidou-Metz et le Palais des Congrès Robert Schumann
- Un complexe regroupant cinéma Kinepolis, bowling et restaurants
- Un espace naturel de 20 hectares : le Parc de la Seille
- Un hôtel Campanile, une crèche et des sièges sociaux emblématiques (Caisse d'Epargne Lorraine Champagne Ardenne, Batigère, Covivio)
- le futur Hôtel Starck, monument d'architecture atypique
A quelques pas de la gare et du pôle multimodal, l'immeuble Le Premium bénéfice d'un excellent positionnement permettant à votre clientèle et à vos collaborateurs d'y accéder aisément en train, en voiture ou à vélo.
Accessibilité :
- Centre-ville Cathédrale : 10 min à pied
- Gare Metz Ville-Pôle multimodal et Gare routière : proximité immédiate
- Mettis : lignes A et B (arrêt Pompidou)
- Autoroutes : A31 et A4
- Gare Lorraine TGV : à 25 min en voiture
- Parkings publics : (Gare Centre Pompidou, Muse, Messageries, Amphitheatre)
- Aéroport régional de Metz Nancy Lorraine à 25 min. ~
- Aéroport international de Luxembourg Findel à 50 min ~
Services & prestations
Aménagements
-
Accès Pers. Mobilité Réduite : Ascenseur
-
Aménagement des bureaux : Cloisonnés/Ouverts
-
Complexe Salle de réunion
-
Sanitaires : Parties communes
Equipements
-
Ascenseurs : 4
-
Climatisation : Réversible
-
Câblage informatique
-
Eclairage Bureaux : Luminaires encastrés
-
Faux plafond
-
Plinthes techniques périphériques
-
Production climatisation : Réseau urbain
-
Sol bureaux : Moquette
Prestations de service
-
Capacité de restauration : Restaurants à proximité
-
Parking : Oui, Oui, Oui
Extérieurs
-
Terrasses - jardins
-
Trame de façade : Signalétique possible
Normes, Certifications et Labels
-
Catégorie ERP
Type / Etat du bâtiment
-
Etat de l'immeuble : Neuf
-
Etat des locaux : Très bon état
-
Type d'immeuble : Plateau Sup 1000m










