




125 Avenue de la République
59110 La Madeleine
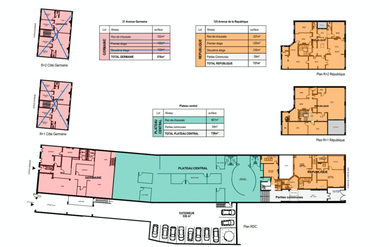
1 714 m²
Divisible dès 267 m²
à partir de 137 €
HT/HC/m²/an
Disponibilité : Immédiate

Annabelle KOZIELSKI
Description
Bureaux disponibles à la location à la Madeleine.
Vous recherchez un emplacement idéal à La Madeleine, proche des transports en commun et du quartier d'Euralille ? Ne cherchez plus ! Cet espace de bureau situé au 125 avenue de la République offre un accès privilégié aux gares de Lille ainsi qu'aux réseaux de transports en commun, garantissant une mobilité aisée dans toute la région.
BNNPRE vous propose à la location cet immeuble indépendant bénéficiant d'un emplacement stratégique, à proximité immédiate du quartier dynamique d'Euralille, 3ème quartier d'affaires de France, offrant ainsi un cadre de travail urbain et dynamique, propice à la productivité !
ACCESSIBILITE :
Sa localisation optimale, à moins de 20 min à pied des Gares de Lille permettra à vos équipes et clients de pouvoir opter pour de multiples options de transport :
Nombreux arrêts de bus qui desservent la zone
Arrêt tramway « Romarin » à 3 min à pied 220 mètres
Arrêt métro « Saint-Maurice Pellevoisin » à 23 min à pied 1,6 km
Station V'Lille « Romarin » à 3 min à pied 220 mètres
Aéroport « Lille-Lesquin » à 12 minutes en voiture 10,8 km
Accès routiers & autoroutiers - VRU, A1, A22, A23, A25, A27
Concernant l'immeuble :
Immeuble de 1930 rénové.
Façade historique.
Places de parking
Climatisé
Douches
Vous souhaitez trouver des espaces de bureaux, un plateau ou un local professionnel dans la métropole lilloise/ Lille ? Nous vous proposons une large gamme d'offres de location et de vente dans le Nord, adaptées aux besoins de votre entreprise. Consultez nos surfaces disponibles et choisissez l'unité de bureaux qui dynamisera votre activité dans le Nord-Pas-de-Calais.
Toutes nos offres sur bnppre.fr/bureau/nord-59/
Services & prestations
Equipements
-
Climatisation
-
Douche










