




LE ROMARIN
20 Allée Vauban
59110 La Madeleine
3 721 m²
Divisible dès 168 m²
280 €
HT/HC/m²/an
Disponibilité : 01/10/2026

Etienne DARTOIS
Description
Nous vous proposons à la location cet immeuble de Bureaux ayant fait l’objet d’une rénovation lourde et complète pour répondre aux nouvelles utilisation bureaux et aux exigences tertiaires ; thermique, phonique, ergonomique, etc..
Une localisation « PRIME » au croisement des Grands boulevards, du quartier d'affaires Euralille et du Centre Ville de Lille ! LE ROMARIN se trouve au cœur d’un quartier mixte offrant une proximité avec des commerces, restaurants, établissements scolaires, crèches, etc...
L'immeuble est implanté à l'entrée des Grands Boulevards et du quartier d'Affaire Euralille et, à proximité des Gares Lille Flandres (TGV et TER) et Lille Europe (TGV Européens et grandes métropoles françaises).
Nous vous proposons ces surfaces de bureaux entièrement refaites à neuf et disponibles à la location.
Organisation de l'immeuble :
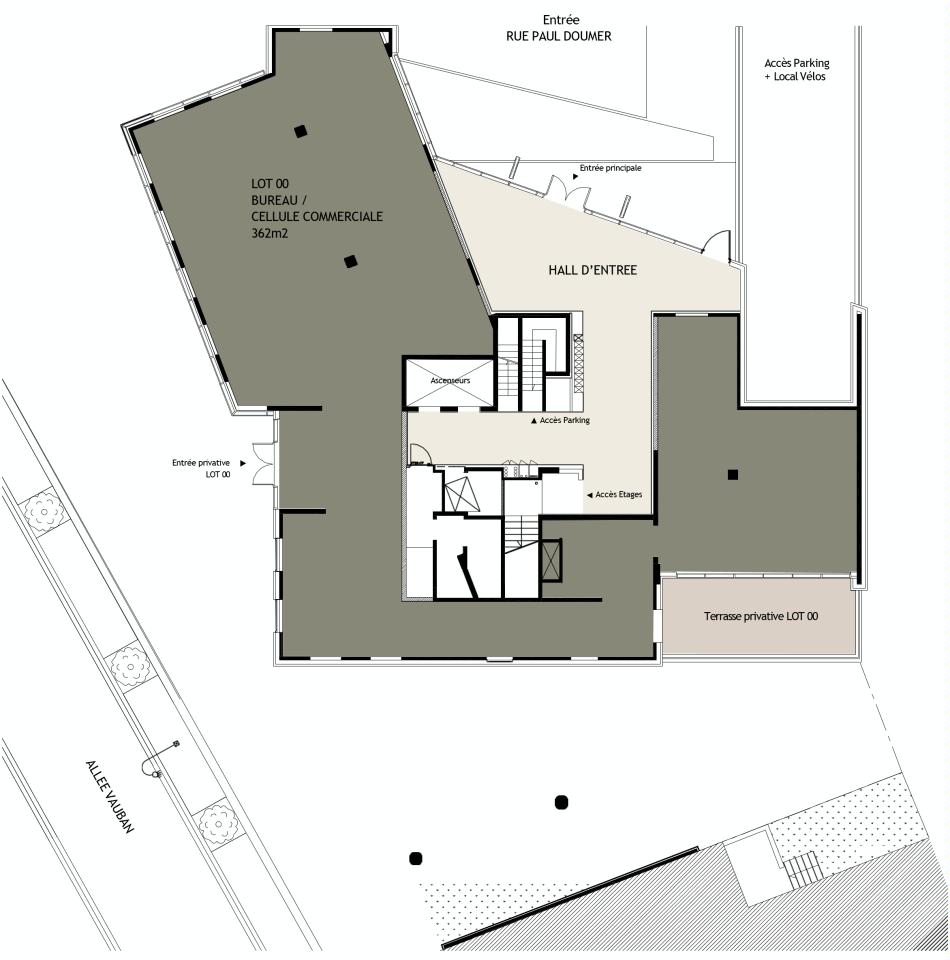
RDC :
Hall d'entrée en double hauteur avec zone d'accueil clientèle
Rez-de-chaussée exploitable en bureaux ou commerce (ERP) de 362 m² avec terrasse privative
Ideal crèche, maison médicale...
Étages :
Plateaux de bureaux divisibles
Chaque lot possède une terrasse loggia ou un balcon
BUREAUX R+1 à R+6 : 3 358 m²
Plateaux de 581 m² divisés en 2 lots communicants de 283 et 298 m²
Rooftop :
Espace de convivialité en rooftop avec cuisine, espace lunch et détente ouverts sur plusieurs terrasses
Salle de sport avec vestiaires (douches + casiers) et terrasse sportive
Parking et services :
Parking en sous-sol avec bornes de recharges pour véhicules électriques (env. 85 places dont 6 équipées IRVE)
Local vélos et trottinettes
Caves privatives
Prestations :
ENTREE :
Hall d'entrée en double hauteur avec zone d'attente clientèle
Casiers colis
Double ascenseur
Haut standing de finition
RDC :
Rez-de-chaussée exploitable en bureaux ou commerce (ERP) de 362 m2 avec terrasse
privative de 30 m2
R+2 au R+6 :
Plateau de bureau de 581 m2 divisés en 2 lots communicants d'environ 284 et 298 m2 variable selon les niveaux,
Chaque lot possède une terrasse loggia ou un balcon
R+7 :
Espace de convivialité en FOOFTOP avec cuisine, espace lunch et détente ouverts sur plusieurs terrasses
Salle de sport avec vestiaires (douches et casiers) et terrasse sportive
Plateaux refaits à neuf :
Dalle moquette
Plafond brut
Luminaires Led
Climatisation réversible
WC privatifs pour chaque plateau et/ou demi-plateau
Tableau électrique posé, installation électrique à la charge des Preneurs
Plancher technique
Capacitaire immeuble : 400 personnes
Accès PMR
Caves privatives
Parkings :
85 places en sous-sol dont 6 IRVE partagées
Local à vélos et trottinettes sécurisé
Accessibilités
Tramway Romarin à 2 min à pied ;
Hub de transports de la Gare Lille Flandres à 4 min à pied ;
Accès routiers et autoroutiers rapides VRU, A1, A22, A23, A25, A27.
Environnement
Au pied du Jardin de l'Europe
À proximité du Jardin des Géants.
Rénovation -> OBJECTIF DECRET TERTIAIRE :
Changement des façades
Isolation du bâtiment par l'extérieur
Remplacement de toutes les fenêtres
Remplacement du système de climatisation et de chauffage
Label BREEAM Very Good à Excellent
Les surfaces fournies sont à titre indicatif et seront ajustées par un géomètre expert à l'issue des travaux.
Toutes nos offres de bureaux sur https://www.bnppre.fr/bureau/nord-59/
Services & prestations
Aménagements
-
Accès Pers. Mobilité Réduite
Equipements
-
Ascenseurs : 2
-
Eclairage Bureaux : LED
-
Faux plafond : Brut
-
Faux plancher : Plancher technique
-
Sol bureaux : Moquette
-
Source chauffage : Climatisation réversible
Normes, Certifications et Labels
-
Catégorie ERP : 5 RDC
Type / Etat du bâtiment
-
Etat de l'immeuble : Restructuré avec PC
-
Etat des locaux : Neuf










