




Location Bureau 1 321 m²
69002 Lyon
1 321 m²
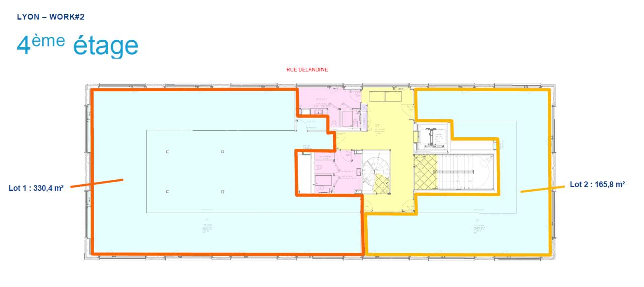
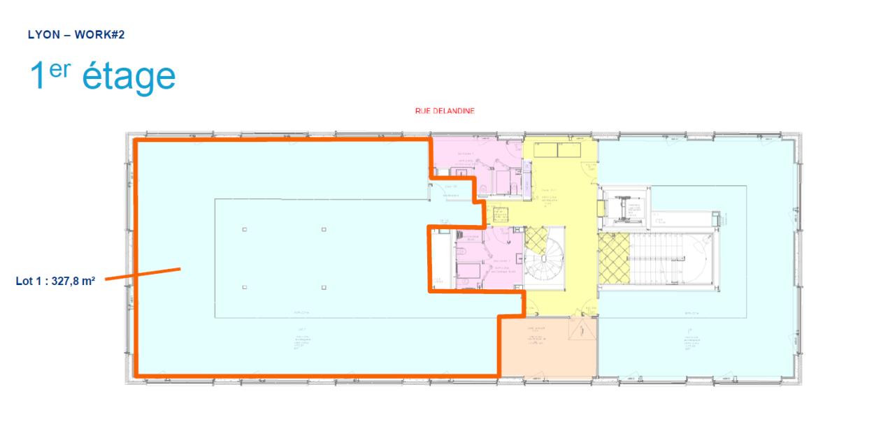
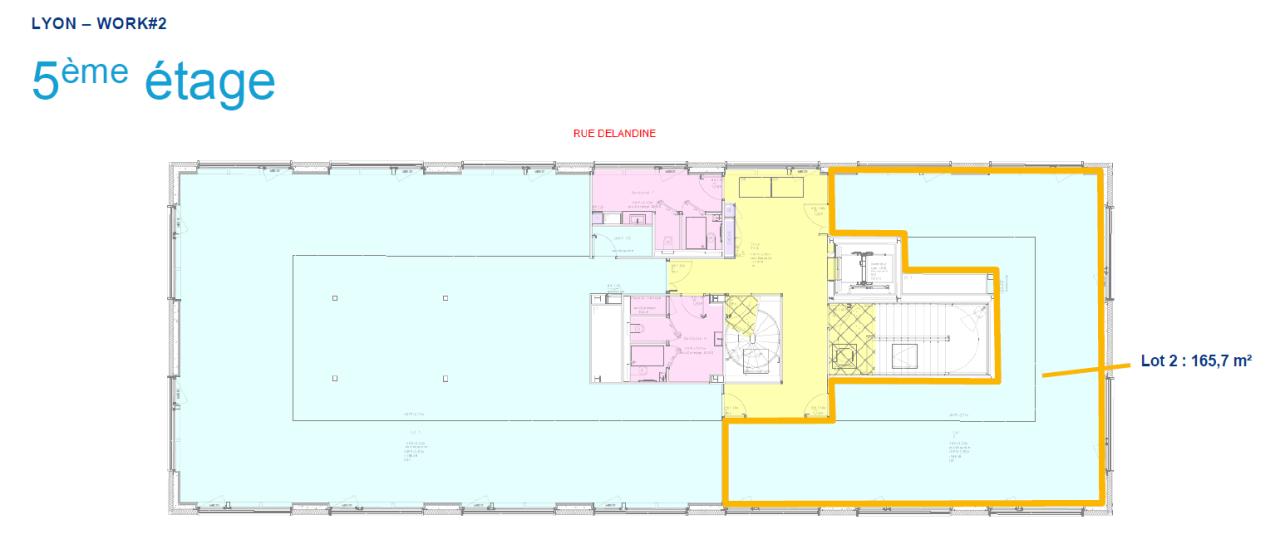
Divisible dès 165 m²
à partir de 250 €
HT/HC/m²/an
Disponibilité : Immédiate

Odine KLEIN
Description
WORK #2
Coeur Confluence - LYON 2ème
Au coeur de la Confluence et au pied du futur pont des Girondins nous vous proposons un immeuble à construire de 1 321 m² disponible à la location. Plusieurs plateaux disponibles selon vos besoins.
L'immeuble Work 2, situé dans le 2 arrondissement de Lyon, propose des bureaux à la location dans un cadre professionnel moderne et fonctionnel. Cet immeuble récent se distingue par la qualité de ses aménagements et son architecture contemporaine, pensée pour offrir un environnement de travail agréable et performant.
Les espaces disponibles sont neufs et modulables, permettant d'adapter facilement les plateaux en fonction des besoins des entreprises, qu'il s'agisse de bureaux individuels, d'open spaces ou de zones collaboratives. Chaque étage bénéficie d'une luminosité naturelle importante, favorisant le bien-être et la productivité des équipes.
L'immeuble dispose de nombreux atouts pratiques : un parking privé pour les collaborateurs et visiteurs, un local à vélos sécurisé, ainsi qu'une douche commune mise à disposition, idéale pour les usagers de modes de transport doux.
Work 2 bénéficie également d'une excellente accessibilité, avec la proximité immédiate des transports en commun, des grands axes routiers et des services du centre-ville lyonnais. Le quartier est dynamique, mêlant bureaux, commerces, et espaces verts, offrant un cadre de travail attractif et équilibré.
L'environnement du bâtiment reflète la nouvelle génération d'immeubles tertiaires lyonnais, combinant confort, performance énergétique et flexibilité d'usage. En choisissant Work 2, les entreprises s'installent dans un lieu à la fois moderne, fonctionnel et résolument tourné vers l'avenir.
Services & prestations
Aménagements
-
Accès Pers. Mobilité Réduite : Ascenseur
Equipements
-
Ascenseurs : 1
-
Climatisation : Par plafonds rayonnants
-
Distribution chauffage : Réversible panneaux rayonnants
-
Eclairage Bureaux : Led
-
Faux plafond : Oui, Oui
-
Sol bureaux : Moquette
-
Type de chauffage : Urbain
Hauteurs
-
Hauteur sous-plafond : 2,60 mètre(s)
Prestations de service
-
Parking
Extérieurs
-
Terrasses - jardins : En coeur d'ilot
Normes, Certifications et Labels
-
Certification : BREEAM
Type / Etat du bâtiment
-
Etat de l'immeuble : Neuf
-
Etat des locaux : Neuf
-
Immeuble indépendant










