




Location Bureau 7 218 m²
69002 Lyon
7 218 m²
Divisible dès 1 142 m²
à partir de 270 €
HT/HC/m²/an
Disponibilité : 30 mois après accord

Valerie DOMBROWSKI
Description
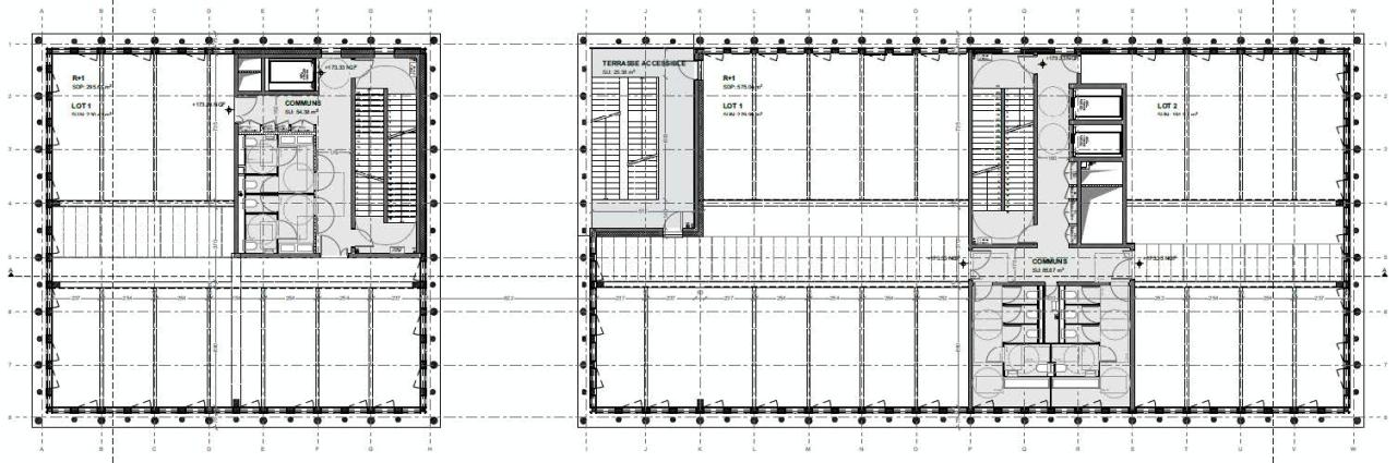
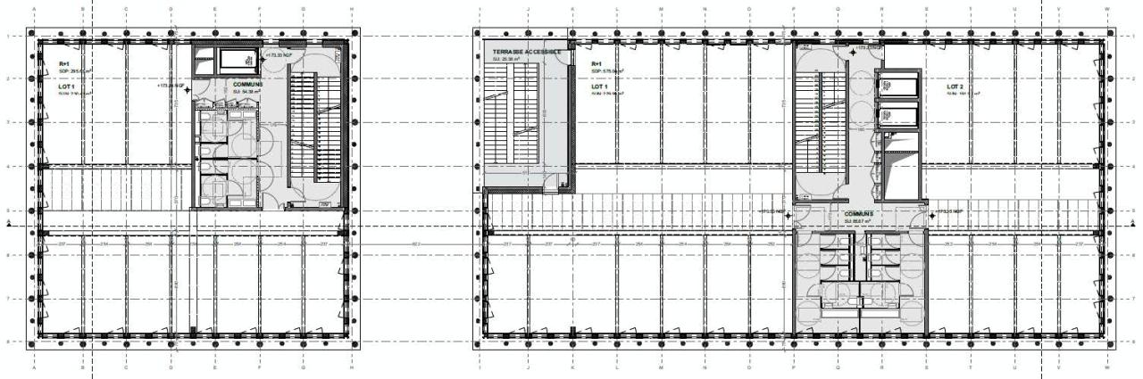
Confluence : Ilôt de trois bâtiments dès 1 142 m²
En bordure du Rhône, un des derniers foncier à aménager dans le quartier de La Confluence. Jouxtant le futur campus de Galliléo, nous vous proposons trois bâtiments indépendants à construire qui s'articuleront autour d’une cour centrale, classés ERP type R avec PC obtenu et purgé.
Vente ou location par bâtiment.
BNP Paribas Real Estate, votre spécialiste en immobilier d'entreprise dans la Métropole Lyonnaise vous propose cette dernière opportunité à construire dans le quartier CONFLUENCE.
Les délais de construction sont d'environ 24 mois après accord.
Ces immeubles de bureaux peuvent être spécifiquement dédiés à de la formation ou de l'enseignement (classement ERP type R), ou plus classiquement à des activités de bureaux.
Construits en minimisant l'impact carbone sur l'environnement, le savoir faire du promoteur en la matière est avéré.
Le confort intérieur lié à de nouvelles technologies en matière de rafraichissement des immeubles les rendent à la fois agréables à vivre mais aussi plus économiques.
L'ensemble immobilier offre une belle opportunité, doté d'un parc arboré pouvant être dédié exclusivement à l'occupant des trois immeubles, et de vues magnifiques sur le Rhône.
Services & prestations
Aménagements
-
Accès Pers. Mobilité Réduite : Ascenseur
-
Effectif théorique : 988 personne(s) Bâtiment B01 et 299 Bâtiment B05
Equipements
-
Ascenseurs
-
Charge au sol Rdc : 350 kg (zones d’enseignement)
-
Climatisation : Air pulsé système de rafraichissement par batteries adiabatiques sur la CTA + brasseurs d’air. Ventilation naturelle nocturne motorisée
-
Distribution chauffage : Dans les zones d’enseignement par panneaux rayonnants 2 tubes à eau chaude- Régulation par lot et par façade
-
Faux plafond : Plenum technique plaques de plâtre en partie centrale uniquement
-
Faux plancher : (Plenum 7cm) avec revêtement textile floqué en dalles
-
Type de chauffage : Urbain
Prestations de service
-
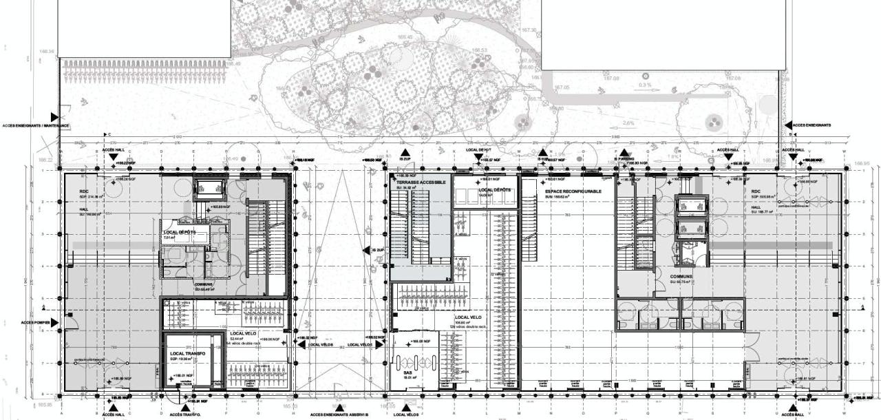
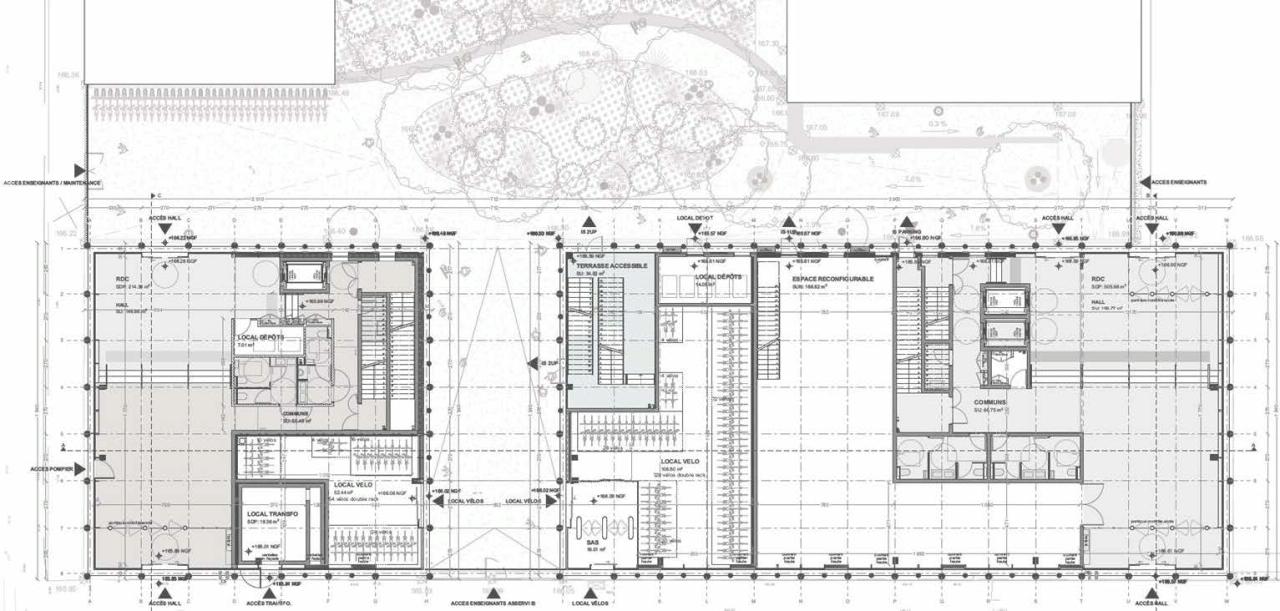
Parking : Local vélos en RDC de chaque immeuble
-
Sécurité : Contrôle d'accès
Extérieurs
-
Linéaire de façade : 2,80 et 5,10m en RDC
-
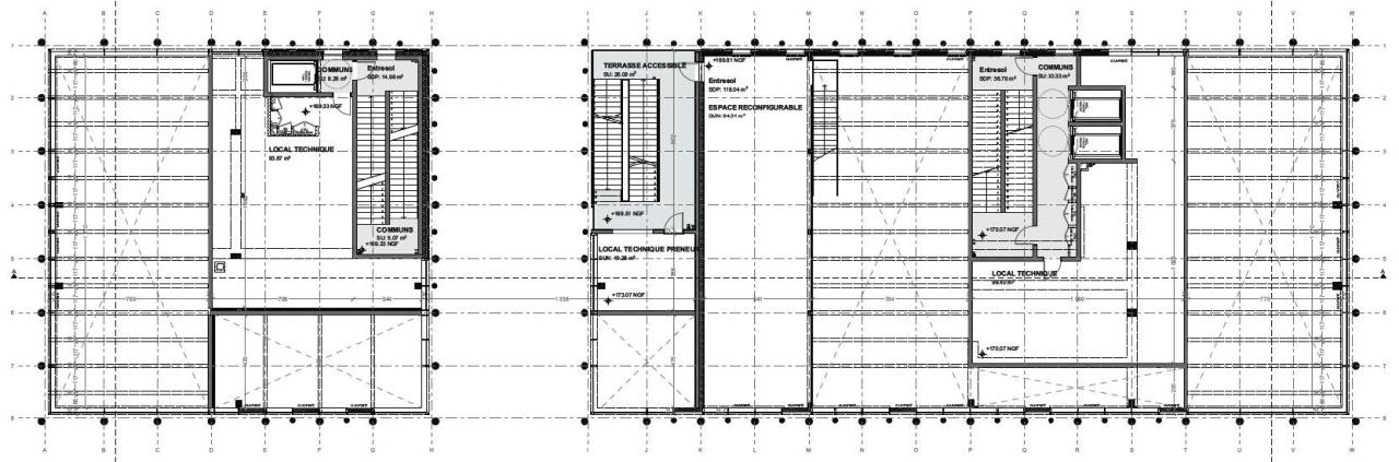
Terrasses - jardins : Grande cour étudiante commune aux Bâtiments B01 et B05. Belles terrasses végétalisées en R+6 avec vues panoramiques sur le Rhône
Normes, Certifications et Labels
-
Catégorie ERP : 2 Bâtiment B01 et 4 bâtiment B05
Type / Etat du bâtiment
-
Etat de l'immeuble : Neuf
-
Type d'immeuble : Indépendant
Informations complémentaires
-
CTA double flux avec récupération d’énergie sur l’air extrait, En RDC, espaces reconfigurables de grande hauteur : lieux de vie, d’échanges, espaces d’enseignement, Hall double hauteur, Oui, Panneaux photovoltaïques : vendus à la SPL Confluence, Plateaux : profondeur 18m sans aucun porteur, offrant une grande flexibilité d’aménagement, Structure : plancher béton, solives bois
-
Occultation par brise-soleil orientables motorisés (en étages)










