




4 RUE DE FONTENELLE
76000 Rouen
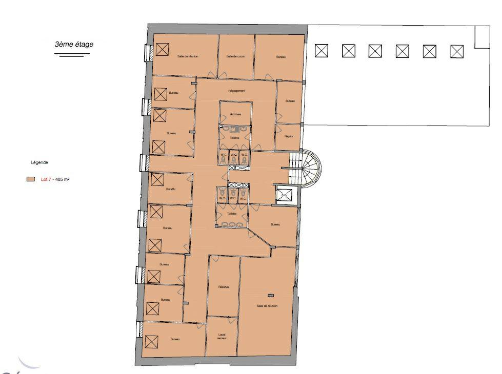
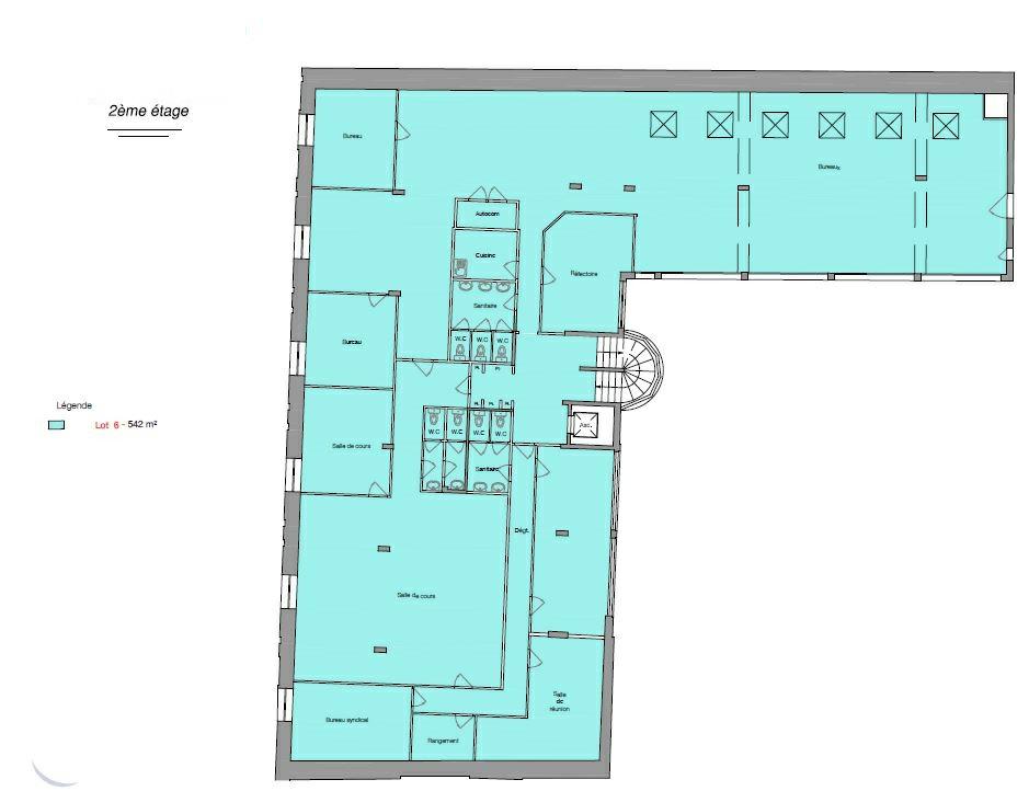
1 295 m²
Divisible dès 64 m²
à partir de 130 €
HT/HC/m²/an
Disponibilité : Immédiate

Maxime LETHUILLIER
Description
Quais Rive droite
ROUEN
Plateaux de bureaux à louer dans immeuble de caractère.
Idéalement situé dans le centre de Rouen rive droite, à proximité des quais et des commodités.
Bureaux sécurisés avec ascenseur.
Parkings en sous-sol.
Plateaux de bureaux à louer dans immeuble de caractère.
Idéalement situé dans le centre de Rouen rive droite, à proximité des quais.
Plusieurs lots ont connu une réfection, et offrent un cadre de travail agréable dans l'hyper centre ville de Rouen.
Parkings en sous-sol.
Services & prestations
Aménagements
-
Aménagement des bureaux : Cloisonnés/Ouverts
-
Sanitaires : Privatif(s)
Equipements
-
Ascenseurs : 1
-
Faux plafond : Dal. fibres minéral.
-
Sol bureaux : Moquette
-
Type de chauffage : Collectif
Type / Etat du bâtiment
-
Etat de l'immeuble : Rénové










