




519 Rue Édouard Delamare Deboutteville
76160 Saint-Martin-du-Vivier
675 m²
Divisible dès 215 m²
à partir de 185 €
HT/HC/m²/an
Disponibilité : Immédiate

Maxime LETHUILLIER
Description
PLAINE DE LA RONCE
SAINT MARTIN DU VIVIER - ISNEAUVILLE
Immeuble de bureaux neuf aux normes RT2020, idéalement situé au pied du nouvel ouvrage d'art traversant la N28.
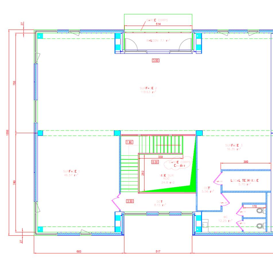
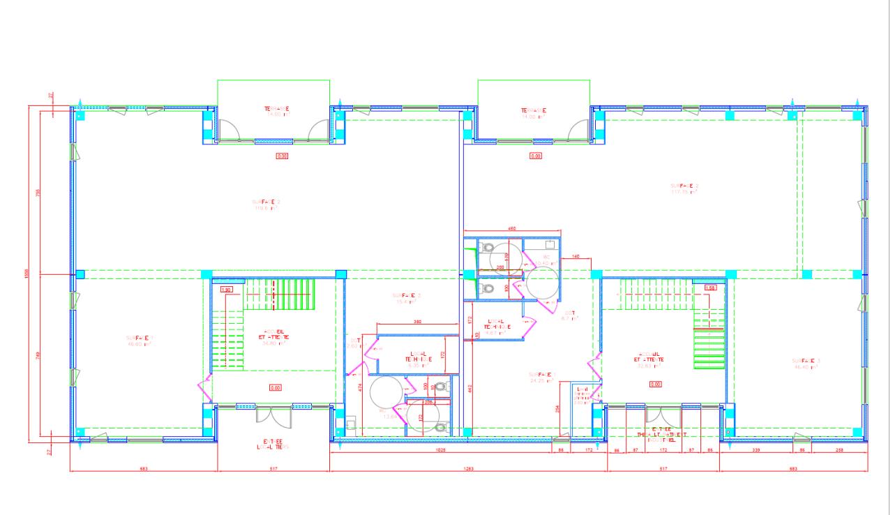
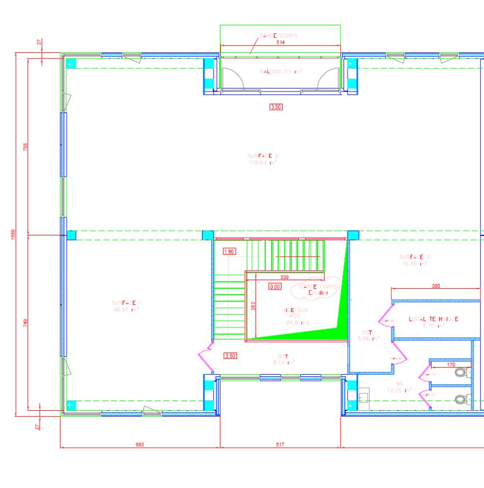
3 plateaux de bureaux disponibles à la location, possibilité de louer un bâtiment complet pour une surface d'environ 460m².
675m² sont disponibles au global.
Cet immeuble à taille humaine élevé sur 2 niveaux justifie d'une prestation qualitative avec terrasses et balcon.
Bâtiment construit en structure béton aux normes RT2020, faible consommation énergétique !
Les plateaux de bureaux sont livrés comme suit :
Plafonds : faux plafonds en dalles 600x600
Sol : revêtement sol souple
Murs : finition béton ou plaques de plâtre selon les lots.
Menuiseries en aluminium toute hauteur pour offre une belle luminosité.
Eclairage LED encastré en faux-plafonds
12 prises de courant 2x10/16A+T réparties sur chaque plateau
Climatisation réversible compris 6 unités intérieures encastrées en plafonds par plateau.
Parties communes :
Hall d’entrée avec carrelage au sol
Escalier d’accès aux étages en béton
Eclairage par suspensions et plafonniers LED
En extérieur : 8 places de parking par plateau de bureaux finition enrobés ou evergreen selon emplacement.
Fourreaux mis en place pour futur équipement bornes électriques à la charge du locataire
Portail manoeuvre électrique sur rue
Eclairage du parking sur horloge
Eclairage sur hall d’entrée et façades du bâtiment sur horloge
Immédiatement disponibles, nous contacter pour toute visite.
Services & prestations
Aménagements
-
Hall d'accueil : Collectif
Equipements
-
Climatisation : Réversible
-
Eclairage Bureaux : Luminaires encastrés










