




LE FRESNEL
Rue Augustin Fresnel
76230 Bois-Guillaume
3 429 m²
Divisible dès 261 m²
à partir de 704 700 €
HT/HD
Disponibilité : 20 mois après accord

Maxime LETHUILLIER
Description
PLAINE DE LA RONCE
BOIS GUILLAUME / ISNEAUVILLE
L'une des dernières opportunités d'implantation au cœur de la dynamique et attractive ZAC de la plaine de la ronce, un immeuble de standing offrant une prestation haut de gamme avec terrasses privatives, parking en sous-sol, aux normes RE2020.
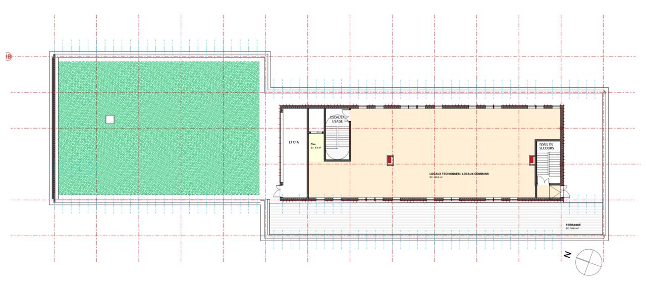
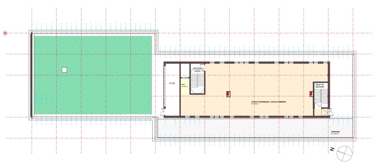
L'ensemble immobilier neuf d'environ 3500m² élevé en R+2 + attique et sous-sol complet, sera érigé sur une parcelle de 3200m² avec parking extérieur et sous-sol, dans une zone d'ores et déjà établie, facile d'accès, au pied de tous les services.
Restauration, commerces de proximité, hôtel, jardinerie, coworking, l'emplacement profite d'un environnement dynamique adapté pour le bien être des salariés de la zone.
Le bâtiment de bureaux propose une prestation paysagée pouvant évoluer et s'adapter selon les besoins des clients : Revêtement de sol moquette, faux plafond réalisé avec luminaires Led encastrées, courant fort réalise, système de chaud/froid réversible par pompe à chaleur. Les plateaux sont livrés en open space, avec la possibilité de proposer un aménagement sur mesure (surcoût à prévoir). Des sanitaires H&F séparés et PMR seront disponibles à chaque étage. les niveaux seront desservis par un ascenseur.
Réalisé avec des matériaux de qualité, le bien justifiera des nouvelles normes en termes de performance énergétique : RE2020, ce afin de garantir un confort de travail aux salariés, tout en garantissant de réelles économies d'énergie.
A l'extérieur, les utilisateurs auront la jouissance de 50 places de stationnement en extérieur avec fourreaux électriques pour la mise en place de bornes de recharge, ainsi que 48 places de stationnement en sous-sol. Des places de stationnement libres seront également disponibles en façades de l'immeuble, le long de la rue Augustin Fresnel.
Nous consulter pour toute demande.
Services & prestations
Aménagements
-
Aménagement des bureaux : Cloisonnés/Ouverts Plateaux livrés paysagés
Equipements
-
Ascenseurs










