




17 Rue de la Gare
21260 Selongey
6 620 m²
30 €
HT/HC/m²/an
Disponibilité : Immédiate

Edouard CHADAN
Description
DIJON NORD
SELONGEY
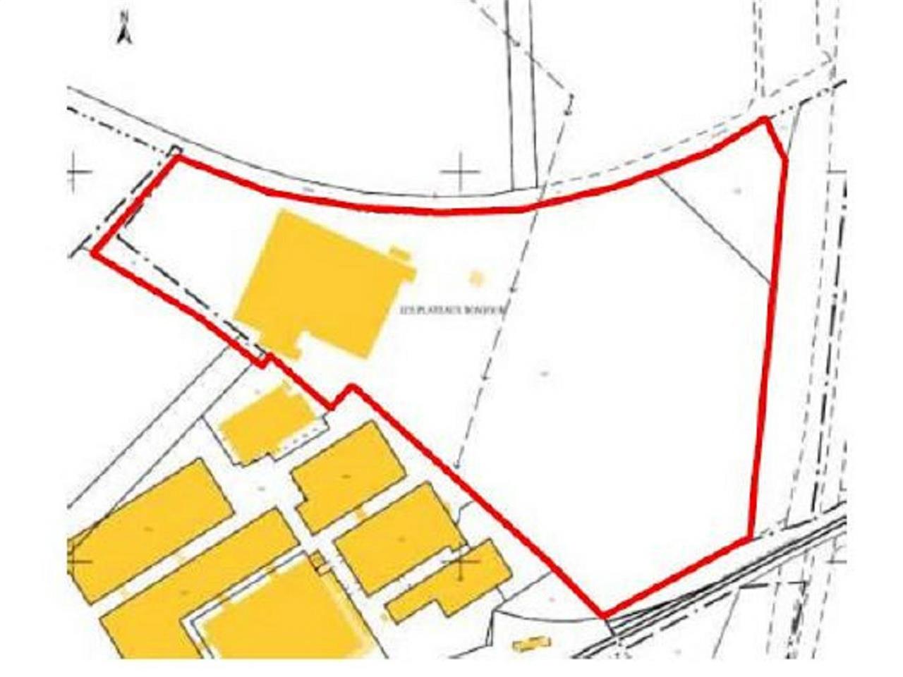
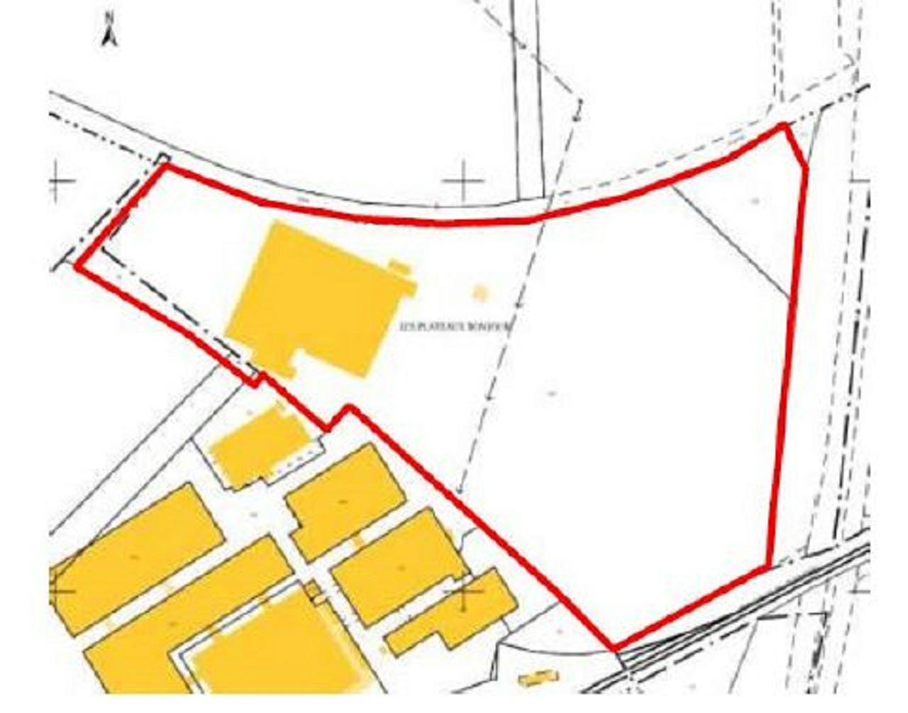
Ensemble immobilier d'une surface totale de 6.620 m² environ comprenant bureaux, locaux sociaux et ateliers/stockages, édifié sur un terrain de 68.841 m² environ.
Dans un ensemble immobilier indépendant situé sur la ommune de Selongey, au nord de Dijon, 6.620 m² environ de locaux d'activité à louer.
Ces locaux comprennent des bureaux, des locaux sociaux et des ateliers / stockages.
Les bureaux sont cloisonnés ; les locaux sociaux comprennent des vestiaires et douches.
La partie ateliers / stockages a une hauteur libre de 5,40 mètres avec des murs en béton apparent , le sol est en béton ciment brut.
Il est accessible à tous types de véhicules et comprend une aire de manoeuvre
Cet ensemble immobilier se situe à 8 kilomètres de l'autoroute A31 et à proximité de la Gare SNCF de SELONGEY.
Services & prestations
Hauteurs
-
Hauteur libre : 5,40 mètre(s)
Accès véhicules
-
Accessibilité type véhicules : Tous porteurs
Equipements
-
Eclairage Bureaux : Luminaires encastrés
-
Eclairage intérieur : Panneaux translucides
-
Faux plafond : Dal. fibres minéral.
-
Revêtement mural : Fibre de verre peinte
-
Sol bureaux : Dls.thermoplastiques
-
Sols du bâtiment : Béton Ciment brut
Type / Etat du bâtiment
-
Etat de l'immeuble : Etat d'usage
-
Etat des locaux : Etat d'usage
Structure du bâtiment
-
Couverture : Bac acier
-
Murs : Bardage double peau
Aménagements
-
Bureaux cloisonnés
-
Locaux sociaux : Douches / Vestiaires
-
Sanitaires
Extérieurs
-
Aire de manoeuvre
Informations complémentaires
-
Porte sectionnelle rideau
-
Transformateur










