




Location Local d'activité 4 356 m²
33185 Le Haillan
4 356 m²
Divisible dès 2 018 m²
à partir de 110 €
HT/HC/m²/an
Disponibilité : 01/12/2026

Deborah DORIGO
Description
LE HAILLAN - A VENDRE OU A LOUER ENTREPOT - ZA DES 5 CHEMINS
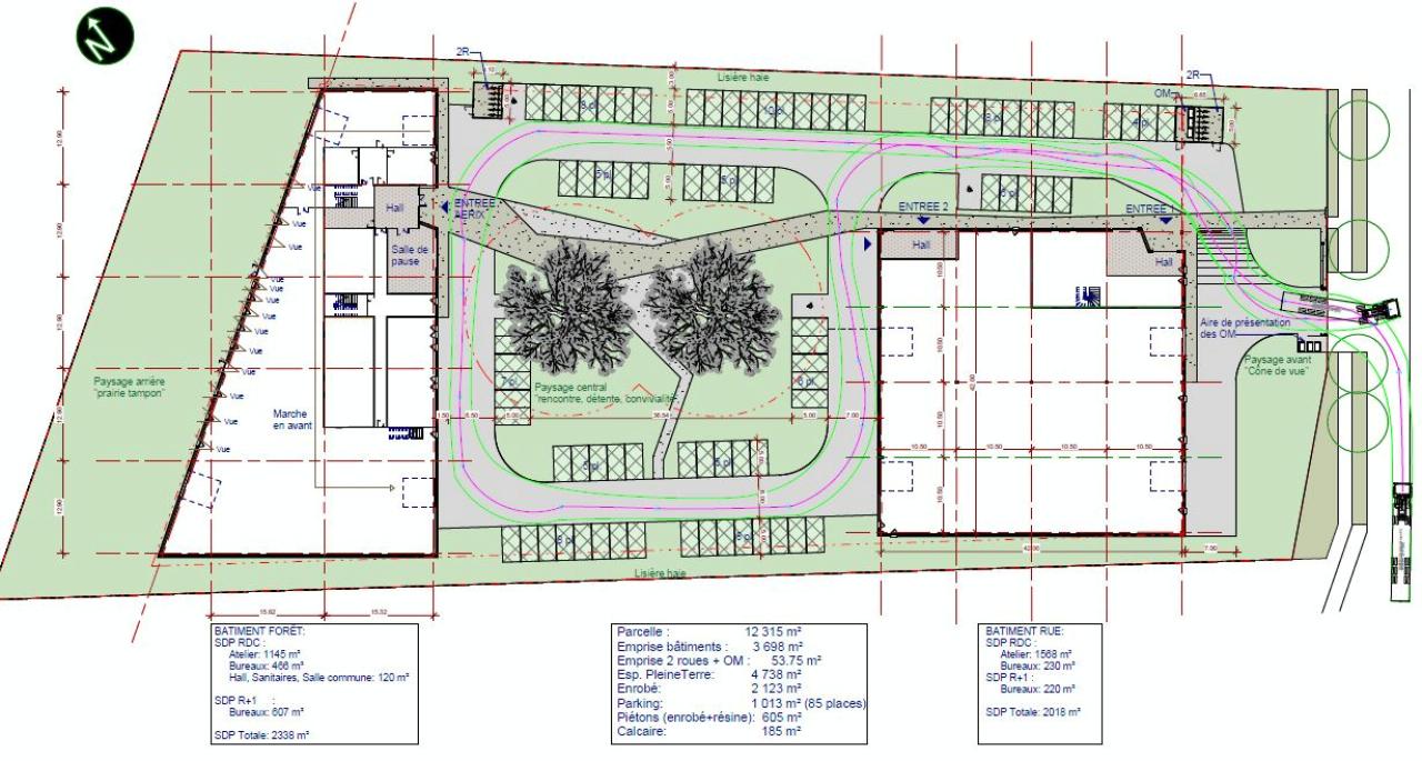
Sur une parcelle de 12 000 m², possibilité de clé en main pour un bâtiment de 2 338 m² et un bâtiment de 2 018 m² pour un total de 85 stationnements.
Le Haillan Sud, rocade sortie 9, à proximité de Merignac. BNP PARIBAS REAL ESTATE Advisory France vous propose 2 entrepôts de 2 338 m² et 2 017 m² à louer ou à vendre.
BATIMENT 2 338 m²:
SDP RDC :
- Atelier: 1145 m²
- Bureaux: 466 m²
Hall, Sanitaires, Salle commune: 120 m²
SDP R+1 :
- Bureaux: 607 m²
BATIMENT 2018m² :
SDP RDC :
- Atelier: 1568 m²
- Bureaux: 230 m²
SDP R+1 :
- Bureaux: 220 m²
Caractéristiques :
Hauteur de 7 à 12 mètres
Panneaux photovoltaïques en toiture










