




Location Local d'activité 969 m²
34740 Vendargues
969 m²
Divisible dès 281 m²
à partir de 101 €
HT/HC/m²/an
Disponibilité : Immédiate

Rodolphe CHEVALLIER
Description
MONTPELLIER EST - VENDARGUES - LOCAUX D'ACTIVITE À LOUER - VEELLAGE
Nous vous proposons ces 3 locaux d'activité à louer au sein du village d'entreprises de Vendargues - commune à l'Est de Montpellier
Découvrez nos opportunités de location à Vendargues, avec des locaux d'activités, idéaux pour une entreprise en quête de flexibilité et d'accessibilité. Nous proposons un ensemble de lots adaptés à vos besoins professionnels, dans une zone stratégique, à proximité immédiate des grands axes de transport.
Détails des prestations :
Lot C3 Mby1 - Disponibilité immédiate :
Surface totale : 281 m²
230 m² au sol + 75 m² en mezzanine
Hauteur sous plafond (HSP) : 6,50 m
HSP sous mezzanine : 2,80 m
Porte sectionnelle motorisée : 3,8 x 3 m
Parking en foisonnement
Typés laboratoire, reprise des aménagements possible.
Travaux de curage commandés par le bailleur. Réception de la cellule curée fin avril.
Lot C1 Mby1 - Disponibilité Mai 2025 :
Surface totale : 315 m²
232 m² au sol + 78 m² en mezzanine
Hauteur sous plafond (HSP) : 6,50 m
HSP sous mezzanine : 3,85 m
Porte sectionnelle motorisée : 3,8 x 3 m
Parking en foisonnement
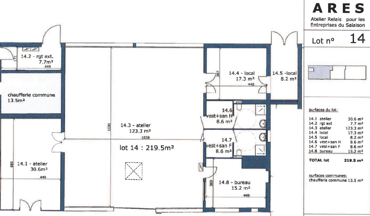
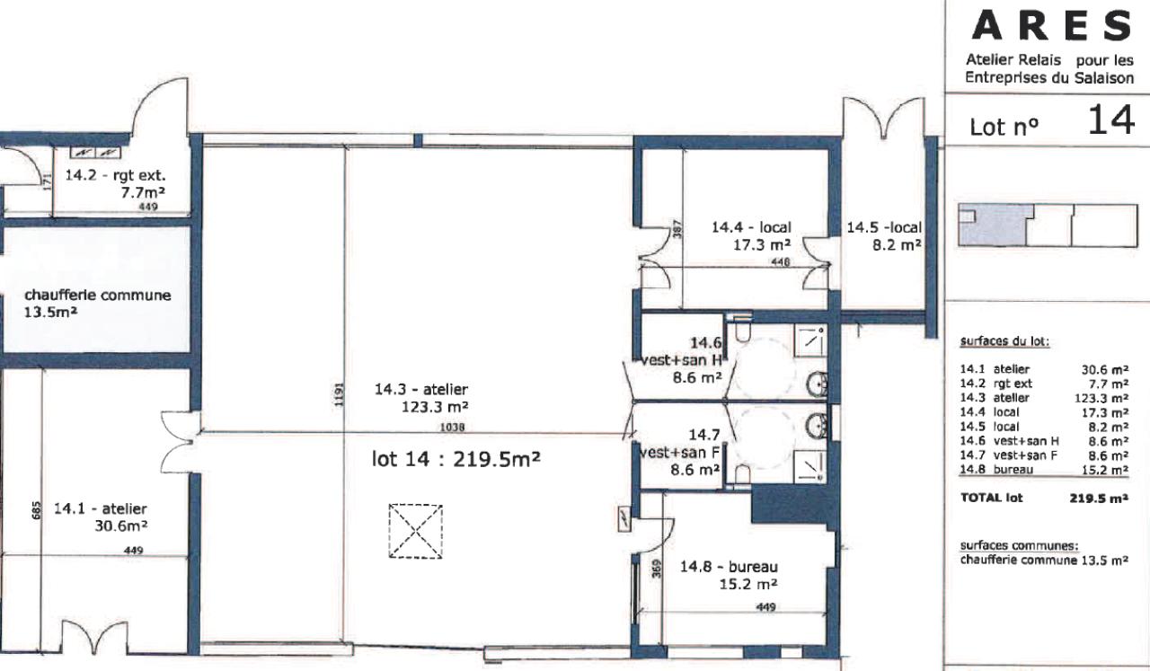
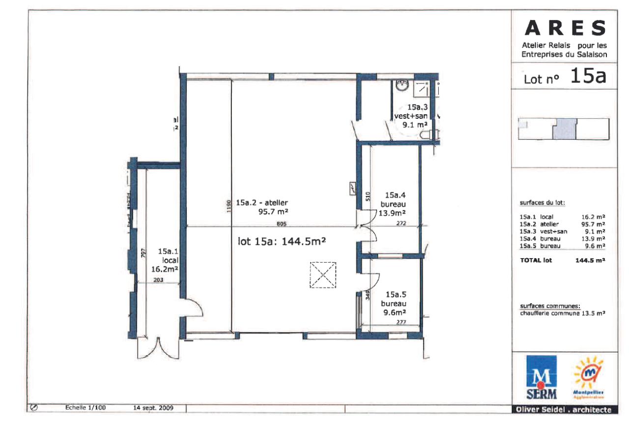
Lot 14/15A - Disponibilité Février 2026 :
Surface totale : 373 m²
339 m² au sol d'activité + 25 m² de bureaux
Hauteur sous plafond (HSP) : 6,50 m
Porte sectionnelle motorisée : 3,8 x 3 m
Parking en foisonnement
Travaux à prévoir. Possibilité de division des lots et de conservation des mezzanines.
Accès privilégié :
Route : Proche de la RN113
Autoroute : A9 / A709, sortie 28 à 6 minutes
Aéroport : Montpellier Méditerranée à 16 minutes
Gare : Baillargues (8 minutes) et TGV Montpellier Sud (18 minutes)
Services & prestations
Prestations de service
-
Parking : En foisonnement
Aménagements
-
Mezzanine
-
Sanitaires
Informations complémentaires
-
Lot C1 - HSP : 6,65 m HSP sous mezzanine : 3,85 m
-
Lot 8B - Hauteur sous plafond : 4,50m
-
Lot C3 - HSP : 6,50 m HSP sous mezzanine : 2,80 m Porte sectionnelle motorisée : 3,8 x 3m










