
Location Local d'activité 600 m²
37200 Tours
600 m²
Divisible dès 300 m²
à partir de 60 €
HT/HC/m²/an
Disponibilité : 8 mois après accord

Richard JANY
Description
A Louer - Local d'activité - Tours Sud
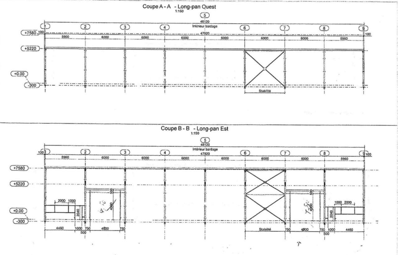
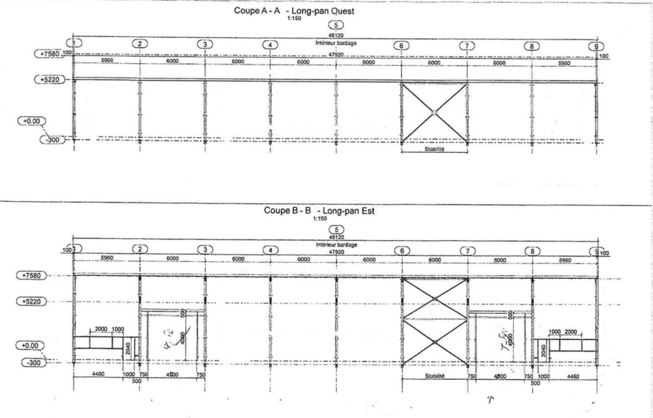
Situé dans un environnement dynamique et facilement accessible, ce local d'activité développe une surface d'environ 600 m² à louer et offre une grande flexibilité d'exploitation. Il est possible de diviser l'ensemble en deux cellules indépendantes d'environ 300 m² chacune, selon les besoins du futur preneur.
Le bien est proposé brut, laissant une totale liberté d'aménagement afin de concevoir un espace parfaitement adapté à votre activité (bureaux, stockage, show-room, etc.). Cette modularité en fait une opportunité idéale pour une entreprise souhaitant un site sur mesure.
Il s'agit d'un prix d'appel, qui sera ajusté en fonction des travaux, aménagements et prestations demandés par le preneur.
Disponibilité prévisionnelle : 6 à 8 mois après accord.
Ce projet représente une excellente opportunité d'implantation dans un secteur recherché du sud de Tours.
Services & prestations
Type / Etat du bâtiment
-
Etat des locaux : Brut de béton
Extérieurs
-
Terrain constructible










