




1 Rue Mendès France
54425 Pulnoy
2 187 m²
40 €
HT/HC/m²/an
Disponibilité : Immédiate

Vincent BLASZCZAK
Description
A LOUER
PULNOY - réf OLACT2529413
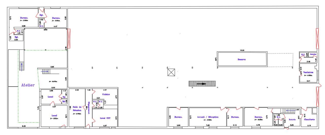
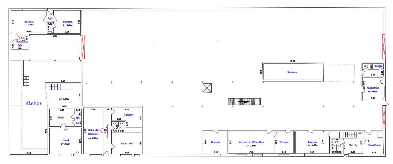
A louer, sur un foncier de 5700 m² environ, un ensemble immobilier de 2 187 m² équipé d'un local d'activité / entrepôt de 1 468 m² et d'un bâtiment tertiaire de plus de 700 m² de bureaux + 43 emplacements de stationnement privatifs situé sur la ZAC PORTE VERTE à PULNOY.
L'entrepôt est équipé d'un pont roulant 5 tonnes.
Disponible immédiatement
Toiture de l'entrepôt intégralement rénovée en 2019.
LOCAUX D'ACTIVITE - 2187 m²- A LOUER - ZAC DE LA PORTE VERTE - PULNOY (54)
Caractéristiques
- Bureaux climatisés
- Aire(s) de livraison
- Eclairage(s) Bureau(x) : Luminaire(s) encastré(s)
- Aménagement(s) de(s) bureau(x) : Cloisonné(s)/Ouvert(s)
- Pont roulant 4 tonnes
- Aire(s) de stockage extérieure
- Charpente(s) : Métallique(s)
- Accessibilité type(s) véhicule(s) : Tous porteurs
Accessibilité
- Axes routiers : A31 & A33
- Gare SNCF à 13 min
- Gare Lorraine TGV à 30 min
- Transports en commun :
- Lignes 13, 22, 15
- Bus T3 & A
Conseiller en Immobilier d'Entreprise, BNP PARIBAS REAL ESTATE TRANSACTION vous accompagne dans votre recherche de bureaux, locaux d'activité et entrepôts logistiques en Meurthe-et-Moselle, à la location et à la vente.
Services & prestations
Accès véhicules
-
Accessibilité type véhicules : Tous porteurs
Equipements
-
Eclairage Bureaux : Luminaires encastrés
Structure du bâtiment
-
Charpente : Métallique
Aménagements
-
Aménagement des bureaux : Cloisonnés/Ouverts
Extérieurs
-
Aire de livraison
-
Aire de stockage extérieure
Informations complémentaires
-
Bureaux climatisés, Pont roulant 4 tonnes










