




Location Local d'activité 980 m²
77340 Pontault-Combault
980 m²
111 €
HT/HC/m²/an
Disponibilité : Immédiate

Baptiste QUILGARS
Description
PONTAULT-COMBAULT
A Louer
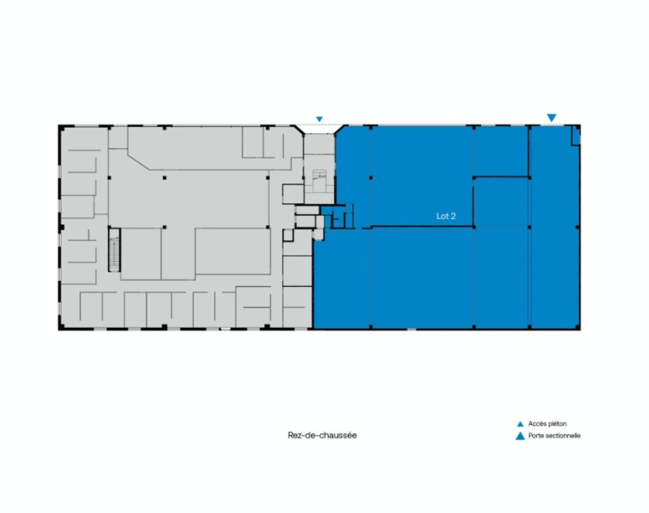
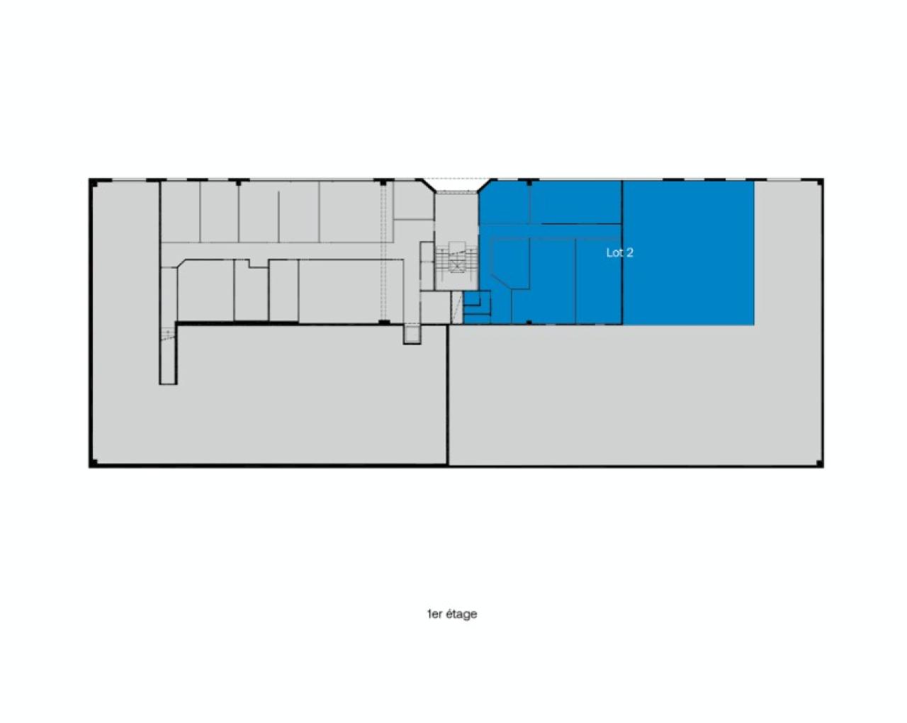
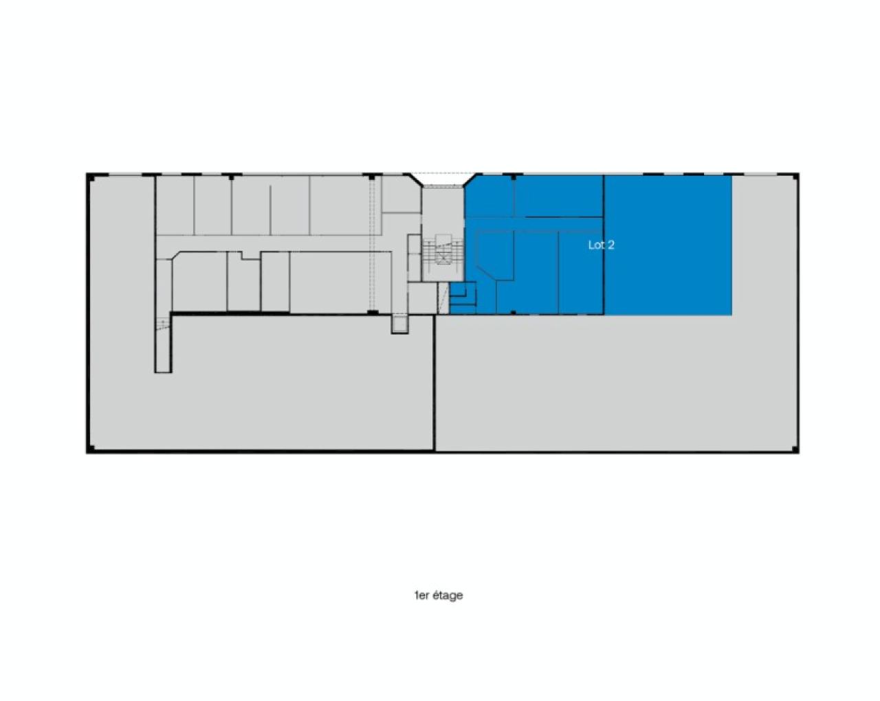
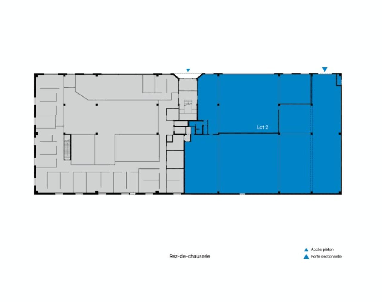
BNP PARIBAS REAL ESTATE vous propose, une cellule d'activité avec bureaux d'accompagnement, disponible à la Location, au sein d'un site clos et sécurisé avec un portail électrique. Le bien situé à Pontault-Combault, dispose d’une porte sectionnelle et offre une hauteur libre de 6 mètres.
BNP PARIBAS REAL ESTATE vous propose, à la location, une cellule d'activité avec bureaux d'accompagnement d’une surface totale de 980 m². Le bâtiment est situé à PONTAULT-COMBAULT (77), à proximité des axes routiers N104 - A4.
Disponibilité : Juillet 2025
Caractéristiques techniques
• Surface activité : 798 m²
• Surface bureaux : 182 m²
• Hauteur libre / sous-plafond : 6 mètres
• Porte de plain-pied : 1
• Accessibilité types véhicules : Tous porteurs
• Parking extérieur : 20 places
Accessibilité
• Accès routiers : N104 - A4
• Gare de Emerainville-Pontault Combault (RER E)
• Gare de Lognes (RER A)
Pour toute information complémentaire, contactez-nous.
Services & prestations
Hauteurs
-
Hauteur libre : 6,00 mètre(s)
Accès véhicules
-
Accessibilité type véhicules : Tous porteurs
Equipements
-
Eclairage intérieur : LED
-
Eclairage naturel : Skydomes
-
Fenêtres
-
Porte d'accès plain-pied : 1
Prestations de service
-
Parking : 20 Places
-
Sécurité : Portail électrique
Aménagements
-
Sanitaires










