




104 Rue de Hochfelden
67200 Strasbourg
80 m²
Divisible dès 39 m²
à partir de 93 500 €
HT/HD
Disponibilité : immédiate

Nalan KOLAT
Description
STRASBOURG - BUREAUX A VENDRE- HELIOCENTRE
REF. OVBUR2426497
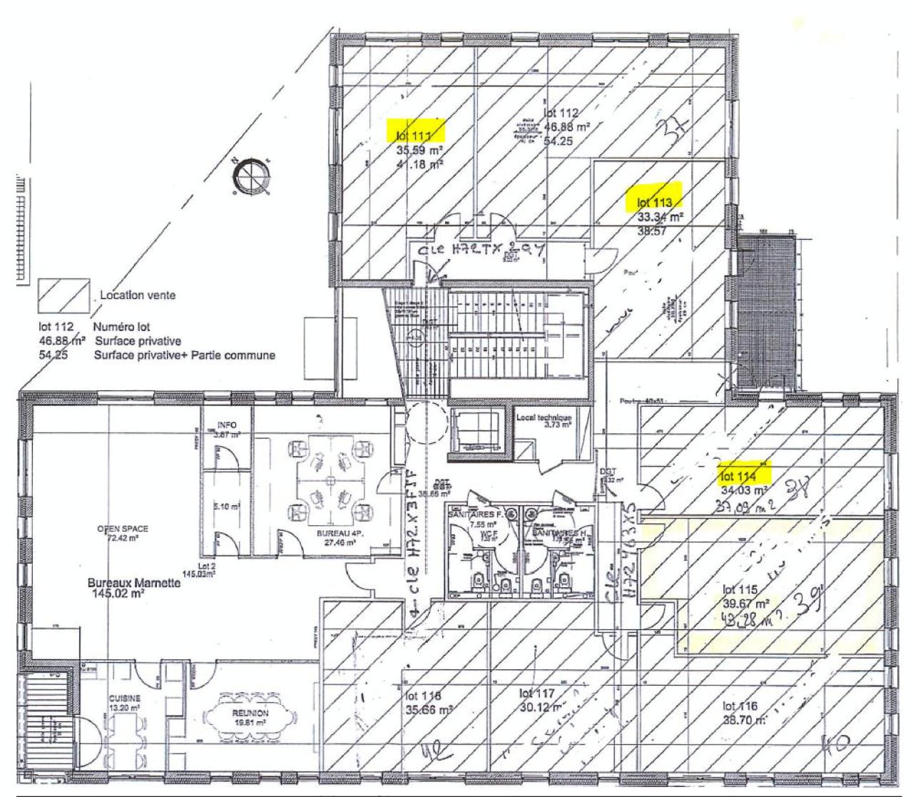
A VENDRE : plusieurs lots de bureaux à partir de 39 m² environ, situés au 1er étage d'un bâtiment fibré et à faible consommation énergétique. Aménagés en un grand open-space lumineux/lot, plusieurs lots peuvent être achetés pour créer un plus grand lot. L'immeuble est sécurisé par Visiophone, les bureaux sont accessibles par un ascenseur aux normes PMR. Balcon selon les lots. En option, de places de stationnement en sous-sol. A proximité immédiate d'arrêt Bus BHNS, qui permet un accès direct à la Gare TGV de Strasbourg. Proche d'accès autoroute. Disponibilité immédiate à la vente.
Le bâtiment à faible consommation d'énergie est situés à l'ouest d'Eurométropole de STRASBOURG, sur un axe principal, bénéficiant d'une belle visibilité. L'immeuble en R+2 est équipé d'un ascenseur aux normes PMR.
Divers commerces (boulangerie, IKEA, Leclerc Drive, Marché gare..), restaurants et services (médecins, SOS médecins, assureurs....) se trouvent à proximité.
L'accessibilité est idéale:
en voiture, grâce à la proximité de l'autoroute A35,
en BUS, l'arrêt RIETH est situés à quelques pas de l'Immeuble avec l'arrêt du BHNS (Bus à haut niveau de Service ) situés à 2 minutes à pied, vous reliant directement à la GARE TGV de STRASBOURG
des pistes cyclables aménagées passantes devant l'immeuble
La GARE TGV de Strasbourg est située à 5 mn seulement.
Outre les accès, ce bien dispose de places de parking en sous-sol, en option et en sus. Quartier ZFU selon éligibilités. DPE en cours de réalisation.
Les informations sur les risques auxquels ce bien est exposé sont disponibles sur le site Géorisques : www. georisques.gouv.fr
Notre offre vous intéresse, consultez BNP PRE pour planifier votre VISITE!
Services & prestations
Aménagements
-
Accueil : Espace d'attente
-
Accès Pers. Mobilité Réduite : Ascenseur
-
Aménagement des bureaux : Espaces Ouverts
-
Hall d'accueil : Collectif
-
Sanitaires : Parties communes
Equipements
-
Climatisation : Réversible
-
Câblage informatique
-
Distribution climatisation : Ventilo convecteur en plafonnier
-
Eclairage Bureaux : Luminaires encastrés
-
Faux plafond : Dal. fibres minéral.
-
Fenêtres : Double vitrage avec stores extérieurs électriques
-
Plinthes techniques périphériques : RJ45
-
Sol bureaux : Moquette
-
Source chauffage : Electrique
Prestations de service
-
Parking
-
Sécurité : Contrôle d'accès ouverture porte principale par interphone
Type / Etat du bâtiment
-
Etat de l'immeuble : Etat d'usage
-
Etat des locaux : Etat d'usage
-
IGH / Code du travail : Code du travail










