




Vente Bureau 148 m²
34740 Vendargues
148 m²
Divisible dès 47 m²
à partir de 126 900 €
HT/HD
Disponibilité : Nous consulter

Rodolphe CHEVALLIER
Description
MONTPELLIER EST - VENDARGUES - LAB & CO
À vendre, immeuble de locaux d’activités et de bureaux. Aménagement à la demande du preneur.
Espaces de repos, terrasses, point chaud pour déjeuner, tout le confort pour une vie de bureau dynamique tout au long de la journée…
Parking intérieur à l'unité en sus. Desservi par un arrêt en pied d’immeuble du futur BusTram.
À VENDRE BUREAUX - MONTPELLIER EST - VENDARGUES
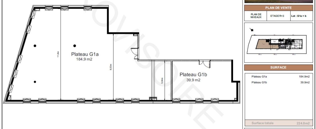
À vendre, au sein de l'immeuble indépendant LAB & CO, deux lots de bureaux disponibles en R+3, de 47 m² et 100 m².
Des places de stationnement en sous-sol viennent compléter l'offre pour ses futurs utilisateurs.
Les bureaux proposent les prestations suivantes : climatisation réversible, ascenseur, aménagement en open space, escalier central tout hauteur, couleur de la façade du bâtiment au choix du preneur.
Les points forts de cette offre sont la grande hauteur sous plafond des lieux, accompagné d'une ambiance industrielle rare. Des vidéophones, caméras seront installés dans chaque lot pour plus de sécurité.
À noter que tous les aménagements intérieurs sont au choix du preneur.
Localisation idéale, proche des axes routiers principaux.
Disponibilité DECEMBRE 2025
Vous avez besoin de bureaux sur la commune de Vendargues ? N'hésitez pas à nous contacter pour obtenir plus de renseignements !
ACCESSIBILITÉS :
Bus n°21, 27, 29, 31 et 46
Futur BusTram
RN 113 à proximité immédiate
A9/A709 à 8 minutes
Parking public à proximité
Gare Saint Roch à 30 minutes
Services & prestations
Aménagements
-
Aménagement des bureaux : Espaces Ouverts
Equipements
-
Ascenseurs : 1
-
Climatisation : Réversible
-
Faux plafond : Dal. fibres minéral.
-
Sol bureaux : Au choix de l'utilisateur
-
Source chauffage : Climatisation réversible
Prestations de service
-
Parking
Type / Etat du bâtiment
-
Etat de l'immeuble : Neuf
-
Etat des locaux : Neuf
-
Immeuble indépendant : Clé en main










