




Vente Bureau 2 068 m²
69800 Saint-Priest
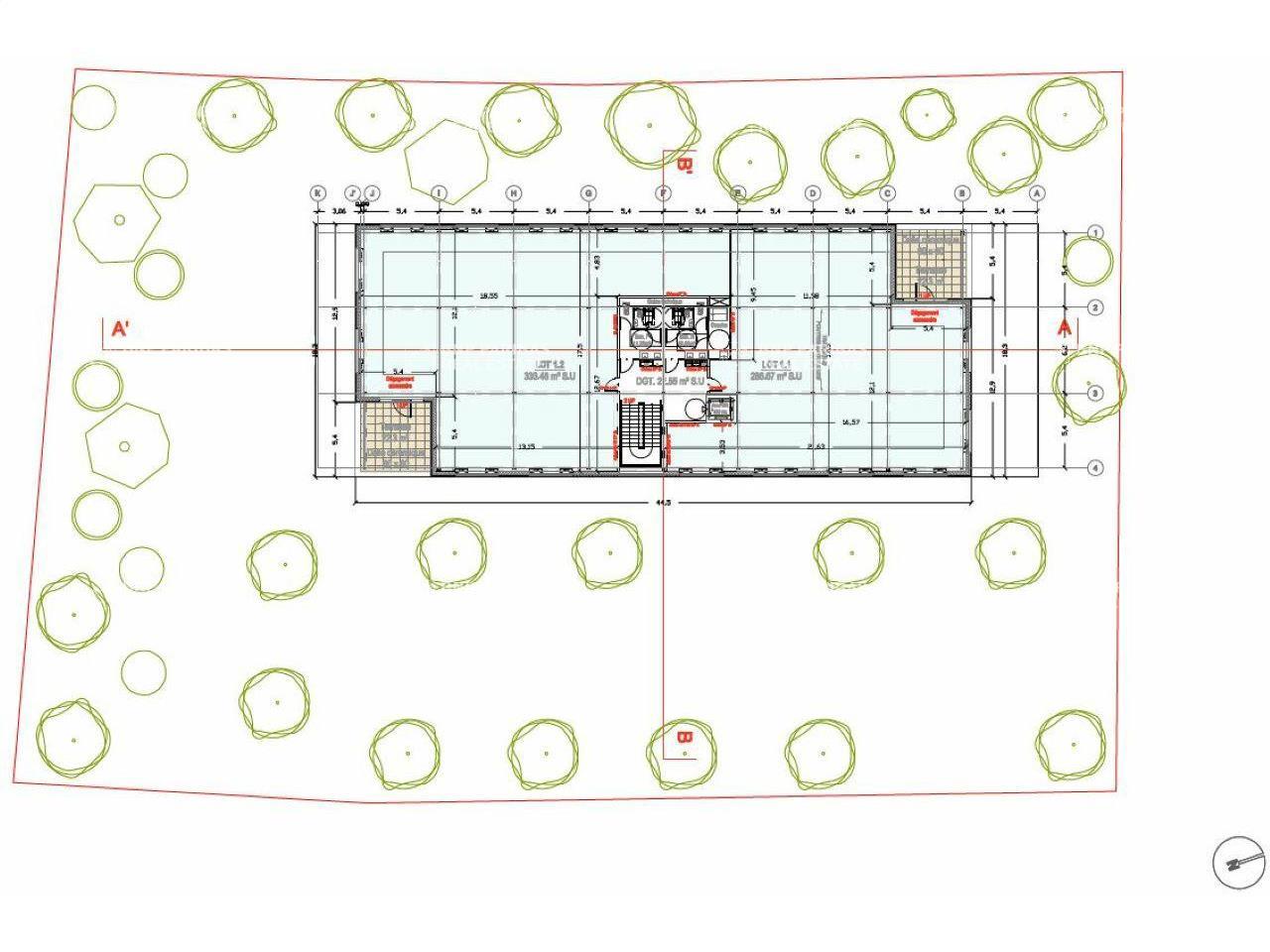
2 068 m²
Divisible dès 1 000 m²
à partir de 2 950 000 €
HT/HD
Disponibilité : 18 mois après accord

Valerie DOMBROWSKI
Description
ARASHIYA - des bureaux avec structure en bois apparent
En façade du Bd Urbain Est - ST PRIEST
Au sein de NEW FOREST, nouveau parc d'affaires de l' Est lyonnais qui propose des bâtiments en construction bois. Projet de développement tertiaire qui offrira 24 000 m² de bureaux à terme. Proximité immédiate tramway T2 et grands axes routiers.
A Saint-Priest, Nexity développe NEW FOREST une nouvelle génération de parc tertiaire qui bénéficiera d’une belle visibilité en façade du boulevard urbain Est.
NEW FOREST propose une offre de bureaux BAS CARBONE EN BOIS MASSIF aux entreprises qui souhaitent profiter de l’attractivité économique de la région lyonnaise en répondant aux enjeux actuels de transition écologique et s’inscrire véritablement dans les politiques RSE.
New Forest mêle bien-être au travail, confort, ainsi que maîtrise des charges et auto consommation électrique? grâce à l’emploi de bois massif Français en structure, de panneaux photovoltaïques et à la présence de généreux espaces extérieurs végétalisés.
Services & prestations
Aménagements
-
Accès Pers. Mobilité Réduite
-
Effectif théorique : 1 pers. pour 11m² de SU
-
Sanitaires
Equipements
-
Ascenseurs
-
Climatisation
-
Câblage informatique
-
Distribution chauffage : Gainable
-
Eclairage Bureaux : Luminaires encastrés LED
-
Faux plafond
-
Faux plancher
-
Production climatisation : Climatisation et chauffage par pompe à chaleur à récupération d'énergie, production simultanée de chaud et de froid
-
Sol bureaux : Moquette/Carrelage
Hauteurs
-
Hauteur sous-plafond : 2,70 mètre(s) Hauteurs libres 3,3 (sur RdC et R+1)
Prestations de service
-
Parking : 30 Places en sous-sol, 38 Places extérieur, 66 Places
Extérieurs
-
Terrasses - jardins
Type / Etat du bâtiment
-
Etat des locaux : Neuf
Informations complémentaires
-
Contrôle d'accès par badge et interphonie










