




LE LAB (Ilot2.5B)
Avenue Pierre Isnard/ Avenue du Dr Robini
06200 Nice
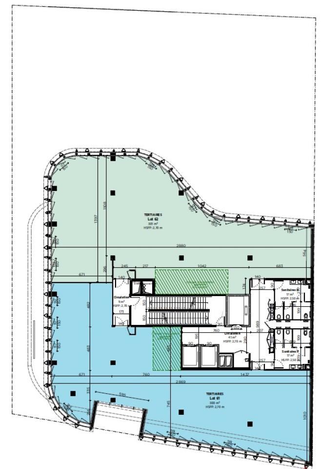
4 042 m²
Divisible dès 306 m²
240 €
HT/HC/m²/an
Disponibilité : 24 mois après accord

Jeanne-Marie FAUVET
Description
LE LAB
Projet mixte sur Nice Méridia
Implanté au sein de la technopole urbaine de Nice Méridia, ce projet mixte propose des bureaux et laboratoires au sein d’un ensemble tertiaire en développement. Certaines surfaces bénéficient de terrasses privatives. L’opération prévoit une livraison au T4 2027, offrant une opportunité d’implantation stratégique à long terme pour les entreprises.
OLBUR2314771 - LOCATION BUREAUX NICE LE LAB
BNP Paribas Real Estate vous présente à la location, un projet situé sur Nice Méridia qui disposera de bureaux ainsi que de laboratoires.
Limmeuble disposera de 6.819 m² de bureaux et laboratoires dont 2.380,90 m² environ de bureaux à 240 /m²/an HT HC et 1.661,30 m² de laboratoires à 215 /m²/an HT HC.
Les bureaux seront proposés en open space et les laboratoires seront livrés brut de béton. Des aménagements pourront être prévus sur demande et seront matérialisés sous forme de sur-loyer.
Les équipements et caractéristiques de l'immeuble :
Bureaux en open space
Labellisations :
HQE BD Excellent
Référentiel environnement Nice Ecovallée niveau 3
Smart Grid Ready
Locaux classés ERP 5 Type W pour le RDC et les deux derniers étages
Sanitaires privatifs avec douches
Faux plafond & faux plancher
Monte charge
2 Ascenseurs aux normes PMR
Immeuble sécurisé
Effectif immeuble : 1 personne pour 10m² SUM soit 552 personnes
Vous trouverez aux alentours du bâtiment des points de restauration, un parking public et d'autres services de proximité.
Le Lab sera bien desservi par les transports en commun et via les axes routiers, qui assurent un accès direct vers la gare et l'aéroport.
Accessibilité :
A8 / 6202 Bis
Gare SNCF Multimodale à proximité
Aéroport Nice Côte d'Azur à 5 min
Bus 22, 59, 90, 741, 672,
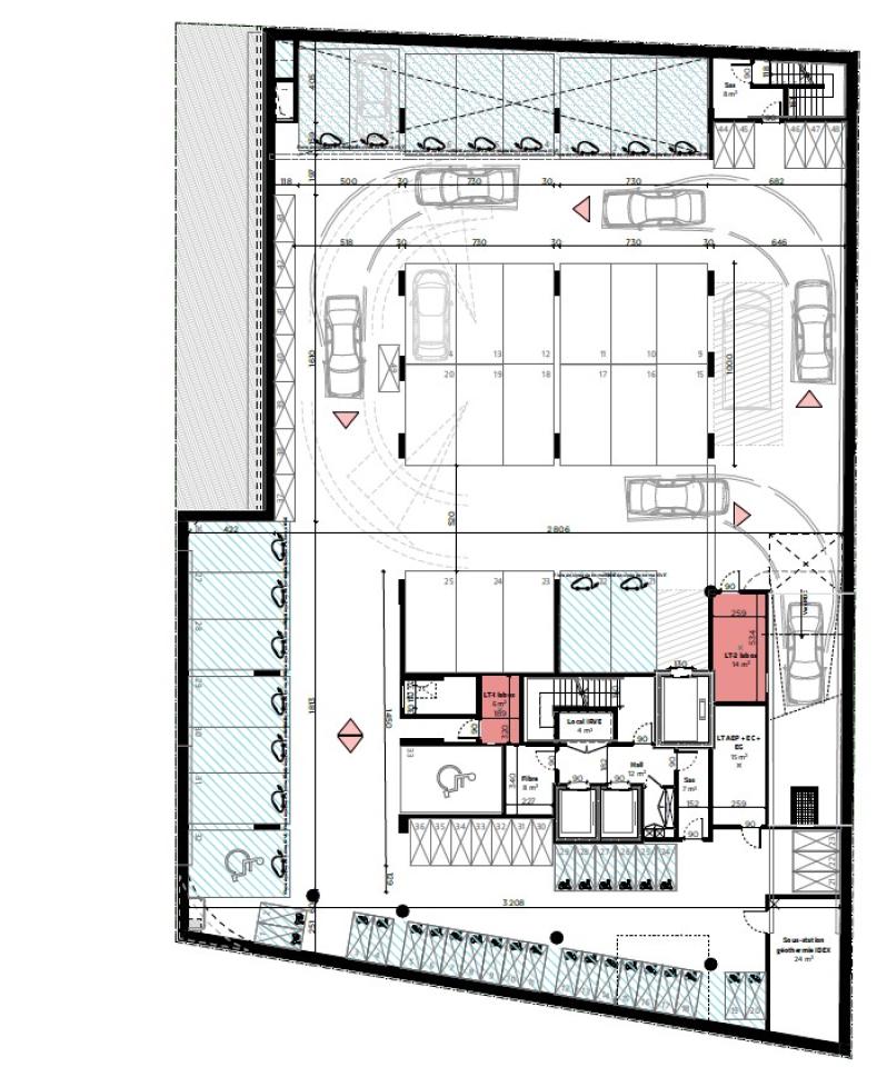
Conditions financières des parkings HT (à confirmer):
- VL Rglt : 2.300 /u
- VL Rglt pré-équipée IRVE : 2.370 /u
- VL Rglt équipée IRVE : 2.500 /u
- VL DUS Silo : 1.900 /u
- Place 2 RM : 260 /u
- Place 2 RM équipée IRVE : 310 /u
- Stationnement Vélos : 50 /m²
Services & prestations
Aménagements
-
Accès Pers. Mobilité Réduite
-
Aménagement des bureaux : Espaces Ouverts En open-space
-
Sanitaires : Parties communes avec détecteurs de mouvements
Equipements
-
Ascenseurs : 2 appareils 1000Kg de charge admissibles / 13 personnes
-
Climatisation : Ventilation mécanique contrôlée double flux
-
Distribution chauffage : De types gainables (réseaux de soufflage et de reprise en faux plafond)
-
Douche
-
Eclairage Bureaux : Spots LED encastrées
-
Faux plafond : En dalles, posées sur ossature apparente laquée blanche
-
Faux plancher : De type dalle champignon
-
Fenêtres : Stores de type BSO extérieurs
-
Monte-charge : 1 appareil 2000Kg de charge admissibles / 26 personnes
-
Sol bureaux : Moquette
-
Type de chauffage : Relié au réseau de chaleur et de refroidissement de la ville
Prestations de service
-
Parking : Public Joïa Méridia à proximité
-
Restauration : A proximité
-
Sécurité : Vidéophone : au niveau de l'entrée principale et du parking
Extérieurs
-
Trame de façade : 1,35 mètre(s)
Normes, Certifications et Labels
-
Catégorie ERP : 5 Type W pour le RDC et les étages 7 et 8
-
Certification : HQE
Type / Etat du bâtiment
-
Etat de l'immeuble : A construire - Livraison T4 2027
-
Immeuble indépendant
Informations complémentaires
-
Brise soleil verticaux en aluminium, Structures en voile béton armé
-
Charges d'exploitation 400 DAN/m² pour les parties labos
-
Electricité : Tableau général basse tension - Branchement tarif bleu : puissance souscrite <36k VA










