




Location Bureau 4 025 m²
13006 Marseille
4 025 m²
Divisible dès 200 m²
170 €
HT/HC/m²/an
Disponibilité : Immédiate

Anthony GARCIA
Description
MARSEILLE 13006 - AVENUE JULES CANTINI - TOUR MEDITERRANEE
BUREAUX A LOUER 4 025 M² DIVISIBLES
MARSEILLE 13006 - AVENUE JULES CANTINI - TOUR MEDITERRANEE - BUREAUX A LOUER 4 025 M² DIVISIBLES
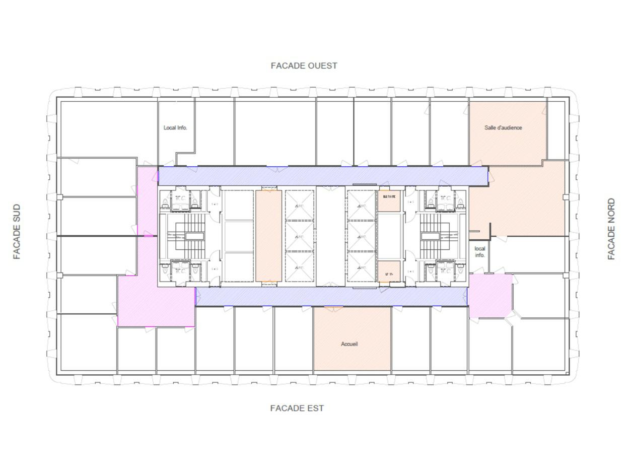
Idéalement située à proximité de la Place Castellane, au pied de l'A50 et du Tunnel Prado-Carénage, la Tour Méditerranée dispose de surfaces disponibles bénéficiant, selon les étages, de vues très dégagées sur la ville et la mer.
Parkings et locaux d'archives en sous-sol.
Immeuble Grande Hauteur (IGH) certifié BREEAM Good.
MARSEILLE 13006 - AVENUE JULES CANTINI - TOUR MEDITERRANEE - BUREAUX A LOUER 4 025 M² DIVISIBLES
BNP PARIBAS Real Estate vous propose des bureaux à louer. Ils sont situés au sein de La Tour Méditerranée, idéalement située et bénéficiant de très bonnes dessertes :
Proximité du métro (lignes 1 et 2), des bus, ainsi que des accès vers l'autoroute A50 via le Tunnel Prado-Carénage et au pied du tramway (ligne T3 décembre 2025).
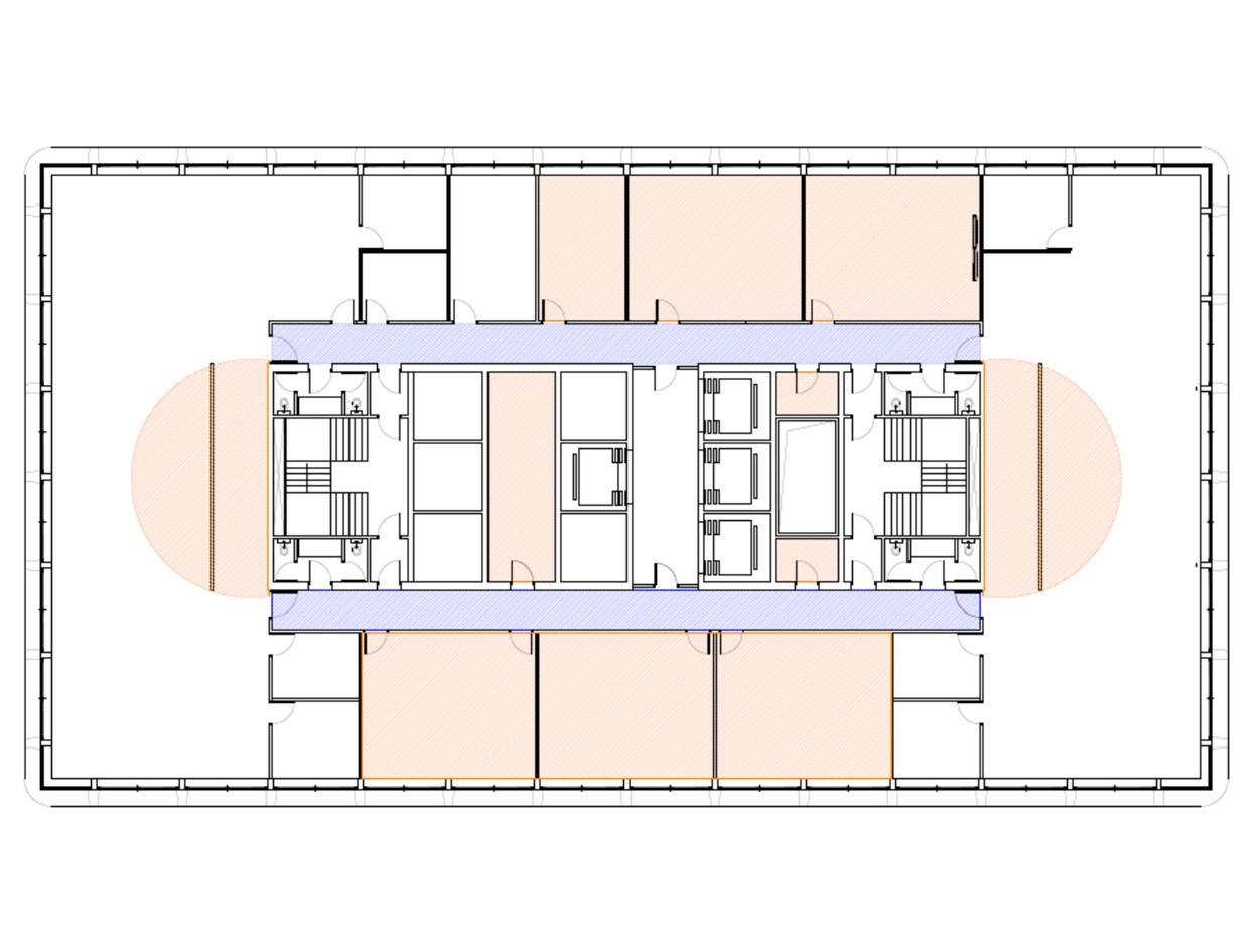
La Tour Méditerranée va faire l'objet d'un programme de rénovation. Les surfaces au R+4, R+12 et R+18 bénéficieront de :
- Rénovation des bureaux (sol, faux-plafond, LED, cloisonnement CF, peinture, stores intérieurs)
- Rénovation du sanitaire en PMR
Rénovation du pallier ascenseur
Les prestations sont de très haute qualité :
Contrôle d'accès
Surveillance 24/24
Accueil : hôtesses
Accès PMR
RIE
77 parkings
4 ascenseurs + 1 monte charge
Climatisation
Faux plafond
Les ascenseurs ont été remplacés, permettant une économie d'énergie de 60%.
Immeuble Grande Hauteur (IGH) certifié BREEAM Good
Services & prestations
Aménagements
-
Accueil : Hôtesses
-
Accès Pers. Mobilité Réduite
-
Effectif théorique : 1/10 m²
-
Sanitaires : Privatif(s)
Equipements
-
Ascenseurs : 4 et 1 monte-charge
-
Climatisation : Réversible
-
Eclairage Bureaux : Luminaires encastrés
-
Faux plafond
-
Plinthes techniques périphériques
-
Sol bureaux : Moquette
-
Type de chauffage : Collectif par ventilo-convecteurs
Normes, Certifications et Labels
-
Catégorie ERP : 5
-
Certification : BREEAM
Type / Etat du bâtiment
-
Etat de l'immeuble : IGH
-
Etat des locaux : Etat d'usage
-
Type d'immeuble
Informations complémentaires
-
Concierge sur place
-
Archives : 100€/m²/an










