




Location Bureau 515 m²
33300 Bordeaux
515 m²
160 €
HT/HC/m²/an
Disponibilité : Immédiate

Maxence DUMONT
Description
Location de bureaux modernes à Bordeaux Lac – Quartier Ginko avec terrasse privative
Dans le quartier de GINKO, à deux pas du Lac de Bordeaux, BNP PARIBAS REAL ESTATE vous propose des bureaux à la location.
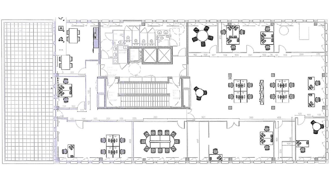
Au sein d’un bel immeuble moderne datant de 2019, ces locaux plug and play se composent d’un plateau de 515 m² au 4ème étage avec une terrasse privative de 100 m². Traversant et lumineux, cet espace peut s’adapter à tous types d’activité. Une surface de 56 m² au RDC vient compléter ce lot.
Accès Tram C au pied de l’immeuble avec l’arrêt Berge du Lac.
À la recherche d'un bureau à louer à Bordeaux dans un quartier en pleine transformation, dynamique et bien desservi ? BNP Paribas Real Estate vous propose un espace de travail contemporain situé dans le quartier Ginko, à proximité immédiate du Lac de Bordeaux.
Des bureaux fonctionnels et lumineux dans un immeuble récent
Implantés au sein d'un immeuble tertiaire de construction récente (2019), ces bureaux à louer à Bordeaux Ginko offrent une surface totale de 515 m² répartie comme suit :
Un plateau principal de 515 m² au 4 étage, traversant, lumineux, et offrant une excellente flexibilité d'aménagement
Une terrasse privative de 104 m², idéale pour les pauses ou réunions en extérieur
Une surface complémentaire de 56 m² au rez-de-chaussée
Ces locaux modernes, plug and play, conviennent parfaitement à tous types d'activités tertiaires (bureaux d'études, entreprises de services, sociétés innovantes, etc.).
Points forts de l'offre :
Surface totale : 515 m²
Immeuble récent (2019) aux normes actuelles
Plateau traversant : double exposition, grande luminosité
Terrasse privative de 104 m²
Locaux prêts à l'emploi
Espace de plain-pied au RDC complémentaire
Une localisation stratégique à Bordeaux Ginko
Le quartier Ginko s'impose aujourd'hui comme l'un des nouveaux pôles d'attractivité tertiaire de Bordeaux. Situé au nord de la ville, entre le Lac de Bordeaux et les Bassins à Flot, ce secteur bénéficie d'un environnement dynamique et durable, alliant espaces verts, logements modernes, bureaux et commerces de proximité.
Les entreprises y trouvent un cadre de travail agréable et une qualité de vie au quotidien, tout en profitant d'une excellente connexion au reste de l'agglomération bordelaise.
Transports et accessibilité
Un des atouts majeurs de ce bien est sa situation au pied du tramway C, avec l'arrêt Berges du Lac directement en bas de l'immeuble, permettant de rejoindre :
Le centre-ville de Bordeaux en moins de 15 minutes
La Gare Saint-Jean rapidement via le tram
Les principaux axes routiers (rocade, pont Chaban-Delmas)
Un investissement pérenne dans un secteur en pleine expansion
Ce bureau à louer à Bordeaux Lac, dans un immeuble récent, est une opportunité idéale pour les entreprises souhaitant s'implanter ou se développer dans un quartier innovant, durable et connecté, à la fois proche du centre-ville et des pôles économiques de Bordeaux Nord.
Découvrez d'autres opportunités :
Intéressé par ces bureaux à louer quartier Ginko Bordeaux ? Contactez nos équipes BNP Paribas Real Estate pour organiser une visite ou recevoir une étude personnalisée.
Services & prestations
Aménagements
-
Accès Pers. Mobilité Réduite
-
Aménagement des bureaux : Cloisonnés/Ouverts, Espaces Ouverts 1 grand open space
-
Bureaux cloisonnés : 9 de différente taille
-
Sanitaires : 6 dont 2 PMR
Equipements
-
Ascenseurs : Accessible PMR
-
Climatisation : Réversible
-
Eclairage Bureaux : LED
-
Faux plafond : Dalles
-
Sol bureaux : Moquette
Extérieurs
-
Terrasses - jardins : Grande terrasse de 100 m²
Type / Etat du bâtiment
-
Etat de l'immeuble : Récent très bon état
Informations complémentaires
-
Plateaux traversants et lumineux
-
Cuisine privative










