




Location Bureau 952 m²
33100 Bordeaux
952 m²
Divisible dès 233 m²
à partir de 230 €
HT/HC/m²/an
Disponibilité : 25/12/2025

Maxence DUMONT
Description
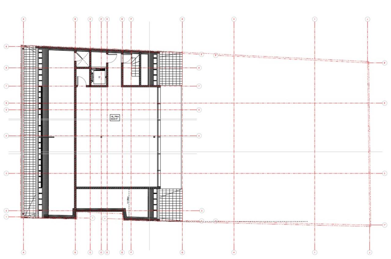
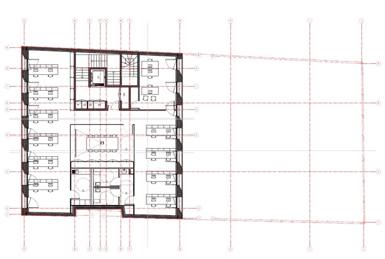
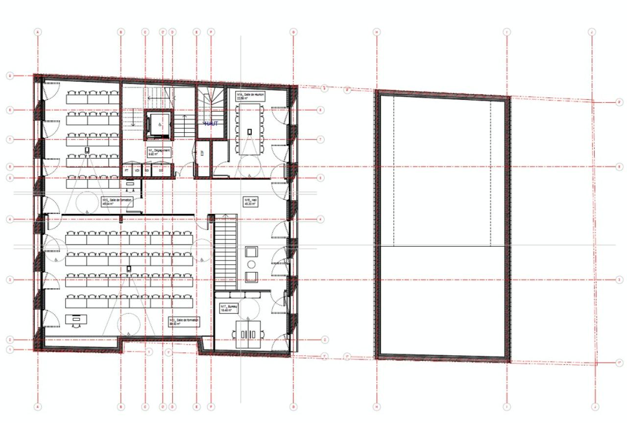
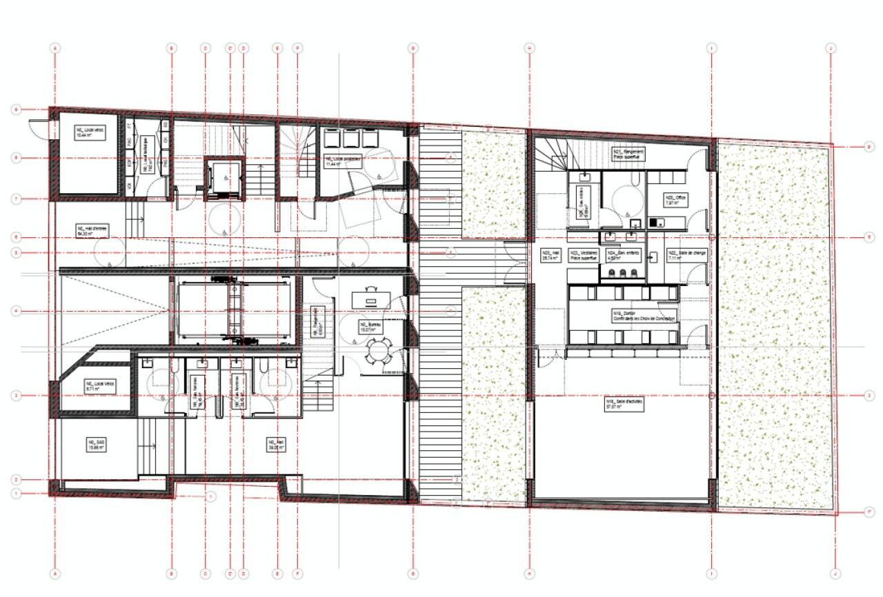
Bureaux à louer Bordeaux Rive Droite – Immeubles neufs avec jardins et ERP possible
Situés sur la Rive droite de Bordeaux à proximité des Quais, BNP PARIBAS REAL ESTATE vous propose des bureaux à la location. Répartis sur deux bâtiments reliés par des espaces extérieurs végétalisés, ce projet dispose d'un permis purgé de tout recours. Ces locaux peuvent s'adapter à différents types d'activité et convenir à différentes destinations : Siège, Ecole Etc.. ERP possible
BNP Paribas Real Estate vous propose à la location des bureaux à louer à Bordeaux Rive Droite, idéalement situés 15 Rue de Châteauneuf, à quelques pas des Quais et du centreville. Répartis sur deux bâtiments modernes reliés par des espaces extérieurs végétalisés, ces locaux s'insèrent dans un quartier attractif en plein essor, combinant accessibilité, qualité de vie et cadre professionnel stimulant. Grâce à un permis de construire purgé de tout recours, ce projet offre une mise en oeuvre rapide et sereine pour les futurs preneurs.
Un ensemble tertiaire neuf, flexible et adapté à de nombreux usages
Pensés pour accueillir une grande diversité d'activités, ces bureaux sont parfaitement modulables et permettent de répondre à différents projets professionnels : implantation de sièges sociaux, écoles ou centres de formation, services administratifs, ou toute activité nécessitant une destination en ERP (Établissement Recevant du Public). L'architecture contemporaine des deux bâtiments, associée à des espaces verts intégrés et des terrasses généreuses, offre un cadre de travail agréable et valorisant.
Atouts du projet
- Immeuble neuf à louer à Bordeaux Rive Droite
- Espaces extérieurs végétalisés, terrasses et jardins
- Grande flexibilité d'aménagement des plateaux
- Permis purgé de tout recours pour une mise en oeuvre rapide
- Compatible ERP type R (Établissement Recevant du Public)
- Possibilité de solution clé en main selon cahier des charges
Un emplacement stratégique mêlant attractivité et accessibilité
Le site bénéficie d'une localisation privilégiée : à proximité immédiate des Quais de Bordeaux, du centreville, des transports en commun et des services. La proximité des lignes de tramway, des axes structurants et des zones commerçantes renforce l'accessibilité et l'attractivité du quartier pour les collaborateurs, visiteurs ou étudiants.
Points clés
- Immeuble neuf livré prêt à aménager
- Terrasses et espaces verts favorisant le bienêtre
- ERP possible selon destination d'activité
- Accessibilité forte au coeur d'un quartier en développement
- Opportunité attractive pour entreprises, écoles ou services
Autres bureaux à louer à Bordeaux Métropole
Bureaux à louer à proximité du tramway à Bordeaux
Bureaux à louer à Bordeaux Belvédère










