




Location Bureau 1 515 m²
33700 Mérignac
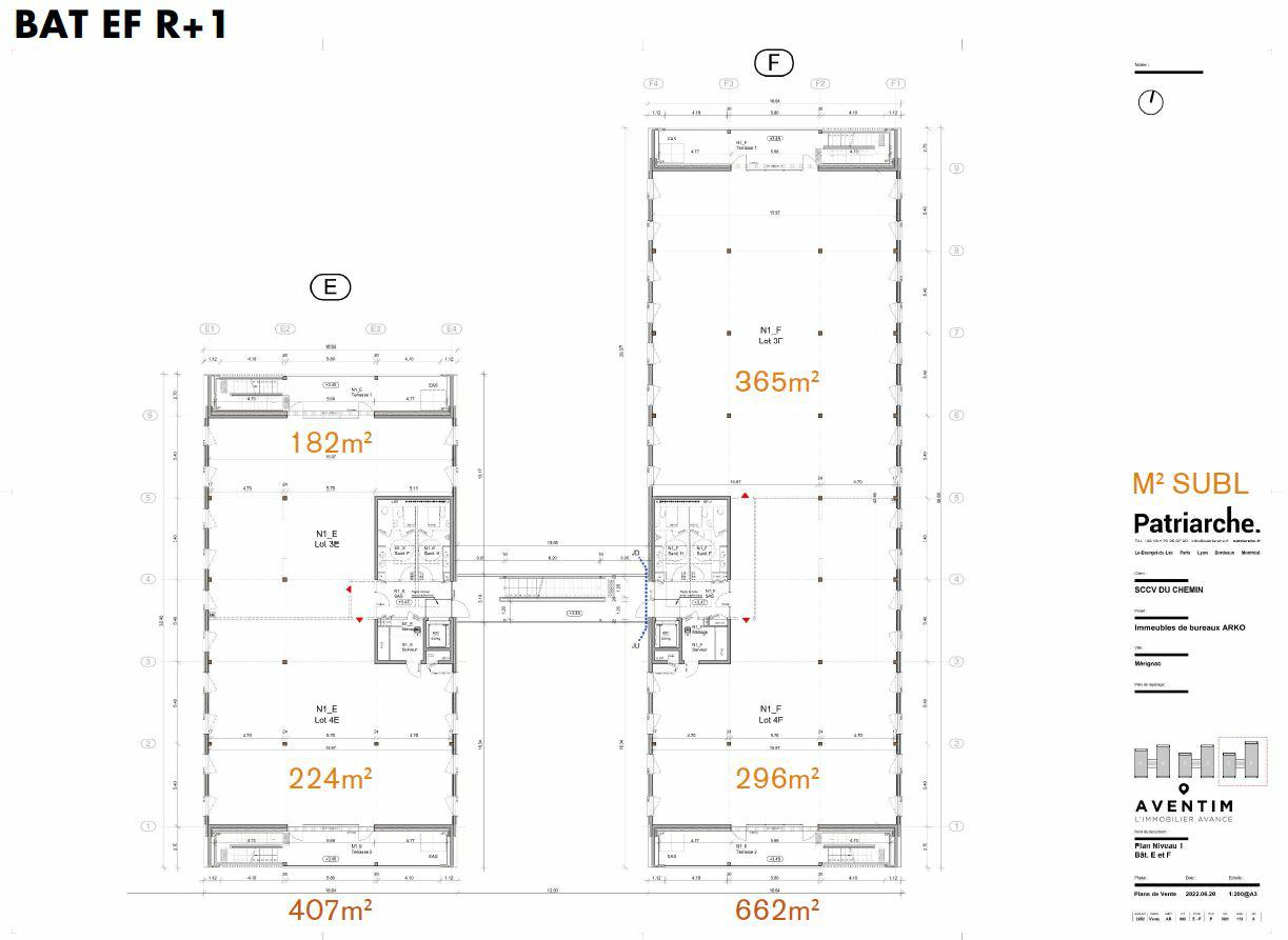
1 515 m²
Divisible dès 183 m²
à partir de 150 €
HT/HC/m²/an
Disponibilité : Immédiate

Ludovic MICHELON
Description
Bureaux à louer Mérignac – ARKO : immeubles tertiaires bois, durables et connectés
Programme de 6 bâtiments de bureaux, situé au cœur de l'OIM au sein d'un environnement verdoyant et préservé assurant à vos collaborateurs un cadre de travail apaisant. Ces immeubles neufs en structure bois et élevés en R+2 offrent des prestations qualitatives. Plateaux de bureaux ajustables bénéficiant de terrasses privatives et de nombreux parkings. Division possible à compter de 180 m².
Location de bureaux à Mérignac : BNP Paribas Real Estate vous propose ARKO, un programme tertiaire d'exception situé dans le quartier de l'OIM Bordeaux Aéroparc, au coeur d'un environnement végétal et technologique. Conçu autour de principes de construction durable, de mobilité raisonnée et de qualité de vie au travail, ARKO s'inscrit dans une nouvelle génération d'immeubles de bureaux performants et responsables.
Un parc tertiaire écoresponsable et flexible
Développé au sein du programme ECOSPH'AIR, le parc ARKO totalise 7 688 m² de bureaux répartis sur 6 immeubles en structure bois, conçus avec des matériaux biosourcés, issus de forêts régionales. Ces bâtiments à énergie positive (BEPOS) et à empreinte carbone réduite (E+C-) répondent aux normes environnementales les plus exigeantes.
Les plateaux, divisibles à partir de 180 m², offrent :
Hauteur libre sous plafond bois de 3 m
Vitrage toute hauteur pour une luminosité naturelle maximale
Terrasses privatives pour chaque demi-plateau
Patios végétalisés entre les bâtiments
Climatisation réversible
Douches dans chaque immeuble
Connectivité certifiée WiredScore
Locaux vélos sécurisés et 240 places de stationnement privatif
Service de mobilité partagée Mobil'Ethic
Un cadre idéal pour installer vos équipes dans des conditions de confort, de performance et de durabilité.
Une localisation stratégique au sein de Bordeaux Aéroparc
Situé 5-7 rue Amy Johnson à Mérignac, ARKO bénéficie d'un positionnement premium au coeur du principal pôle d'activités de l'ouest bordelais. L'ensemble est directement connecté aux principaux axes et transports de la métropole :
Proximité immédiate de la rocade (sortie n°10)
Accès rapide à l'aéroport de Bordeaux-Mérignac
Lignes de bus 1, 39, 82, 88
Extension de la ligne A du tramway
Futur BHNS (Bus à Haut Niveau de Service)
Le quartier bénéficie aussi d'un environnement de services complet : restauration, commerces, hôtellerie, etc.
Disponible immédiatement à la location, ARKO représente une opportunité unique de s'implanter dans des bureaux neufs, durables et parfaitement intégrés à leur environnement naturel et économique.
Découvrez le programme tertiaire MADERA à Mérignac, un autre immeuble neuf de nouvelle génération
Consultez également l'offre Coeur Aéroparc à Mérignac, idéalement situé dans le même pôle tertiaire
Explorez enfin les autres bureaux à louer à Mérignac pour comparer les meilleures opportunités de la métropole bordelaise
Services & prestations
Aménagements
-
Accès Pers. Mobilité Réduite
-
Aménagement des bureaux : Cloisonnés/Ouverts
-
Complexe Salle de réunion
-
Effectif théorique
-
Sanitaires : Parties communes H/F/PMR
Equipements
-
Ascenseurs
-
Climatisation : Réversible en cassettes
-
Câblage informatique
-
Distribution chauffage : Réversible
-
Eclairage Bureaux : LED
-
Faux plancher : Technique
-
Revêtement mural : Peinture
-
Sol bureaux : Moquette
Hauteurs
-
Hauteur sous-plafond : 2,70 mètre(s)
Prestations de service
-
Parking : Aériens et silo
Extérieurs
-
Terrasses - jardins : Terrasses privatives à chaque étage de bureaux
Normes, Certifications et Labels
-
Catégorie ERP : Possible
-
Label actuel : BEPOS et E3C1
Type / Etat du bâtiment
-
Etat de l'immeuble : Neuf Structure bois
-
Etat des locaux : Neuf
Informations complémentaires
-
Gestion des eaux de pluie, Raccordement fibre
-
Capacitaire 867 personnes, Code du travail
-
Panneaux solaires










