




37 Rue Croix Baragnon
31000 Toulouse
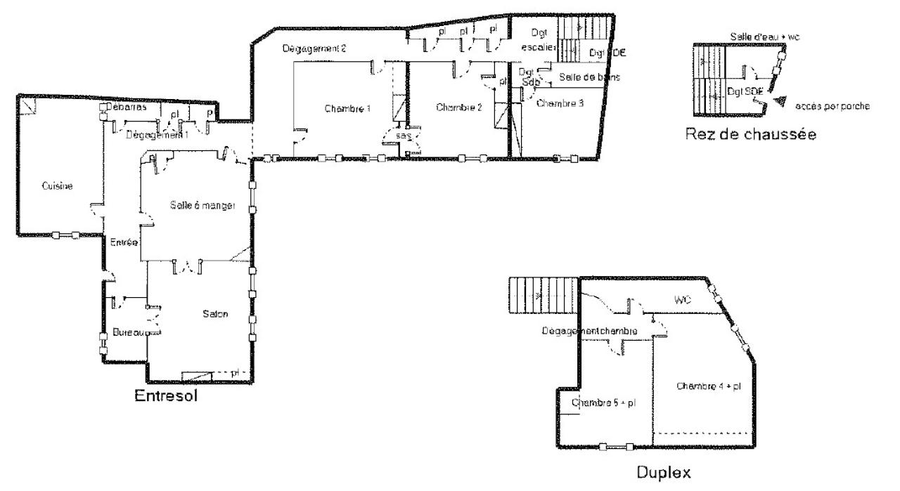
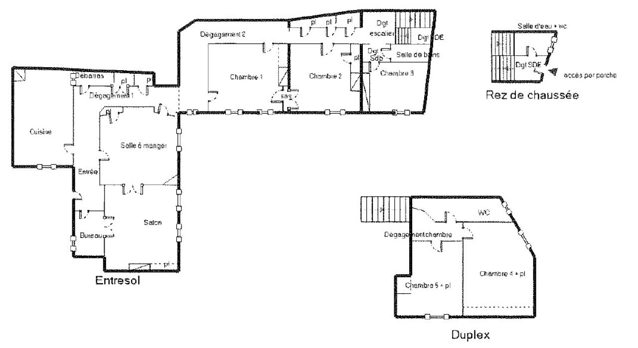
219 m²
184 €
HT/HC/m²/an
Disponibilité : Immédiate

Louise BOURRIERES
Description
*** BUREAUX A LOUER EN HYPER CENTRE-VILLE ***
Au cœur du quartier Saint-Etienne et à proximité de toutes commodités, BNP Paribas Real Estate vous propose une surface de bureaux de 219 m² au sein d'un immeuble de charme, disponible à la location.
Les bureaux sont disponibles immédiatement à la location.
* Emplacement idéal pour les transports en commun : bus, métro lignes A & B, navette aéroport Toulouse-Blagnac
* A 15 minutes environ de la gare Toulouse-Matabiau
* Accès rocade immédiat
* Parkings publics à proximité
Prestations techniques :
Sécurité : Contrôle d'accès
Aménagement des bureaux : Cloisonnés
Eclairage Bureaux : Luminaires suspendus
Sanitaires privatifs
Douche
Autre atout : une cuisine est à votre disposition pour la pause déjeuner.
Contactez-nous pour visiter !
Le centre-ville de Toulouse est un pôle économique majeur, offrant un large choix d'opportunités en immobilier d'entreprise. Il séduit autant les grandes entreprises que les startups. Son accessibilité, son dynamisme et la diversité de son offre en font un emplacement privilégié pour y implanter son entreprise.
Le quartier Matabiau, en pleine transformation avec le projet Grand Matabiau Quais d'Oc, est destiné à devenir le nouveau quartier d'Affaires de la Métropole. Grâce à la modernisation de la Gare Toulouse-Matabiau, l'arrivée de la 3ème ligne de métro et des aménagements urbains ambitieux, ce nouveau quartier offrira une offre tertiaire moderne et connectée aux entreprises en quête de centralité et d'accessibilité.
Le quartier Guillaumet, situé à l'est du centre-ville, actuellement en pleine reconversion propose une offre diversifiée de logements, commerces et bureaux. Il est conçu pour favoriser l'innovation et le bien-être au travail et attire déjà de nombreuses entreprises.
Situé à deux pas du centre-ville et du Capitole, la ZAC de Compans Caffarelli est le 1er quartier d'affaire de TOULOUSE regroupant un parc immobilier vieillissant qui nécessitera une remise à niveau et une production d'offres neuves.
Services & prestations
Aménagements
-
Aménagement des bureaux : Cloisonnés
-
Sanitaires : Privatif(s)
Equipements
-
Douche
-
Eclairage Bureaux : Luminaires suspendus
-
Sol bureaux : Parquet
Prestations de service
-
Sécurité : Contrôle d'accès
Extérieurs
-
Linéaire de façade : 7,00 mètre(s)
Type / Etat du bâtiment
-
Etat des locaux : Etat d'usage
-
IGH / Code du travail : Code du travail
Informations complémentaires
-
Cuisine
-
Les frais de gestion technique de l'immeuble sont exprimés TTC










