




Location Bureau 2 148 m²
69003 Lyon
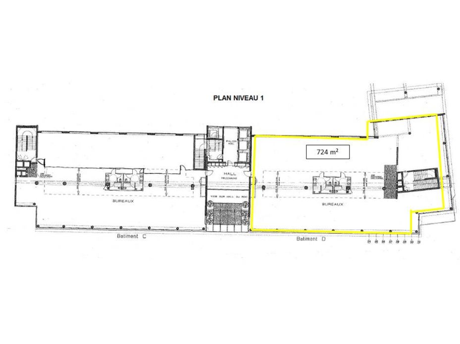
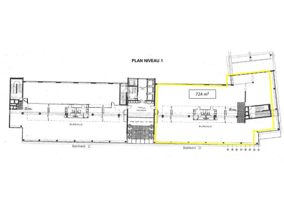
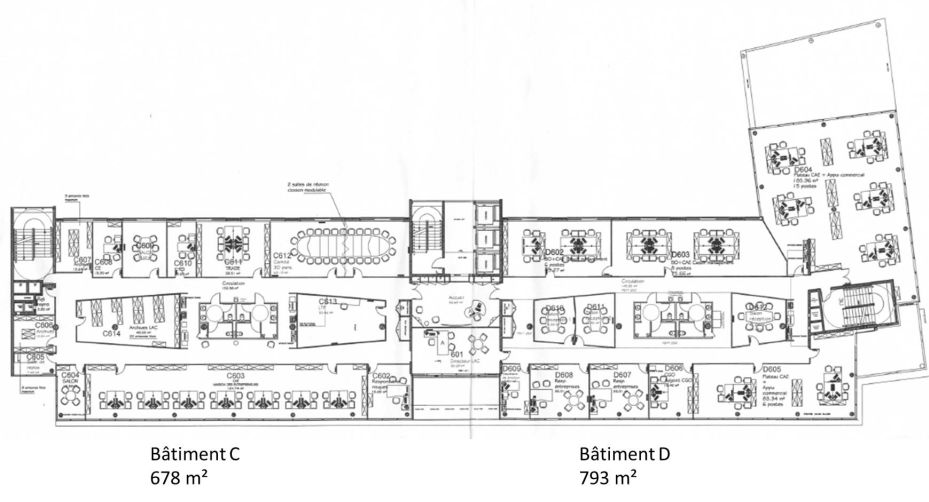
2 148 m²
Divisible dès 272 m²
à partir de 230 €
HT/HC/m²/an
Disponibilité : Immédiate

Jeanne GREE
Description
LE BONNEL
LYON 03
Nous vous proposons de vous installer au cœur du 3ème arrondissement, au sein de cet immeuble de standing.
Ces grands plateaux vous séduiront par leurs volumes et leur luminosité.
A proximité de toutes commodités et des transports en commun.
Services & prestations
Aménagements
-
Accueil : Hôtesses
-
Accès Pers. Mobilité Réduite
-
Aménagement des bureaux : Cloisonnés vitrés toute hauteur
-
Sanitaires : Privatif(s)
Equipements
-
Ascenseurs : 3
-
Charge au sol Rdc : 0,50 kg/m²
-
Climatisation : Réversible par pompe à chaleur
-
Câblage informatique : Fibre optique
-
Eclairage Bureaux : Luminaires encastrés
-
Faux plafond : Dal. fibres minéral. 2,70 cm
-
Faux plancher : Technique
-
Fenêtres : Stores intérieurs
-
Gestion technique centralisée
-
Sol bureaux : Moquette
-
Sols du bâtiment : Moquette en dalles
-
Type de chauffage : Collectif
Hauteurs
-
Hauteur libre : 2,70 mètre(s)
Prestations de service
-
Parking : A la gare Part Dieu, Local vélo sécurisé
-
Sécurité : Contrôle d'accès Surveillance de 18h à 6h
Extérieurs
-
Trame de façade : 1,35 mètre(s)
Type / Etat du bâtiment
-
Etat de l'immeuble : Etat d'usage
-
Etat des locaux : Rénové cloisonnés et câblés (6ème)
Informations complémentaires
-
Bureaux câblés, Fibre optique
-
Frigo connecté, Sous toiture terrasse
-
Hall d'entrée rénové, Huisserie alu double vitrage










