




Location Bureau 7 650 m²
69007 Lyon
7 650 m²
Divisible dès 1 155 m²
Loyer sur demande
Disponibilité : 36 mois après accord

Stephan POULAT
Description
INPACT
LYON 07
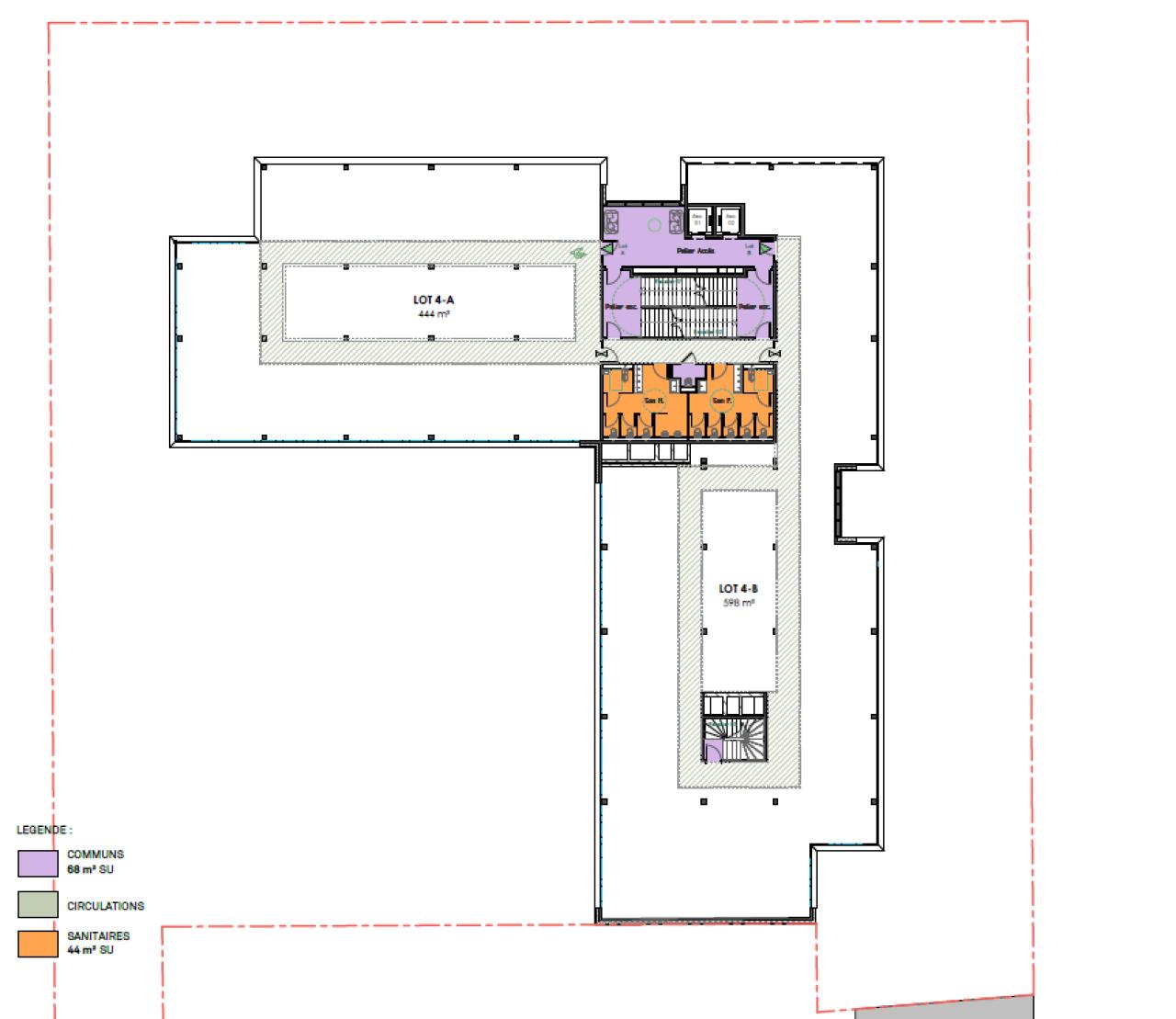
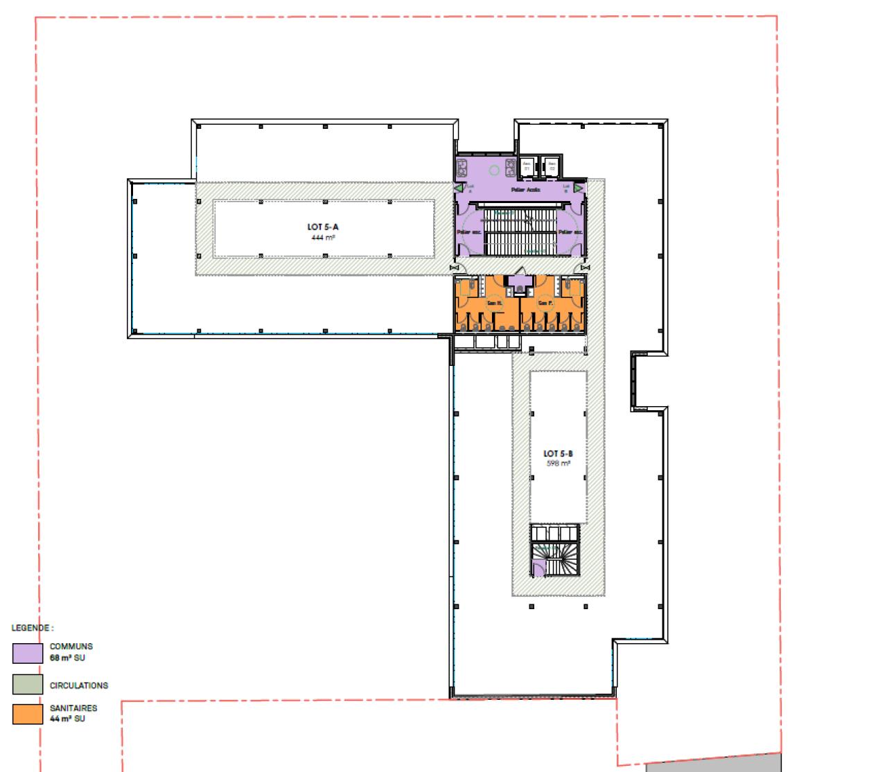
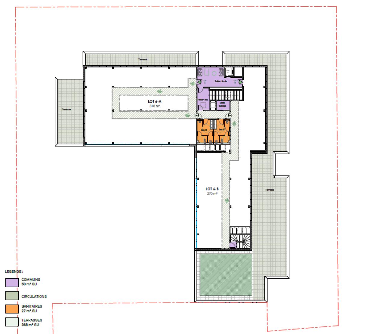
Localisation idéale à 2 pas du Métro Ligne B Station Stade de Gerland nous vous proposons un immeuble de bureaux neuf à la location de 6 605 m² bâti en R+ 6. Ce projet bénéficie de grands plateaux lumineux, de terrasses généreuses et offre la possibilité d’avoir des locaux de stockage en rez de chaussée.
Le projet vise un label Breeam very Good grâce notamment à l’optimisation des ressources des matériaux de construction.
Services & prestations
Aménagements
-
Accès Pers. Mobilité Réduite : Ascenseur
-
Effectif théorique
Equipements
-
Ascenseurs
-
Faux plancher
Normes, Certifications et Labels
-
Certification : BREEAM, HQE
Informations complémentaires
-
389 m² de terrasses privatives, 800 m² de panneaux photovoltaïques en toiture, Activité en RDC : Livrée «brute de béton, fluides en attente», Distribution : 4 tubes, Douches / Vestiaire, Effectif : 1 personne/ 10 m² de SUBL, GTB, Jardin paysagé en coeur d’ilot, Locaux vélos : 105 m² de locaux vélos sécurisés, soit 80 emplacements, Mezzanines, Plafonds rayonnants réversibles, Plateaux : livrés en blanc, Production de chaleur : réseau de chaleur urbain, Production de froid : réseau de froid Urbain, Salle de réunion sur 20% de la surface de chaque plateau avec une densité de 1 personne/ 3 m² SU










