




Location Local d'activité 580 m²
13290 Aix-en-Provence
580 m²
130 €
HT/HC/m²/an
Disponibilité : Immédiate

Jean-Jacques BIAU
Description
A LOUER
Surface d'activité
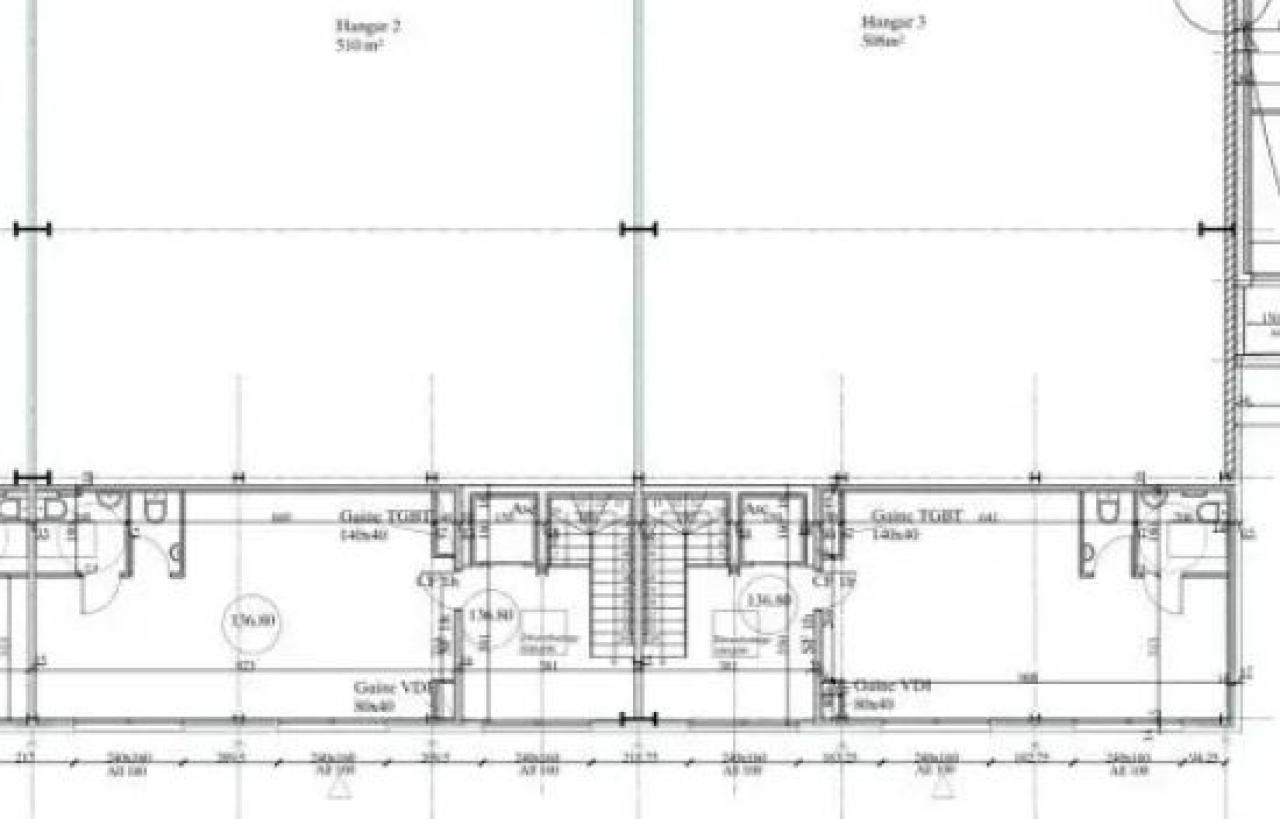
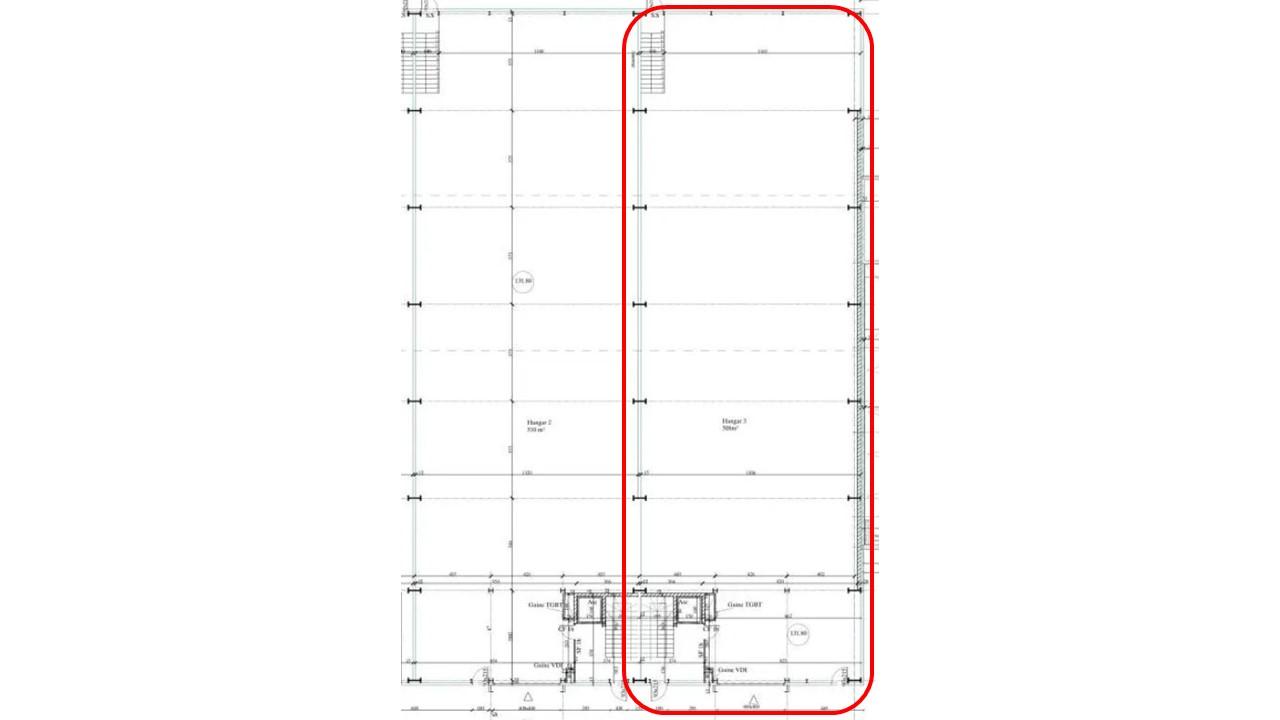
Un ensemble immobilier récent, un lot de 580 m² avec bureaux en R+1 . La partie entrepôt est isolée, jouit de 7 m de hauteur, du triphasé et d'une porte de plain-pied 4 m x 4 m . places de parking privatives lui sont attribuées. Le tout sur site clos et sécurisé. Disponible immédiatement, à la location.
A LOUER SURFACE D'ACTIVITÉ
Situé au coeur d'une zone d'activité stratégique d'Aix-en-Provence, ce bâtiment polyvalent combine fonctionnalité et accessibilité. Avec une surface totale de 580 m², offrant ainsi des solutions adaptées aux besoins variés des entreprises.
Les espaces d'activité en rez-de-chaussée, associés à des bureaux en R+1, offrent une configuration idéale pour des activités industrielles, artisanales ou de stockage, tout en répondant aux exigences modernes grâce à des infrastructures performantes et à un environnement sécurisé.
Caractéristiques principales
- Hauteur sous plafond : 7 m
- Accès : Porte plain-pied (4 m x 4 m) par lot
- Électricité : Alimentation triphasée
- Parking : places privatives par lot
- Sécurité : Site clôturé et sécurisé
Localisation et accessibilité
L'emplacement offre une connectivité optimale avec les infrastructures locales et régionales :
- Aéroport Marseille-Provence : 21 km
- Transports en commun : À moins de 1 km de plusieurs lignes de bus et de la gare SNCF
- Autoroutes : Accès rapide aux axes A8 et A51
À proximité immédiate, vous trouverez également des zones de services, restaurants et commerces, facilitant le quotidien des collaborateurs et clients.
Avantages clés
Ce bâtiment se distingue par sa flexibilité, son confort et sa situation géographique privilégiée. Il représente une solution idéale pour les entreprises cherchant à s'implanter ou à développer leur activité dans un cadre à la fois pratique et moderne.










