




Vente Bureau 2 199 m²
33800 Bordeaux
2 199 m²
3 518 400 €
HT/HD
Disponibilité : 01/07/2027

Laura MOURGUIART
Description
Bureaux à vendre Bordeaux Euratlantique – Immeuble indépendant à fort potentiel
BNP PARIBAS REAL ESTATE vous propose un immeuble à vendre en plein cœur du quartier d’Euatlantique, à quelques minutes à pied de la gare SAINT JEAN. Livré BRUT, fluides en attente à un prix plus que compétitif, vous disposerez la possibilité d’aménager vos locaux à votre guise. L’immeuble peut accueillir différentes typologies d’activités du fait de sa classification ERP.
Profitez d'une opportunité rare avec ces bureaux à acquérir dans le quartier Euratlantique de Bordeaux, à deux pas de la Gare Saint-Jean. Idéalement situé et proposé à un prix compétitif, ce bâtiment brut à aménager offre un potentiel unique pour implanter vos activités dans l'un des pôles économiques les plus dynamiques de la métropole bordelaise.
Acheter vos bureaux évolutifs au coeur du quartier d'affaires
Pensé pour les entreprises en quête de flexibilité et de visibilité, cet immeuble indépendant s'adresse aux porteurs de projets souhaitant concevoir des espaces sur mesure, dans un environnement en pleine mutation. Grâce à sa classification ERP, il peut accueillir une large variété d'activités : tertiaires, accueil du public, services ou même coworking.
C'est une solution idéale pour les structures en croissance, les investisseurs ou les acteurs du tertiaire souhaitant capitaliser sur un emplacement stratégique et une valeur immobilière en progression.
Un immeuble brut à aménager selon vos besoins
Le bien se distingue par une architecture contemporaine et des volumes libres, offrant aux futurs occupants la liberté de concevoir des espaces personnalisés.
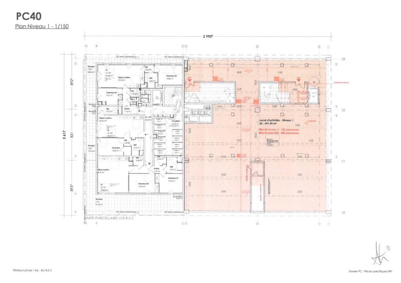
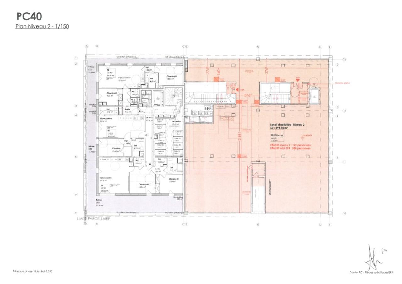
Caractéristiques principales :
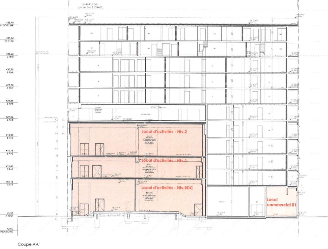
Immeuble indépendant en R+X
Surface brute, fluides en attente
Aménagement clé en main possible
ERP possible, selon destination
Forte visibilité et accessibilité
Prix de vente très compétitif sur le secteur
Cette liberté d'aménagement vous permet de créer un environnement de travail aligné sur votre identité de marque, vos besoins opérationnels et votre culture d'entreprise.
Un emplacement premium dans le quartier Euratlantique
Implanté rue du Tri Postal, à proximité immédiate de la gare Bordeaux Saint-Jean, cet immeuble bénéficie d'un emplacement stratégique au sein du projet Bordeaux Euratlantique, vaste opération d'aménagement classée Opération d'Intérêt National. C'est aujourd'hui le nouveau quartier d'affaires de Bordeaux, plébiscité pour sa modernité et ses performances énergétiques.
À proximité immédiate :
- Gare Saint-Jean à 5 min à pied
- MECA, Cité Numérique, Pont Simone-Veil
- Commerces, restauration, services
Transports :
- Tram C (arrêt Gare Saint-Jean)
- Bus et pistes cyclables
- Accès rapide à la rocade et à la A63
Un cadre structurant et un investissement pertinent
Cet immeuble représente une opportunité d'investissement stratégique dans un secteur à forte croissance.
L'environnement professionnel, la proximité avec les transports et l'offre de services en font un actif idéal pour toute activité tertiaire ou ERP recherchant un site central, accessible et valorisant.
Retrouvez toutes nos offres de bureaux à vendre à Bordeaux sur :
Services & prestations
Aménagements
-
Accès Pers. Mobilité Réduite
-
Aménagement des bureaux : Espaces Ouverts
Prestations de service
-
Parking
Normes, Certifications et Labels
-
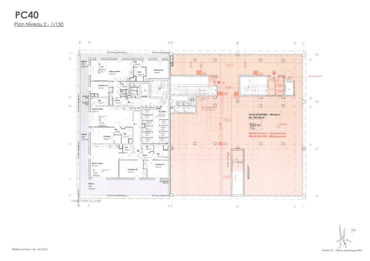
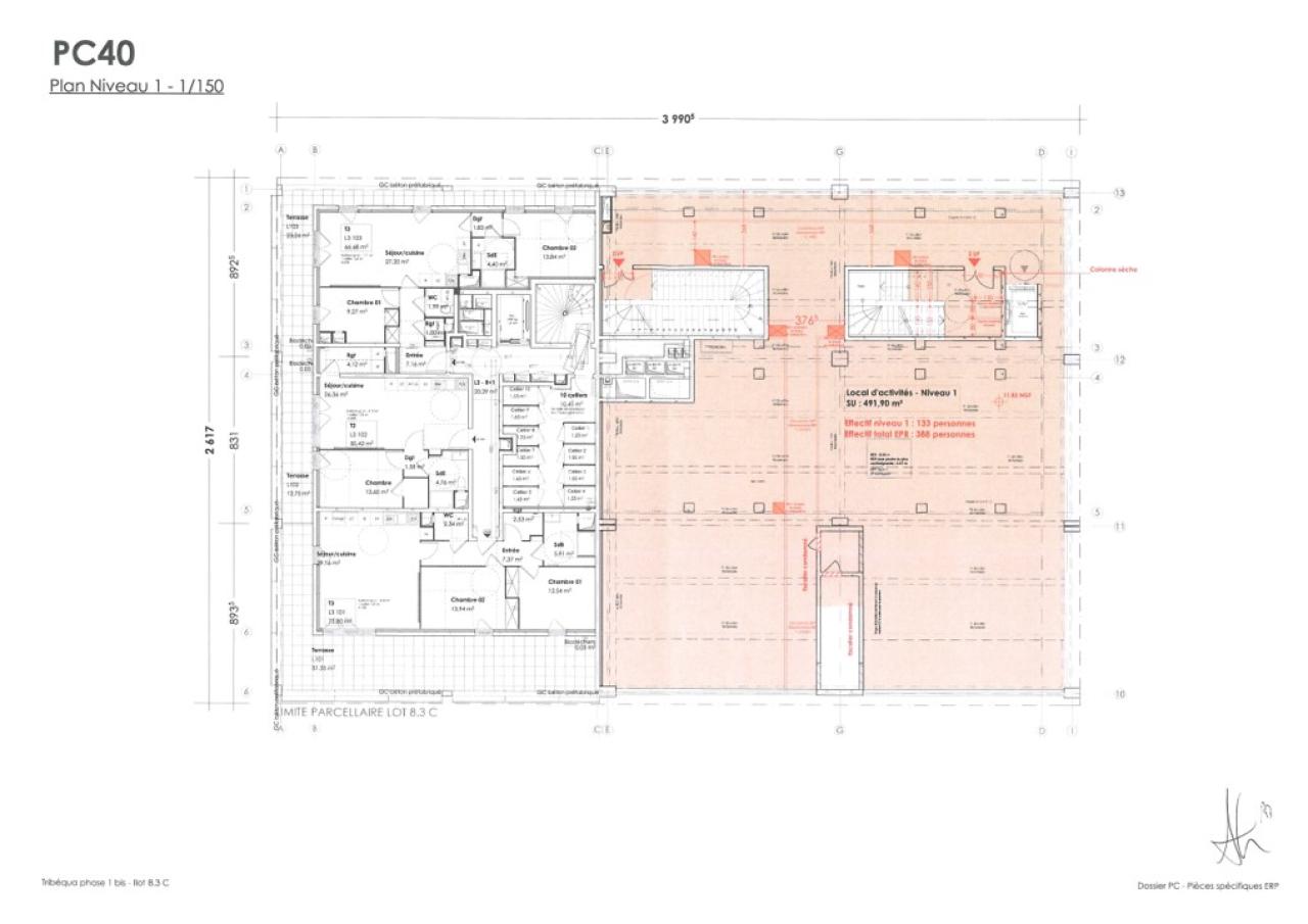
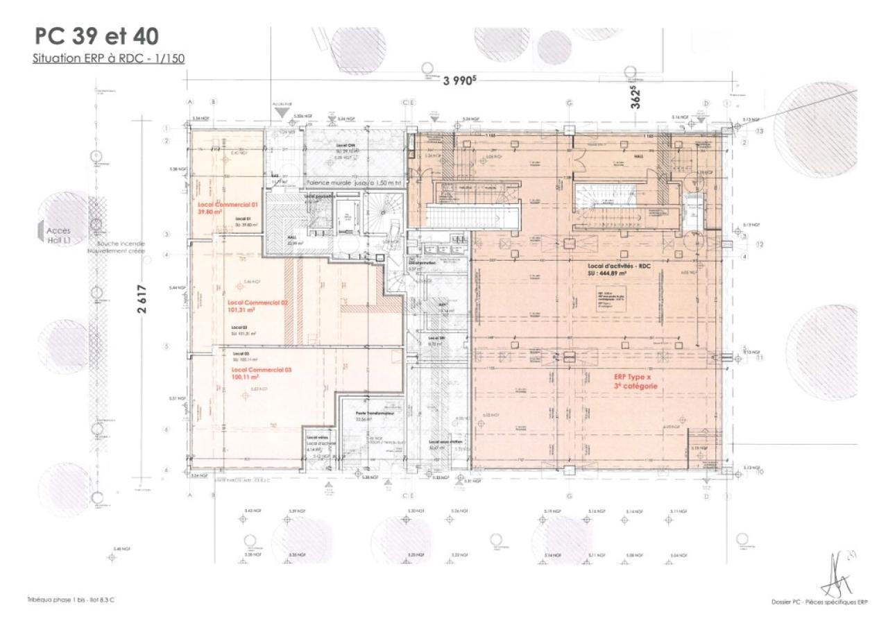
Catégorie ERP : 3
Type / Etat du bâtiment
-
Etat de l'immeuble : Neuf Livré brut
-
Immeuble indépendant
Informations complémentaires
-
Fluides en attente
-
Local vélos
-
Clos et couvert










