




Vente Bureau 3 869 m²
33800 Bordeaux
3 869 m²
Divisible dès 229 m²
à partir de 342 949 €
HT/HD
Disponibilité : 31/12/2025

LAURA MOURGUIART
Description
Bureaux et locaux santé à vendre à Bordeaux Euratlantique – Programme HEKA
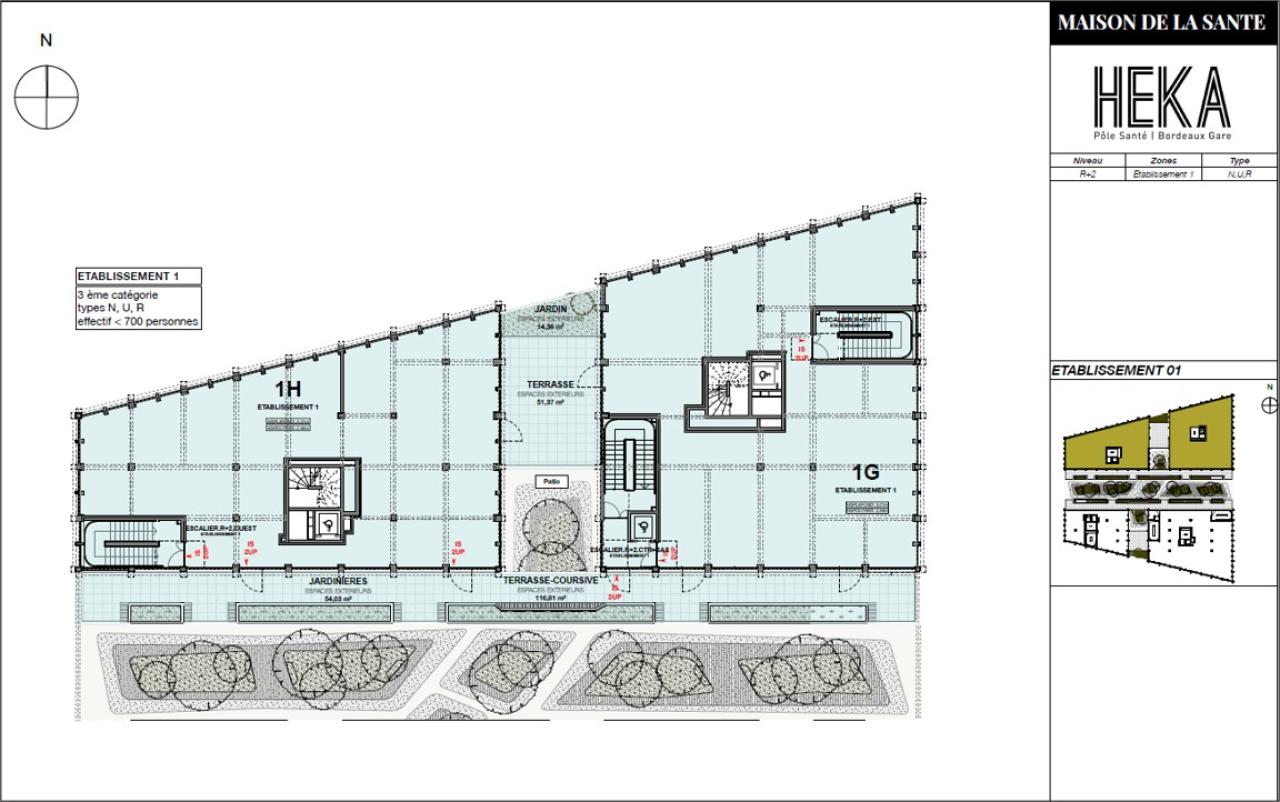
Au cœur de l’Opération d’Intérêt National Bordeaux Euratlantique et à proximité immédiate de la gare Saint-Jean, le projet HEKA s’assoit sur un socle de 3 niveaux formés par un pôle santé de 3 500 m².
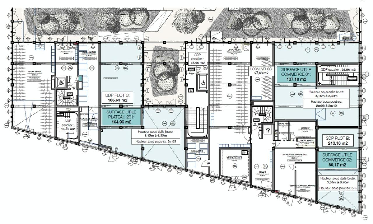
Cet ensemble immobilier bénéficie d’un classement SPIC adapté aux activité de santé. Des commerces, une crèche et un restaurant viennent compléter l’offre de services disponible au sein de l’immeuble.
BNP Paribas Real Estate vous propose une opportunité unique d'acquisition de locaux professionnels au sein du programme HEKA, situé sur la Promenade des Forges à Bordeaux, à seulement 10 minutes à pied de la Gare Saint-Jean. Implanté au coeur du quartier Euratlantique, ce nouveau projet immobilier mixte et innovant est conçu pour accueillir des activités médicales et paramédicales, dans un cadre moderne, durable et parfaitement connecté.
Un programme neuf dédié à la santé au coeur de Bordeaux
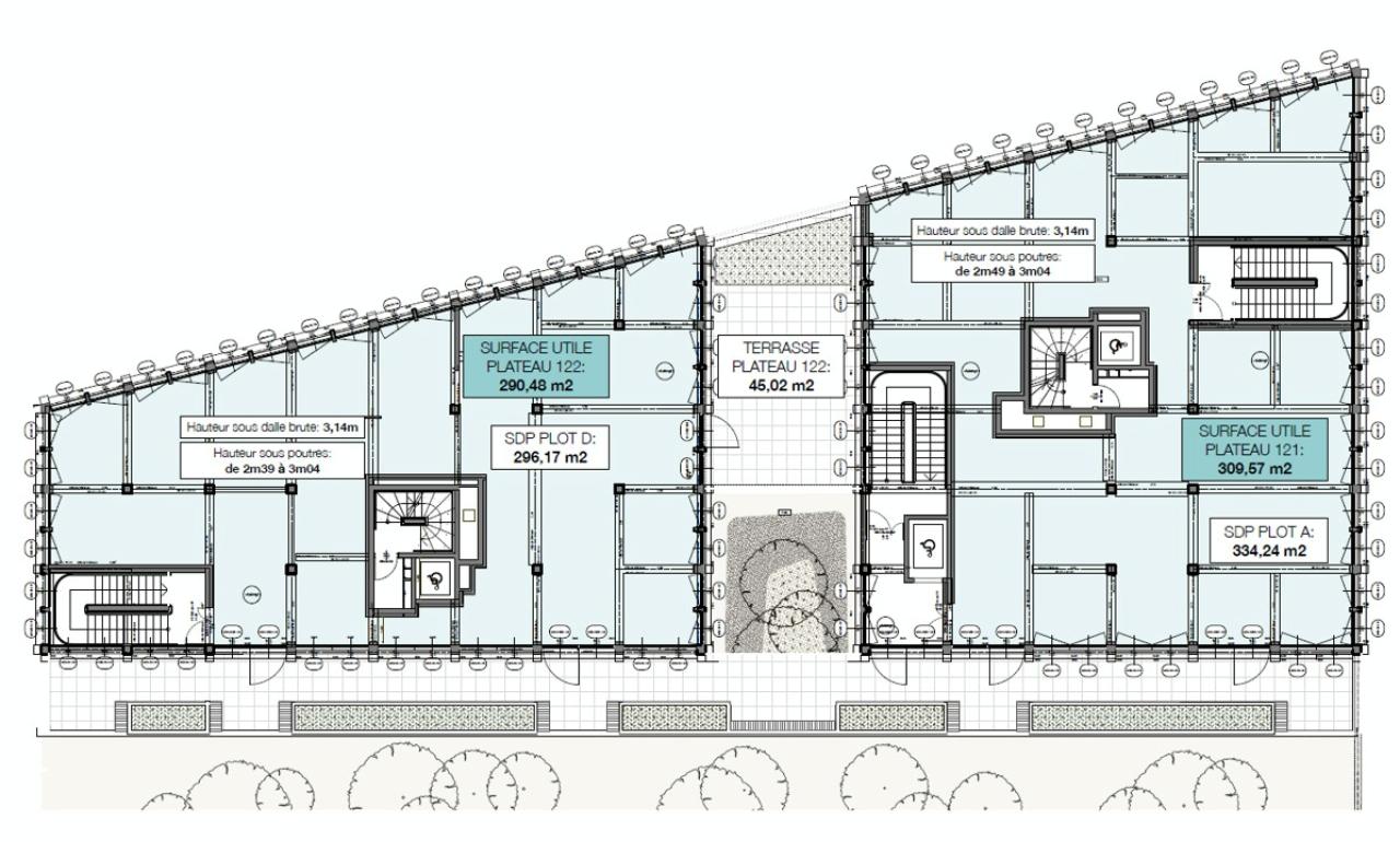
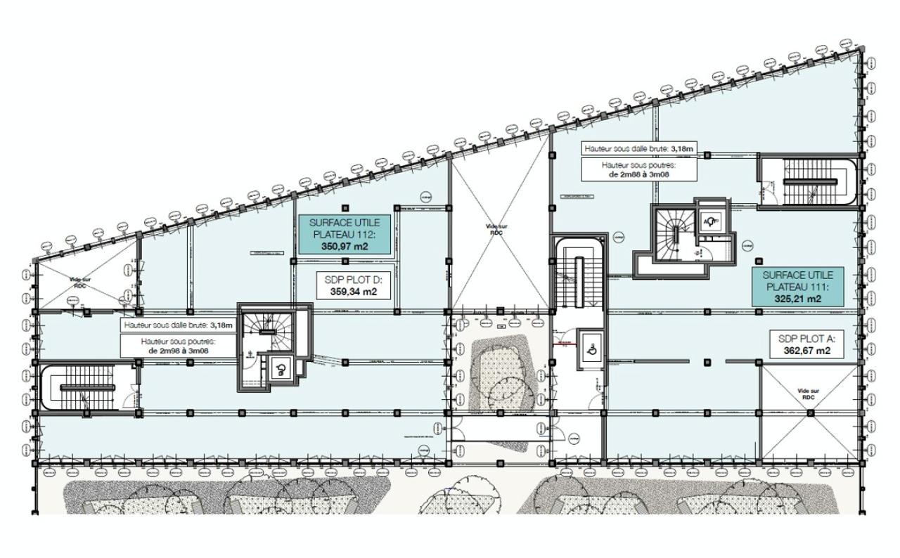
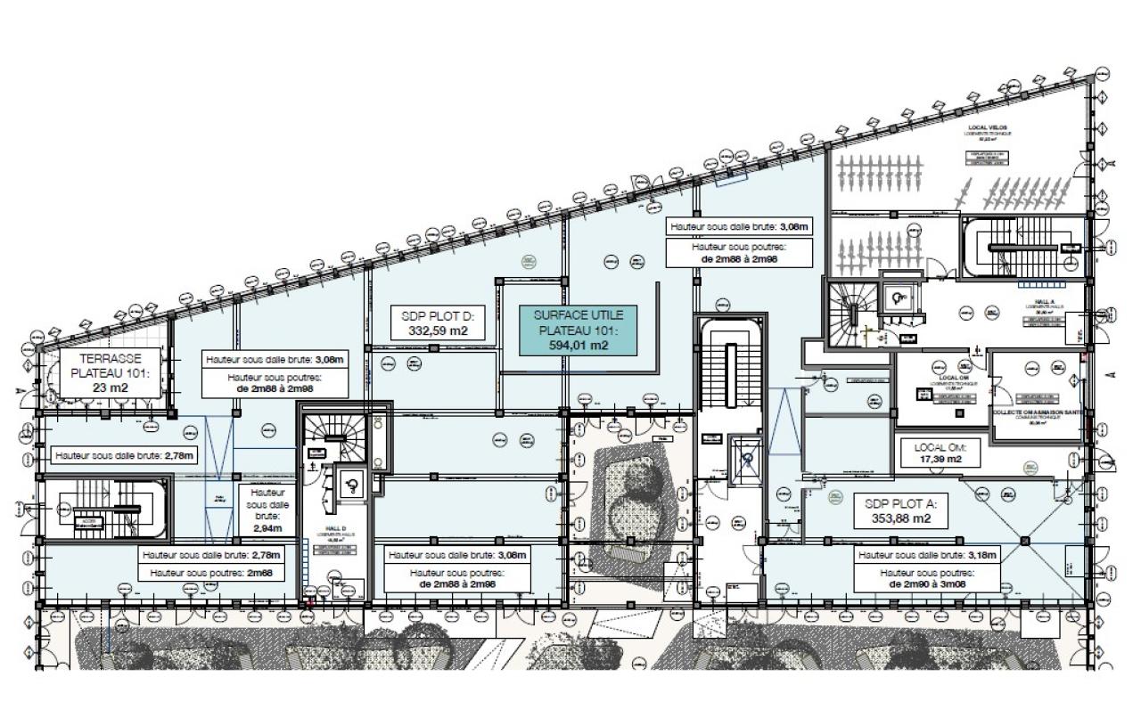
D'une surface totale de 1 430 m² répartie sur deux niveaux, le programme HEKA est spécialement pensé pour les professionnels de santé : médecins, praticiens paramédicaux, centres de soins, laboratoires ou pôles de santé pluridisciplinaires.
Ce bâtiment bénéficiera d'un classement SPIC (Service Public à caractère Industriel et Commercial), facilitant l'installation de structures médicales.
Livraison prévue : 4e trimestre 2025
Caractéristiques principales :
Surface totale : 1 430 m² sur 2 niveaux
Typologie : bureaux et locaux à destination santé
Destination SPIC : compatible professions médicales et paramédicales
Quartier : Bordeaux Euratlantique secteur Gare Saint-Jean
Disponibilité : à la vente
Livraison : fin 2025
Un engagement environnemental fort
Le programme HEKA vise les plus hautes certifications environnementales, garantissant un bâtiment à haute performance énergétique et respectueux des normes de durabilité :
Labellisation RE2020
Certification NF HQE 9 étoiles
Label BREEAM niveau GOOD
Ces engagements renforcent l'attractivité du bien auprès des professionnels et investisseurs sensibles aux enjeux environnementaux et à la qualité d'exploitation à long terme.
Un emplacement stratégique dans le quartier Euratlantique
Situé dans l'un des quartiers les plus dynamiques de Bordeaux, HEKA bénéficie d'un environnement urbain en pleine mutation, mêlant tertiaire, résidentiel, commerces, culture et services.
À proximité immédiate :
Gare Bordeaux Saint-Jean (TGV, TER, Tram C)
Lignes de bus, tram et navettes
Pont Simone Veil et Cité Numérique
Commerces, restaurants, hôtels, pôles de services et logements neufs
Le quartier Euratlantique s'impose comme un nouveau pôle économique et urbain majeur de Bordeaux, prisé par les entreprises, les startups et les professionnels de santé à la recherche d'une adresse accessible et valorisante.
Une opportunité rare pour les professionnels de santé
Ce programme neuf à vendre à Bordeaux Euratlantique est idéal pour :
Les cabinets médicaux ou paramédicaux
Les centres de santé
Les structures pluridisciplinaires
Les investisseurs spécialisés en immobilier de santé
Découvrez d'autres opportunités similaires :
Intéressé par le programme HEKA ?
Contactez nos équipes BNP Paribas Real Estate au 05 56 44 09 12 pour recevoir les plans, conditions de vente et organiser une présentation du projet.
Services & prestations
Aménagements
-
Aménagement des bureaux : Pré-aménagés ou brut de béton
Prestations de service
-
Parking
Normes, Certifications et Labels
-
Certification :
Type / Etat du bâtiment
-
Etat de l'immeuble : Neuf
Informations complémentaires
-
Classement SPIC










